BNP Paribas Real Estate, N°1 de la transaction en immobilier d''entreprise en France, vous propose un accompagnement de qualité pour l''acquisition, la vente ou la location d''un bien immobilier.Vo ...
En savoir plus

3 097 m² divisible dès 168 m²
Loyer sur demande
ROMANCE - Location bureau - 3097 m²
Paris 9 (75009)
Dernière mise à jour : Il y a 1 mois
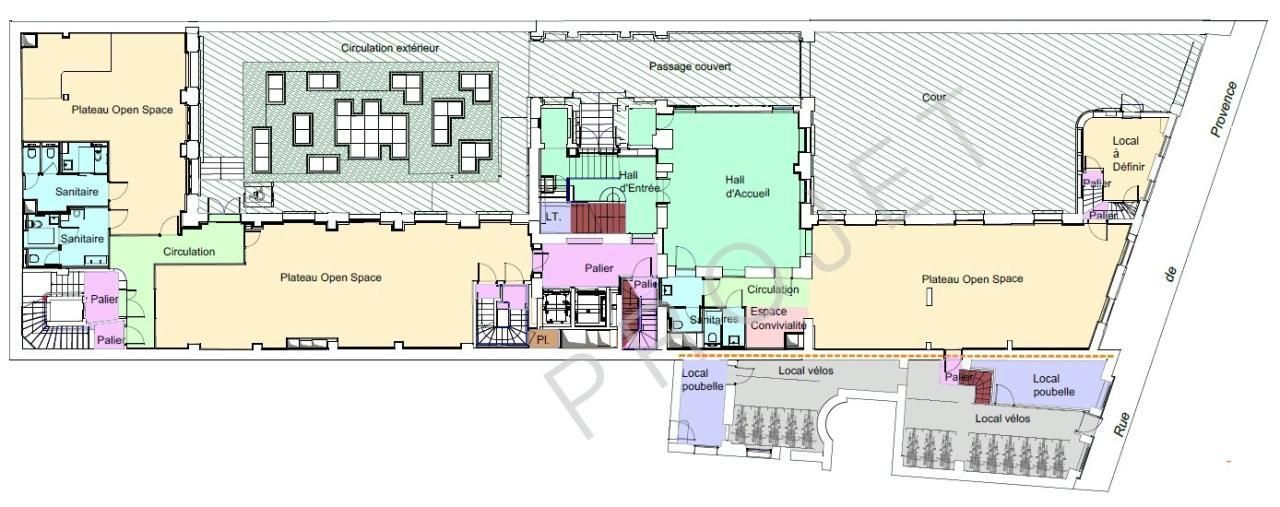
A toute proximité de Saint-Lazare, nous vous proposons un bel hôtel particulier indépendant de 3097 m² environ répartis sur 6 niveaux, comprenant une somptueuse salle de réception avec parquet et moulures historiques. L'immeuble sera entièrement restructuré et bénéficiera d'un roof-top d'une centaine de m² et de deux cours végétalisées. Capacitaire de 399 personnes.
La surface totale de bureaux avoisinera les 3097 m², sera entièrement réhabilité et atteindra un niveau d'exigence élevé, tant sur le plan environnemental et architectural, que sur le plan du bien-être de ses utilisateurs.
Les espaces de travail, agencés autour de deux cours intérieures verdoyantes, ont été concus pour être adaptables, répondant ainsi aux besoins des entreprises soucieuses du bien-être de leurs employés, tout en respectant les normes internationales et les nouvelles pratiques de travail.
Des espaces de services et de nombreuses salles de réunion ont été spécialement concus pour offrir des fonctionnalités complémentaires.
Honoraires: Nous consulter. à la signature du bail
| Fiche technique du bien | |
|---|---|
| Métro | M3 HAVRE CAUMARTIN |
| Métro | M9 HAVRE CAUMARTIN |
| RER | E HAUSSMANN-ST LAZARE |
| RER | A AUBER |
| Accès Pers. Mobilité Réduite | Monte personne |
| Etat de l'immeuble | Restructuré avec PC |
| Immeuble indépendant | Oui |
| Climatisation | Réversible CPCU-Fraicheur de Paris |
| Environnement de proximité | Croisement Provence / La Fayette |
| Ascenseur(s) | 3 |
| Aménagement des bureaux | Espaces Ouverts |
| Sol bureaux | parquet |
| Plinthes techniq.périphériques | Oui |
| Autre élément bureau | Salle de réception patrimoniale magnifique |
| Autre élément bureau | Elévateur PMR RDC au R+1 |
Voir plus
Afficher les consommations énergétiques
Surfaces divisibles : 6
| Surface | LoyerHT/HC/m²/an | Étage / Batiment | Infos complémentaires |
| 260 m² | N.C | RDC droite | OLBUR2200976/4 |
| 168 m² | N.C | RDC gauche | OLBUR2200976/2 |
| 674 m² | N.C | R+1 | OLBUR2200976/1 |
| 687 m² | N.C | R+2 | OLBUR2200976/1 |
| 715 m² | N.C | R+3 | OLBUR2200976/1 |
| 592 m² | N.C | R+4 | OLBUR2200976/1 |
Localisation et transport aux alentours
Favoris
Exporter
Appeler
Contacter
Signaler cette annonce
