Créée en mai 2012, Wellstone est une société de conseil en immobilier d'entreprise qui accompagne ses clients propriétaires, investisseurs et utilisateurs dans leurs différents projets immobiliers ...
En savoir plus

243 m²
HT HC
Location bureau - 243 m²
Paris 5 (75005)
Dernière mise à jour : Il y a 4 jours
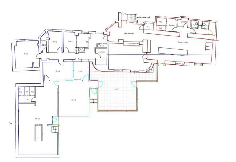
Rue Valette, à deux pas du Panthéon, Wellstone vous propose en sous-location indépendante des bureaux de 243m2 au RDC d'un bel immeuble disposant d'une cour intérieure arborée. Doté de 3 espaces ouverts, 2 bureaux, 3 sanitaires ainsi que d'un espace partagé incluant cuisine, tisanerie et douche, cet espace en très bon état et climatisé conviendra parfaitement aux sociétés recherchant de la flexibilité et un lieu atypique.
Impôt Foncier : 17 €/m²/an
Régime Fiscal : T.V.A.
Dépôt de garantie : 3 mois de loyer HT/HC
Honoraires : A la charge du preneur.
Taxe Bureau : 25,77 €/m²/an
Information sur le Bail :
Sous-location de 18 mois Charges sans Internet, WIFI et mobilier
Prestations :
Accessibilité:
Metro Cardinal Lemoine (10)
Metro Luxembourg (B)
Les informations sur les risques auxquels ce bien est exposé sont disponibles sur le site Géorisques : www.georisques.gouv.fr
| Étage | Type | Surfaces | Dispo | Loyer | Charges | Type de bailRév. annuelle |
|---|---|---|---|---|---|---|
| RDC | Bureaux | 243 | Immédiate | 650 m²/an HT HC | 20 m²/an HT | Sous-locationILAT |
Impôt Foncier : 17 €/m²/an
Régime Fiscal : T.V.A.
Dépôt de garantie : 3 mois de loyer HT/HC
Honoraires : A la charge du preneur.
Taxe Bureau : 25,77 €/m²/an
Information sur le Bail :
Sous-location de 18 mois Charges sans Internet, WIFI et mobilier
Prestations :
- Parties communes de bon standing avec accès via une cour pavée et arborée
- Surface en très bon état, composée de :
- 243m2 de bureaux privatifs avec accès indépendant organisés en :
- 3 espaces ouverts
- 2 bureaux
- 3 sanitaires
- 94m2 d'espaces partagés incluant :
- cuisine
- tisanerie
- douche
- terrasse
- Climatisation réversible
- Accès indépendant
- Accessibilité PMR
- Surface RDC : 243 m²
Accessibilité:
Metro Cardinal Lemoine (10)
Metro Luxembourg (B)
Les informations sur les risques auxquels ce bien est exposé sont disponibles sur le site Géorisques : www.georisques.gouv.fr
Voir plus
Afficher les consommations énergétiques
Localisation et transport aux alentours
Favoris
Exporter
Appeler
Contacter
Signaler cette annonce
