Créée en mai 2012, Wellstone est une société de conseil en immobilier d'entreprise qui accompagne ses clients propriétaires, investisseurs et utilisateurs dans leurs différents projets immobiliers ...
En savoir plus



162 m²
HT HC
Location bureau - 162 m²
Paris 2 (75002)
Dernière mise à jour : Il y a 2 jours
Bureaux à louer - Paris 2
Idéal société de conseil, communication, start up ! Wellstone vous propose une surface de bureaux à louer en très bon état dans un immeuble de standing en pierre de taille au pied du métro « Quatre Septembre ». Profitez de bureaux lumineux, facilement modulables et avec une belle hauteur sous plafond pour développer votre activité en plein coeur de Paris. A visiter sans tarder!
Impôt Foncier : 13,56 €/m²/an
Régime Fiscal : T.V.A.
Dépôt de garantie : 3 mois de loyer HT/HC
Honoraires : A la charge du preneur.
Information sur le Bail :
Frais d'état des lieux : à prévoir
Prestations :
Accessibilité:
Metro 4 Septembre (3)
Metro Auber (A)
Metro Saint-Lazare (3,12,13,14)
Les informations sur les risques auxquels ce bien est exposé sont disponibles sur le site Géorisques : www.georisques.gouv.fr
Idéal société de conseil, communication, start up ! Wellstone vous propose une surface de bureaux à louer en très bon état dans un immeuble de standing en pierre de taille au pied du métro « Quatre Septembre ». Profitez de bureaux lumineux, facilement modulables et avec une belle hauteur sous plafond pour développer votre activité en plein coeur de Paris. A visiter sans tarder!
| Étage | Type | Surfaces | Dispo | Loyer | Charges | Type de bailRév. annuelle |
|---|---|---|---|---|---|---|
| 3 | Bureaux | 162 | Immédiate | 550 m²/an HT HC | 34,3 m²/an HT | 3-6-9 ansILAT |
Impôt Foncier : 13,56 €/m²/an
Régime Fiscal : T.V.A.
Dépôt de garantie : 3 mois de loyer HT/HC
Honoraires : A la charge du preneur.
Information sur le Bail :
Frais d'état des lieux : à prévoir
Prestations :
- ERP : 1ère catégorie
- Parties communes de bon standing
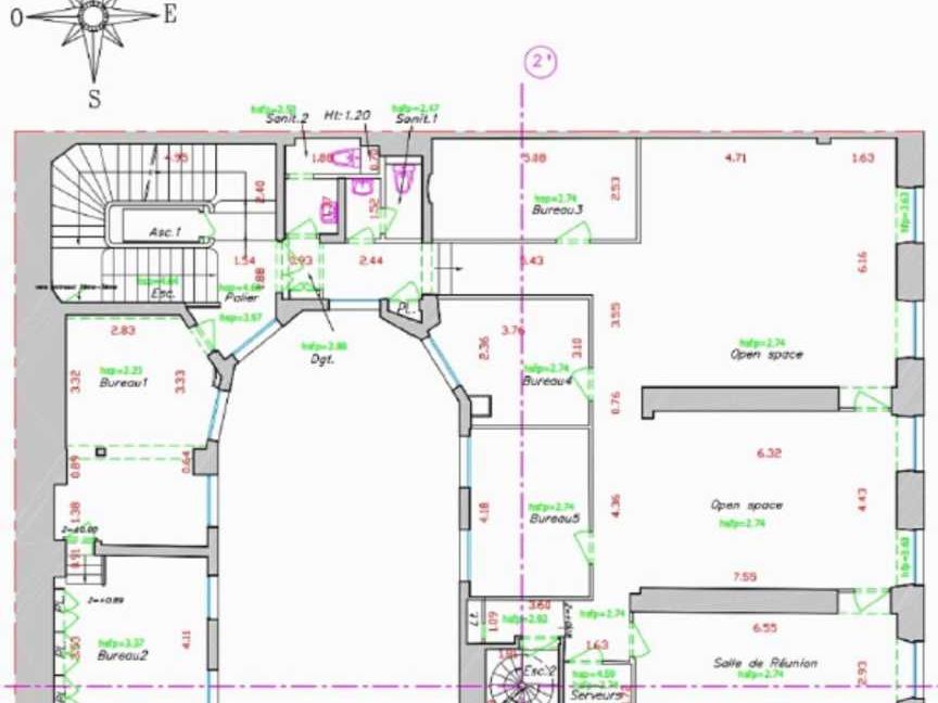
- Locaux en très bon état Surface fonctionnelle et modulable organisée actuellement en 1 accueil, 2 bureaux cloisonnés, 2 grands open space, 1 salle de réunion et 1 espace détente Peu de contraintes porteuses Belle hauteur sous plafond Câblage informatique Climatisation
Accessibilité:
Metro 4 Septembre (3)
Metro Auber (A)
Metro Saint-Lazare (3,12,13,14)
Les informations sur les risques auxquels ce bien est exposé sont disponibles sur le site Géorisques : www.georisques.gouv.fr
Voir plus
Afficher les consommations énergétiques
Localisation et transport aux alentours
- Quatre Septembre75m (1min à pied)3
- Opéra397m (6min à pied)378
- Chaussée d'Antin La Fayette448m (7min à pied)79
- Richelieu Drouot465m (7min à pied)89
- Pyramides492m (7min à pied)714
Favoris
Exporter
Appeler
Contacter
Signaler cette annonce










