Conseil en immobilier d'entreprise, Cushman & Wakefield est un acteur incontournable au rayonnement international. Cushman & Wakefield offre des solutions dans toutes les étapes que comporte un p ...
En savoir plus

317 m²
HT HC
MAISON MOZART - Location bureau - 317 m²
Paris 2 (75002)
Dernière mise à jour : Il y a 3 jours
Immeuble MAISON MOZART
Cushman & Wakefield vous propose deux surfaces de bureaux en sous-location aux numéro 8 Rue du Sentier, en plein coeur du 2ème arrondissement de Paris et à toute proximité de la Place de la Bourse.
Située dans un bel immeuble à pierre de taille, vous profiterez d'un environnement agréable avec des parties communes de haut standing, une cour bien entretenue. L'immeuble possède également un ascenseur.
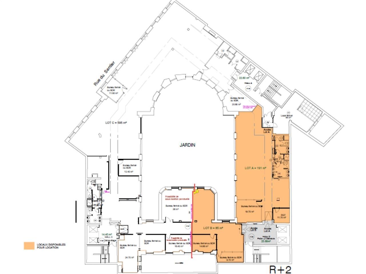
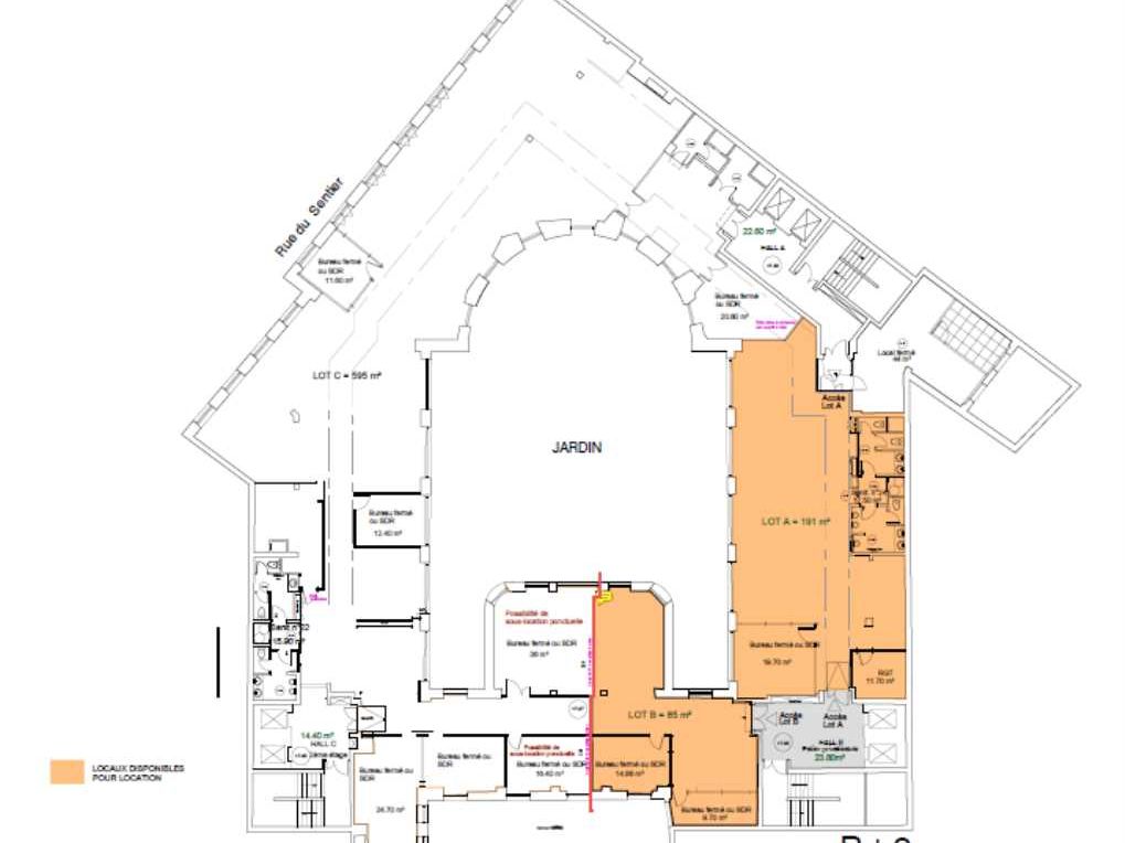
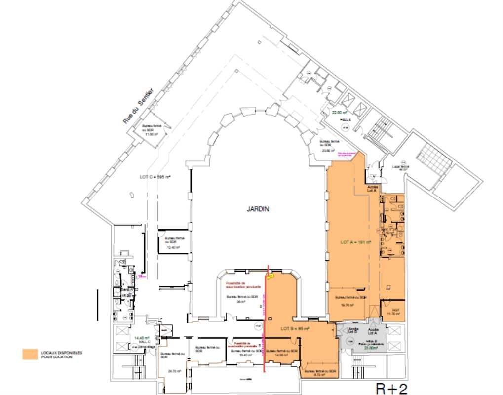
Au 2? étage, une surface de 317 m² entièrement meublée propose 37 postes en open-space, une grande salle de réunion pour 16 personnes, une salle de réunion pour 6 personnes et trois salles de réunion pour 3 personnes. Un décloisonnement est possible, et des aménagements flexibles peuvent être envisagés sur l'espace.
Disponible immédiatement en sous-location.
Contactez-nous vite pour visiter.
Impôt Foncier : 12,86 €//m²/an
Régime Fiscal : T.V.A.
Dépôt de garantie : 3 mois de loyer HT/HC
Paiement Loyer : Trimestriel
Honoraires : à la charge du preneur
Taxe Bureau : 25,31 €/m²/an
Information sur le Bail :
Sous-location jusqu'à 24 mois Prévoir frais d'état des lieux
Prestations :
Accessibilité:
Métro Bonne Nouvelle (lignes 8 - 9)
Métro Sentier (ligne 3)
RER Auber (RER A)
RER Chatelet-Les Halles (RER A-B-D)
Bus Lignes 20-39-48-67-74-85
Les informations sur les risques auxquels ce bien est exposé sont disponibles sur le site Géorisques : www.georisques.gouv.fr
Cushman & Wakefield vous propose deux surfaces de bureaux en sous-location aux numéro 8 Rue du Sentier, en plein coeur du 2ème arrondissement de Paris et à toute proximité de la Place de la Bourse.
Située dans un bel immeuble à pierre de taille, vous profiterez d'un environnement agréable avec des parties communes de haut standing, une cour bien entretenue. L'immeuble possède également un ascenseur.
Au 2? étage, une surface de 317 m² entièrement meublée propose 37 postes en open-space, une grande salle de réunion pour 16 personnes, une salle de réunion pour 6 personnes et trois salles de réunion pour 3 personnes. Un décloisonnement est possible, et des aménagements flexibles peuvent être envisagés sur l'espace.
Disponible immédiatement en sous-location.
Contactez-nous vite pour visiter.
| Étage | Type | Surfaces | Dispo | Loyer | Charges | Type de bailRév. annuelle |
|---|---|---|---|---|---|---|
| 2 | Bureaux | 317 | 550 HT/HC/m²/an | 47,66 HT/m²/an | Sous locationSur l'indice ILAT |
Impôt Foncier : 12,86 €//m²/an
Régime Fiscal : T.V.A.
Dépôt de garantie : 3 mois de loyer HT/HC
Paiement Loyer : Trimestriel
Honoraires : à la charge du preneur
Taxe Bureau : 25,31 €/m²/an
Information sur le Bail :
Sous-location jusqu'à 24 mois Prévoir frais d'état des lieux
Prestations :
- Immeuble ancien restructuré
- Parties communes de bon standing
- Contrôle d'accès avec digicode et interphone
- Accès sécurisé par badge
- Interphone / Digicode
- Ascenseurs
- Cour intérieure arborée
- Fibre optique
- Locaux rationnels et modulables
- Accueil - Espaces ouverts - Salles de réunion - Cuisine et sanitaires privatifs
- Accès sur rue et sur cour
- Décloisonnement possible
- Belle hauteur sous plafond
- Faux plafonds et parquet
- Climatisation réversible
- Câblage informatique et téléphonique
Accessibilité:
Métro Bonne Nouvelle (lignes 8 - 9)
Métro Sentier (ligne 3)
RER Auber (RER A)
RER Chatelet-Les Halles (RER A-B-D)
Bus Lignes 20-39-48-67-74-85
Les informations sur les risques auxquels ce bien est exposé sont disponibles sur le site Géorisques : www.georisques.gouv.fr
Voir plus
Afficher les consommations énergétiques
Localisation et transport aux alentours
- Sentier124m (2min à pied)3
- Grands Boulevards327m (5min à pied)89
- Bonne Nouvelle404m (6min à pied)89
- Bourse485m (7min à pied)3
Favoris
Exporter
Appeler
Contacter
Signaler cette annonce










