BNP Paribas Real Estate, N°1 de la transaction en immobilier d''entreprise en France, vous propose un accompagnement de qualité pour l''acquisition, la vente ou la location d''un bien immobilier.Vo ...
En savoir plus



2 525 m²
Loyer sur demande
18 Amiral Hamelin - Location bureau - 2525 m²
Paris 16 (75016)
Dernière mise à jour : Il y a 2 jours
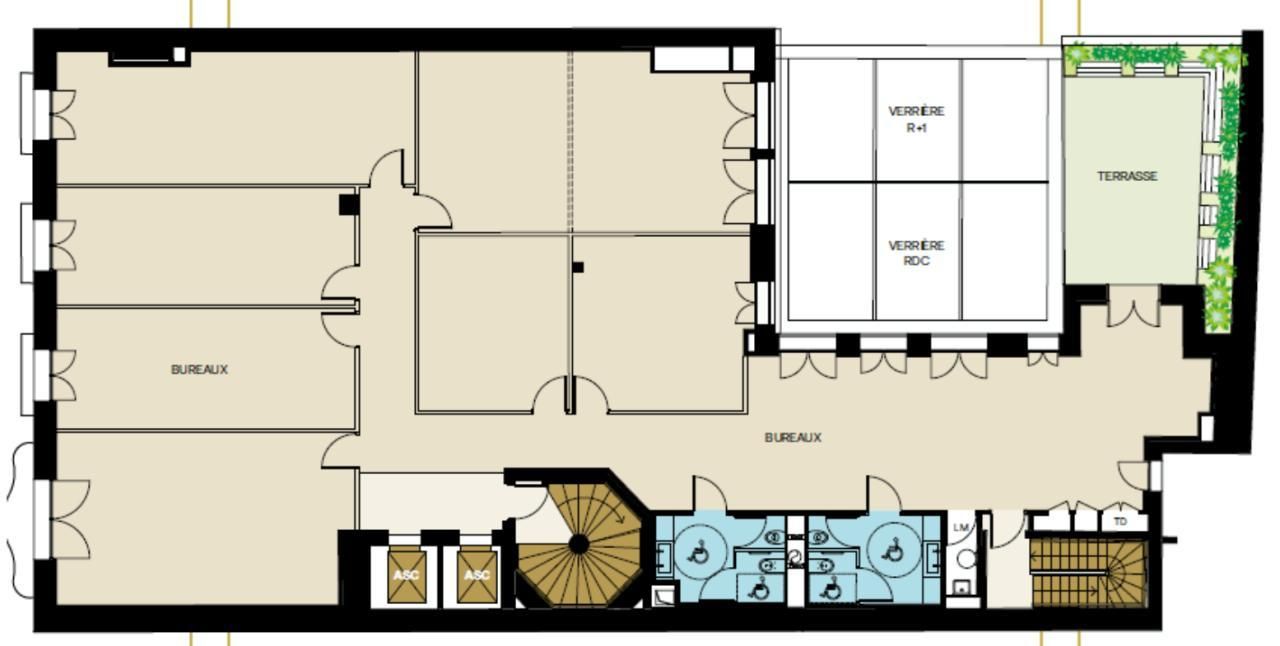
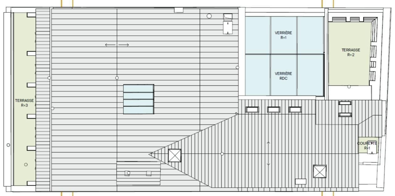
Quartier Central des Affaires, entre l'avenue Kléber et l'avenue d'Iéna, à proximité de la place d'Iéna et la place des Etats Unis, nous vous proposons à la location un bel hôtel particulier avec bureaux patrimoniaux développant 2 525 m² environ de bureaux restructurés et résolument engagés dans une politique environnementale et sociale. Cet immeuble siège offre des prestations exceptionnelles (espaces patrimoniaux, hauteur sous plafond, terrasses) et un projet architectural ambitieux, mené par Axel Schoener.
- Quartier Central des Affaires
- Paris 16ème
- entre l'avenue Kléber et l'avenue d'Iéna
- Très bel hôtel particulier entièrement restructuré par le cabinet d'architectes Axel Schoenert
- 2525 m² de bureaux et d'espaces de services
- Eléments architecturaux d'origine : bureaux patrimoniaux au R+1 dotés de moulures, parquets, cheminées et plafonds peints
- Escalier monumental faille en verre desservant le R-1, RDJ et RDC
- 3 terrasses aux R+1 haut, R+2 et R+3 / Balcons au R+2 sur rue
- Serre végétalisée du R-1 au R+1
- Grands plateaux courants et flexibles d'environ 314 m²
- Vues sur beaux btiments sur rue et dégagées sur la cour
- Bureaux en premier jour / lumineux
- Belles hauteurs libres : de 2,20 à 4,50m
- Espace de réunion par plateau : 15%
- 2 ascenseurs
- Capacitaire visé d'environ 300 personnes.
- Lumière naturelle au -1 et RDJ via un plafond de verre sur 50 m²
Disponibilité: Immédiate
Honoraires: Nous consulter. A la signature du bail
| Fiche technique du bien | |
|---|---|
| Métro | M6 Boissière ou Kléber |
| RER | A Charles de Gaulle - Etoile |
| Bus | Lignes 30, 32 |
| Desserte routière | Périphérique : Porte Dauphine |
| Immeuble | Hôtel particulier |
| Immeuble indépendant | Oui |
| Type chauffage | Urbain |
| Climatisation | Oui |
| Ascenseur(s) | 2 |
| Hall d'accueil | Indépendant |
| Aménagement des bureaux | Cloisonnés/Ouverts |
| Faux plafond | Oui |
| Sol bureaux | Moquette |
Voir plus
Afficher les consommations énergétiques
Localisation et transport aux alentours
Favoris
Exporter
Appeler
Contacter
Signaler cette annonce










