L’agence CBRE Nice-Sophia Antipolis conseille et accompagne les chefs d’entreprise dans leurs projets immobiliers quels que soient leur taille et leur secteur d’activité. Spécialistes de la transac ...
En savoir plus

138 m²
HT HC
Location bureau - 138 m²
Nice (06000)
Dernière mise à jour : Aujourd'hui
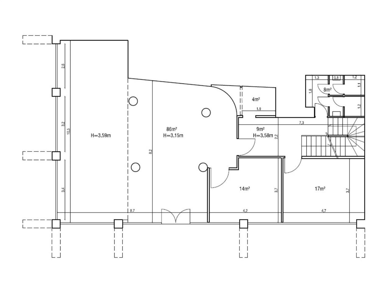
BUREAU A LOUER - NICE CENTRE
NICE CENTRE (06000) - CBRE vous propose à la location un bureau d'une superficie d'environ 138 m² non divisibles au RDC d'un immeuble situé en centre ville de Nice. Cloisonné en 6 espaces, et climatisé, ce bureau à louer est prêt à vous accueillir. Deux caves et un entrepôt en sous sol, ainsi que deux parkings complètent cette offre.
Emplacement central bien desservi, proche des transports en commun et de la gare.
Si vous êtes intéressés par ces bureaux à louer à NICE CENTRE (06000) ou si vous souhaitez obtenir plus d'informations, n'hésitez pas à nous contacter pour planifier une visite et obtenir toutes les informations requises pour votre projet immobilier.
Mener à bien son projet d'implantation ou de développement pour une activité professionnelle doit passer par des locaux adaptés à ses besoins.
Impôt Foncier : 2552 €//an HT
Dépôt de garantie : 3 mois de loyer HT/HC
Paiement Loyer : trimestriel
Honoraires : 15% HT du loyer annuel HT/HC à la charge du preneur
Taxe Bureau : 0,94 €/m²/an
Information sur le Bail :
loyer incluant 2 parkings en sous-sol et 2 caves
Prestations :
Accessibilité:
Autoroute Autoroute A8
Route Voie Mathis
Bus Réseau Lignes d'Azur
Tramway Lignes 2 et 3
SNCF Gare Nice Ville
Les informations sur les risques auxquels ce bien est exposé sont disponibles sur le site Géorisques : www.georisques.gouv.fr
NICE CENTRE (06000) - CBRE vous propose à la location un bureau d'une superficie d'environ 138 m² non divisibles au RDC d'un immeuble situé en centre ville de Nice. Cloisonné en 6 espaces, et climatisé, ce bureau à louer est prêt à vous accueillir. Deux caves et un entrepôt en sous sol, ainsi que deux parkings complètent cette offre.
Emplacement central bien desservi, proche des transports en commun et de la gare.
Si vous êtes intéressés par ces bureaux à louer à NICE CENTRE (06000) ou si vous souhaitez obtenir plus d'informations, n'hésitez pas à nous contacter pour planifier une visite et obtenir toutes les informations requises pour votre projet immobilier.
Mener à bien son projet d'implantation ou de développement pour une activité professionnelle doit passer par des locaux adaptés à ses besoins.
| Étage | Type | Surfaces | Dispo | Loyer | Charges | Type de bailRév. annuelle |
|---|---|---|---|---|---|---|
| RDC | Bureaux | 138 | Immédiate | 229,71 m²/an HTHC | 23,91 m²/an HT | 3-6-9 ansIndice des Loyers Commerciaux |
Impôt Foncier : 2552 €//an HT
Dépôt de garantie : 3 mois de loyer HT/HC
Paiement Loyer : trimestriel
Honoraires : 15% HT du loyer annuel HT/HC à la charge du preneur
Taxe Bureau : 0,94 €/m²/an
Information sur le Bail :
loyer incluant 2 parkings en sous-sol et 2 caves
Prestations :
- Espace accueil
- Bureaux cloisonnés: 6 bureaux
- Sanitaires séparés dont 1 avec douche
- Kitchenette
- Climatisation
- Armoire de brassage
- 2 caves en sous sol
- Un entrepôt en sous-sol
- 2 parkings en rez-de-chaussée
- Bail commercial 3/6/9 ou professionnel
- Surface RDC : 0 m²
Accessibilité:
Autoroute Autoroute A8
Route Voie Mathis
Bus Réseau Lignes d'Azur
Tramway Lignes 2 et 3
SNCF Gare Nice Ville
Les informations sur les risques auxquels ce bien est exposé sont disponibles sur le site Géorisques : www.georisques.gouv.fr
Voir plus
Afficher les consommations énergétiques
Favoris
Exporter
Appeler
Contacter
Signaler cette annonce
