L’agence CBRE Nice-Sophia Antipolis conseille et accompagne les chefs d’entreprise dans leurs projets immobiliers quels que soient leur taille et leur secteur d’activité. Spécialistes de la transac ...
En savoir plus

404 m²
HT HC
Location bureau - 404 m²
Nice (06000)
Dernière mise à jour : Aujourd'hui
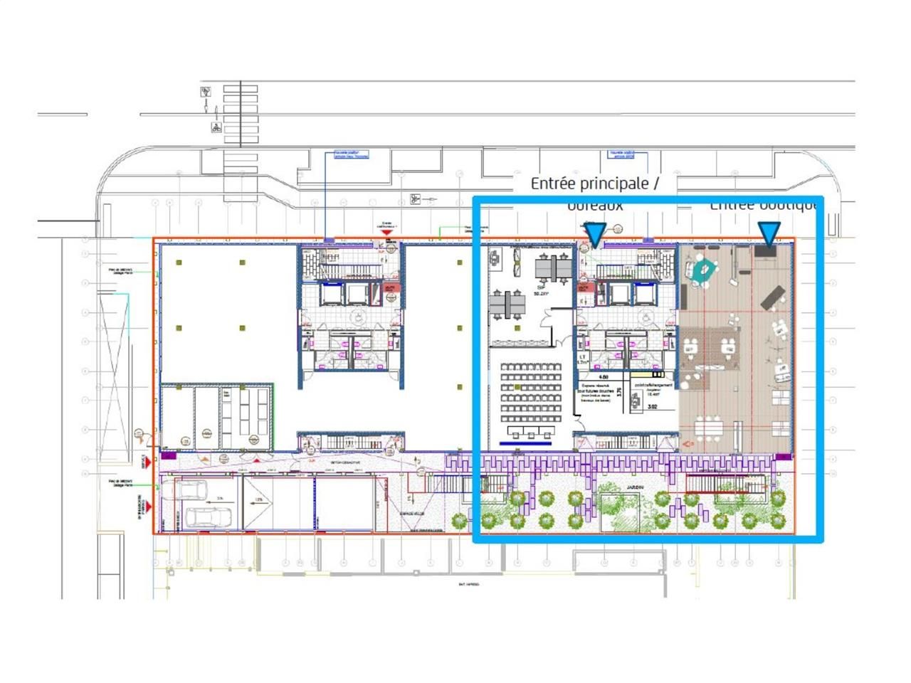
BUREAU A LOUER - NICE MERIDIA
NICE MERIDIA (06200) - CBRE vous propose à la location 403 m² de bureaux d'exception en RDC, prêts à dynamiser votre activité ! Ces bureaux à louer, non divisibles, sont situés dans un espace résolument moderne et éco-conçu, doté de toiture végétalisée, panneaux solaires, climatisation réversible, double vitrage et contrôle d'accès. Optimisez votre environnement de travail avec des stationnements disponibles (en sus).
Secteur bénéficiant d'une connectivité stratégique inégalée (aéroport international, tramway, autoroute), d'un environnement de travail ultra-moderne face à la mer, et d'un cadre de vie privilégié qui attire talents et entreprises. Le lieu idéal pour la croissance de votre business sur la Côte d'Azur.
Si vous êtes intéressés par ce bureau à louer à NICE MERIDIA (06200) ou si vous souhaitez obtenir plus d'informations, n'hésitez pas à nous contacter pour planifier une visite et obtenir toutes les informations requises pour votre projet immobilier.
Impôt Foncier : 8627 €/m²/an, bas e2024
Régime Fiscal : T.V.A.
Dépôt de garantie : 3 mois de loyer HT/HC
Paiement Loyer : trimestriel
Honoraires : 15% HT du loyer annuel HT/HC à la charge du preneur
Taxe Bureau : 0,94 €/m²/an
Prestations :
Accessibilité:
Autoroute Autoroute A8
Route RM 6202
Tramway Tramway Ligne 3
Bus Nombreuses lignes du réseau urbain
SNCF Pôle d'échange Multimodal à 10 minutes
Aeroport Aéroport Nice Côte d'Azur
Les informations sur les risques auxquels ce bien est exposé sont disponibles sur le site Géorisques : www.georisques.gouv.fr
NICE MERIDIA (06200) - CBRE vous propose à la location 403 m² de bureaux d'exception en RDC, prêts à dynamiser votre activité ! Ces bureaux à louer, non divisibles, sont situés dans un espace résolument moderne et éco-conçu, doté de toiture végétalisée, panneaux solaires, climatisation réversible, double vitrage et contrôle d'accès. Optimisez votre environnement de travail avec des stationnements disponibles (en sus).
Secteur bénéficiant d'une connectivité stratégique inégalée (aéroport international, tramway, autoroute), d'un environnement de travail ultra-moderne face à la mer, et d'un cadre de vie privilégié qui attire talents et entreprises. Le lieu idéal pour la croissance de votre business sur la Côte d'Azur.
Si vous êtes intéressés par ce bureau à louer à NICE MERIDIA (06200) ou si vous souhaitez obtenir plus d'informations, n'hésitez pas à nous contacter pour planifier une visite et obtenir toutes les informations requises pour votre projet immobilier.
| Étage | Type | Surfaces | Dispo | Loyer | Charges | Type de bailRév. annuelle |
|---|---|---|---|---|---|---|
| RDC | Bureaux | 403,8 | Immédiate | 225 m²/an HT HC | 56 HT/m²/an | 3-6-9 ansIndice ILAT |
| 1SS | Parkings | Immédiate | 1718,6 place/an HTHC | 360 HT/m²/an | 3-6-9 ansIndice ILAT |
Impôt Foncier : 8627 €/m²/an, bas e2024
Régime Fiscal : T.V.A.
Dépôt de garantie : 3 mois de loyer HT/HC
Paiement Loyer : trimestriel
Honoraires : 15% HT du loyer annuel HT/HC à la charge du preneur
Taxe Bureau : 0,94 €/m²/an
Prestations :
- Espaces ouverts et modulables en open space pour une collaboration fluide et une luminosité optimale
- Confort thermique: climatisation réversible
- Engagement eco-responsable: toiture partiellement végétalisée + panneaux photovoltaïques (environ 500 m²)
- Confort et modernité: faux-plafonds avec luminaires intégrés, double vitrage, moquette, plinthes périphériques
- Sécurité et praticité : contrôle d'accès, sanitaires communs
- Stationnement: possibilité de louer des parkings en silo
- Surface RDC : 403,8 m²
Accessibilité:
Autoroute Autoroute A8
Route RM 6202
Tramway Tramway Ligne 3
Bus Nombreuses lignes du réseau urbain
SNCF Pôle d'échange Multimodal à 10 minutes
Aeroport Aéroport Nice Côte d'Azur
Les informations sur les risques auxquels ce bien est exposé sont disponibles sur le site Géorisques : www.georisques.gouv.fr
Voir plus
Afficher les consommations énergétiques
Favoris
Exporter
Appeler
Contacter
Signaler cette annonce
