Besoin d'un conseil en immobilier ? Nous sommes une équipe dédiée à 100% à nos clients utilisateurs avec des services variés (stratégie immobilière, recherche immobilière, renégociation de bail, dé ...
En savoir plus

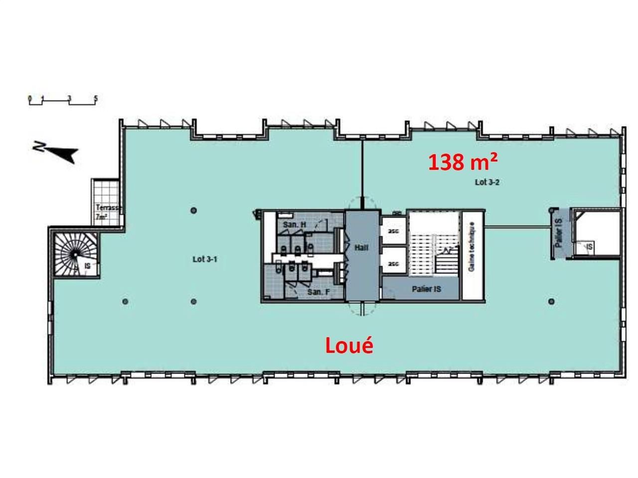
3 298 m² divisible dès 138 m²
HT HC
NEW WORKER - Location bureau - 3298 m²
Lyon 7 (69007)
Dernière mise à jour : Hier
Le New Worker : programme situé en plein coeur du 7ème arrondissement de Lyon, alliant qualité environnementale, modernité et flexibilité. Cet ensemble immobilier vous offre un cadre idéal pour votre activité dans le quartier Duvivier-Jean Macé.
Immeuble NEW WORKER
Découvrez le New Worker, un programme situé en plein coeur du 7ème arrondissement de Lyon, à quelques pas de la place Jean Macé. Son espace modulable, sa qualité environnementale et son installation moderne font de cet ensemble immobilier, un choix optimal pour votre activité.
Impôt Foncier : 16 €/m²/an
Régime Fiscal : T.V.A.
Dépôt de garantie : 3 mois de loyer HT HC
Honoraires : 15% HT du loyer annuel HT HC à la charge du preneur
Information sur le Bail :
Charges prévisionnelles BX 20 euros (hors consommations CVC estimées environ 20 eurosHT)
Prestations :
Accessibilité:
A moins de 10 minutes du pôle multimodal de Jean Macé
Bus n° C12 "Garibaldi - Berthelot" au pied de l'immeuble
Bus Nombreuses lignes de bus sur Jean Macé
Tramway T2 "Garibaldi - Berthelot" à 120 m
Métro Ligne B "Jean Macé" à moins de 10 minutes à pied et à moins de 5 minutes via le tramway
SNCF Gare TER de Jean Macé à 650 m
Les informations sur les risques auxquels ce bien est exposé sont disponibles sur le site Géorisques : www.georisques.gouv.fr
Immeuble NEW WORKER
Découvrez le New Worker, un programme situé en plein coeur du 7ème arrondissement de Lyon, à quelques pas de la place Jean Macé. Son espace modulable, sa qualité environnementale et son installation moderne font de cet ensemble immobilier, un choix optimal pour votre activité.
| Étage | Type | Surfaces | Dispo | Loyer | Charges | Type de bailRév. annuelle |
|---|---|---|---|---|---|---|
| 5 | Bureaux | 359,83 | Immédiate | 200 HT/HC/m²/an | 40 m²/an HT | 6-9 ansILAT Indice des Loyers des Activités Tertiaires |
| 5 | Bureaux | 312,22 | Immédiate | 200 HT/HC/m²/an | 40 m²/an HT | 6-9 ansILAT Indice des Loyers des Activités Tertiaires |
| 5 | Terrasse | 7 | Immédiate | 90 HT/HC/m²/an | 20 m²/an HT | 6-9 ansILAT Indice des Loyers des Activités Tertiaires |
| 4 | Bureaux | 362,77 | Immédiate | 195 HT/HC/m²/an | 40 m²/an HT | 6-9 ansILAT Indice des Loyers des Activités Tertiaires |
| 4 | Bureaux | 155,17 | Immédiate | 200 m²/an/HT-HC | 40 m²/an HT | 6-9 ansILAT Indice des Loyers des Activités Tertiaires |
| 4 | Terrasse | 7 | Immédiate | 90 HT/HC/m²/an | 20 m²/an HT | 6-9 ansILAT Indice des Loyers des Activités Tertiaires |
| 3 | Bureaux | 137,89 | Immédiate | 200 HT/HC/m²/an | 40 m²/an HT | 6-9 ansILAT Indice des Loyers des Activités Tertiaires |
| RDC | Activités | 729 | Immédiate | 125 m²/an/HT-HC | 6-9 ansILAT Indice des Loyers des Activités Tertiaires | |
| 3 | Bureaux | 413,84 | Immédiate | 195 HT/HC/m²/an | 40 m²/an HT | 6-9 ansILAT Indice des Loyers des Activités Tertiaires |
| 3 | Terrasse | 5 | Immédiate | 90 HT/HC/m²/an | 20 m²/an HT | 6-9 ansILAT Indice des Loyers des Activités Tertiaires |
| 2 | Bureaux | 414,04 | Immédiate | 195 HT/HC/m²/an | 40 m²/an HT | 6-9 ansILAT Indice des Loyers des Activités Tertiaires |
| 2 | Terrasse | 5 | Immédiate | 90 HT/HC/m²/an | 20 m²/an HT | 6-9 ansILAT Indice des Loyers des Activités Tertiaires |
| 1 | Bureaux | 413,14 | Immédiate | 195 HT/HC/m²/an | 40 m²/an HT | 6-9 ansILAT Indice des Loyers des Activités Tertiaires |
| 1 | Terrasse | 71 | Immédiate | 90 HT/HC/m²/an | 20 m²/an HT | 6-9 ansILAT Indice des Loyers des Activités Tertiaires |
| SS | Parkings | Immédiate | 1200 HT/HC/U/an | 25 U/an HT | 6-9 ansILAT Indice des Loyers des Activités Tertiaires |
Impôt Foncier : 16 €/m²/an
Régime Fiscal : T.V.A.
Dépôt de garantie : 3 mois de loyer HT HC
Honoraires : 15% HT du loyer annuel HT HC à la charge du preneur
Information sur le Bail :
Charges prévisionnelles BX 20 euros (hors consommations CVC estimées environ 20 eurosHT)
Prestations :
- Au coeur de Gerland, quartier Duvivier, NEW WORKER est un ensemble composé de 2 bâtiments qui répondront aux normes CEP -30% et RT2012 -20 % et qui bénéficieront de la certification Breeam Very Good. L'immeuble offrira une modularité optimale.
- Des lots sur mesure 13% de parties communes
- Bâtiment intelligent et évolutif (Architecture IP Evolutive)
- Panneaux solaires en toiture
- Des terrasses et balcons
- Espace vert privé
- Stationnements 2 roues
- 78 stationnements en sous-sol soit 1place/70 m²
- Site entièrement clos et sécurisé
- RDC à destination d'activités
- hauteur libre de 5,45 m
- Fluide en attente
- Double vitrage et traitement acoustique de la façade
- Menuiseries en aluminium thermolaqué
- Hauteur sous plafond des bureaux de 2,65 m
- Faux plafond avec éclairage LED
- Faux plancher technique
- VMC double flux
- Fibre optique
- GTC
- Contrôle d'accès par interphone
- Deux ascenseurs par bâtiment
- Bâtiment B non divisible
- Effectif maximum de 599 personnes
- Stationnements extérieurs exclusivement réservés aux locaux d'activités
- 20 % des places en sous-sol sont équipées de borne électrique
- Surface RDC : 729 m²
Accessibilité:
A moins de 10 minutes du pôle multimodal de Jean Macé
Bus n° C12 "Garibaldi - Berthelot" au pied de l'immeuble
Bus Nombreuses lignes de bus sur Jean Macé
Tramway T2 "Garibaldi - Berthelot" à 120 m
Métro Ligne B "Jean Macé" à moins de 10 minutes à pied et à moins de 5 minutes via le tramway
SNCF Gare TER de Jean Macé à 650 m
Les informations sur les risques auxquels ce bien est exposé sont disponibles sur le site Géorisques : www.georisques.gouv.fr
Emplacement(s) de Parking: 36 places
Voir plus
Afficher les consommations énergétiques
Localisation et transport aux alentours
- Garibaldi-Berthelot103m (2min à pied)2
- Route de Vienne472m (7min à pied)2
Favoris
Exporter
Appeler
Contacter
Signaler cette annonce
