Conseil en immobilier d'entreprise, Cushman & Wakefield est un acteur incontournable au rayonnement international. Cushman & Wakefield offre des solutions dans toutes les étapes que comporte un p ...
En savoir plus



339 m²
HT HC
ELION - Location bureau - 339 m²
Lyon 7 (69007)
Dernière mise à jour : Hier
Bureaux lumineux de 339 m² avec terrasse - Lyon 7 Jean Macé
Immeuble ELION
PC 04 37 24 74 28301
PC accordé : Pris en compte le 31.05.2020.
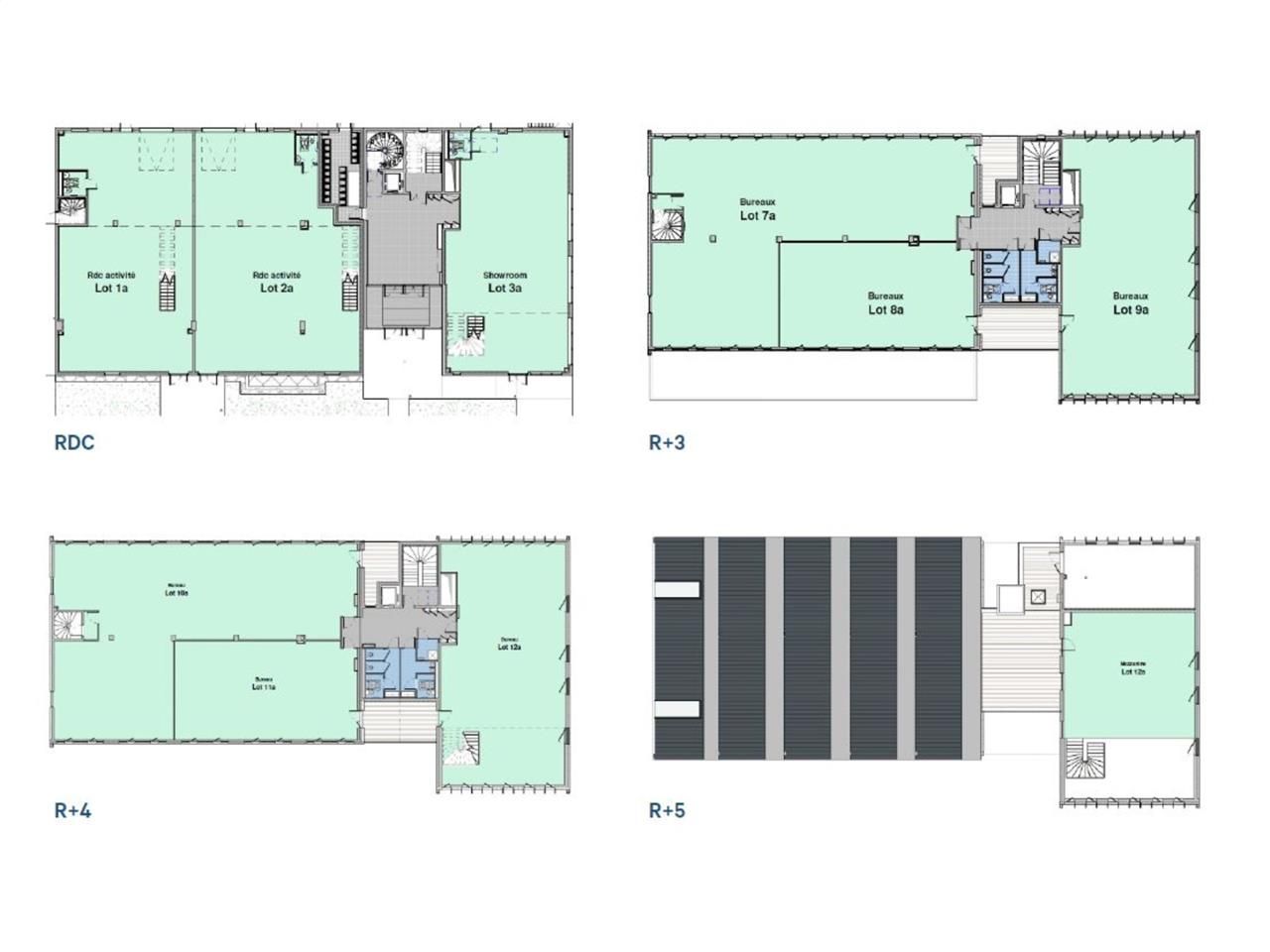
Cushman & Wakefield vous propose : À louer, au coeur du 7? arrondissement de Lyon, un plateau de bureaux de 339 m² non divisibles, idéalement situé dans l'immeuble « Les Ateliers du Faubourg ». Implanté au 4? étage, ce plateau bénéficie d'une belle luminosité grâce à ses larges surfaces vitrées et à un éclairage naturel zénithal. Une terrasse privative de 12 m² complète l'ensemble, offrant un espace extérieur rare et agréable pour vos collaborateurs.
L'immeuble, à l'architecture contemporaine inspirée du passé industriel du quartier, répond aux normes RT 2012 et dispose d'une certification environnementale BREEAM Very Good. Conçu pour le confort et la performance, il est équipé d'un système de rafraîchissement chaud/froid DRV 3 tubes, d'une ventilation double flux, de faux plafonds en dalles minérales et de moquette en dalles plombantes. La fibre optique est installée, et l'accès se fait via un système Vigik sécurisé avec portier vidéo. L'éclairage LED et les détecteurs de présence contribuent à la maîtrise des consommations.
L'adresse profite d'une excellente desserte : métro B et gare de Jean Macé à 700 mètres, tramway T2, lignes de bus C12 et 35 à proximité immédiate, accès rapide à l'A6 et à l'A7, et aéroport de Lyon-Saint-Exupéry à seulement 25 minutes. La gare Part-Dieu est accessible en quinze minutes à pied ou en métro.
Le loyer annuel est de 57 630 euros HT/HC, avec des charges prévisionnelles de 30 euros HT/m²/an, hors parking. Des emplacements de stationnement intérieurs ou extérieurs sont disponibles en option. Le bail commercial est proposé pour une durée 3-6-9 ans, avec une disponibilité immédiate.
Ces bureaux modernes et fonctionnels, situés dans un environnement professionnel dynamique, sont une opportunité rare sur le secteur pour toute entreprise souhaitant allier image, confort et accessibilité.
Régime Fiscal : T.V.A.
Dépôt de garantie : 3 mois de loyer HT
Paiement Loyer : Trimestriel
Honoraires : à la charge du preneur
Information sur le Bail :
Charges : 13 022.00 euros HT / HC / AN - HORS PARKING Bureaux bruts : 155 euros HT/HC/m²/an Loyer parking Parking simple intérieur : 1 200,00 euros /U/an Parking extérieur : 800,00 euros/U/an Parking double intérieur : 1 400,00 euros/U/an Frais de rédaction d'actes : 1 000 euros HT
Prestations :
Accessibilité:
Métro Jean Macé (ligne B) à 700 m
Tram Ligne T2
SNCF Gare de Jean Macé à 700m
SNCF Gare de Lyon Part Dieu à 15 min à pied + métro
Bus Lignes n° C12,35 à 150m
Accès routier A 2 km de l'A6 et de l'A7
Aéroport Aéroport Lyon-Saint-Ex. à 25 min.
Les informations sur les risques auxquels ce bien est exposé sont disponibles sur le site Géorisques : www.georisques.gouv.fr
Immeuble ELION
PC 04 37 24 74 28301
PC accordé : Pris en compte le 31.05.2020.
Cushman & Wakefield vous propose : À louer, au coeur du 7? arrondissement de Lyon, un plateau de bureaux de 339 m² non divisibles, idéalement situé dans l'immeuble « Les Ateliers du Faubourg ». Implanté au 4? étage, ce plateau bénéficie d'une belle luminosité grâce à ses larges surfaces vitrées et à un éclairage naturel zénithal. Une terrasse privative de 12 m² complète l'ensemble, offrant un espace extérieur rare et agréable pour vos collaborateurs.
L'immeuble, à l'architecture contemporaine inspirée du passé industriel du quartier, répond aux normes RT 2012 et dispose d'une certification environnementale BREEAM Very Good. Conçu pour le confort et la performance, il est équipé d'un système de rafraîchissement chaud/froid DRV 3 tubes, d'une ventilation double flux, de faux plafonds en dalles minérales et de moquette en dalles plombantes. La fibre optique est installée, et l'accès se fait via un système Vigik sécurisé avec portier vidéo. L'éclairage LED et les détecteurs de présence contribuent à la maîtrise des consommations.
L'adresse profite d'une excellente desserte : métro B et gare de Jean Macé à 700 mètres, tramway T2, lignes de bus C12 et 35 à proximité immédiate, accès rapide à l'A6 et à l'A7, et aéroport de Lyon-Saint-Exupéry à seulement 25 minutes. La gare Part-Dieu est accessible en quinze minutes à pied ou en métro.
Le loyer annuel est de 57 630 euros HT/HC, avec des charges prévisionnelles de 30 euros HT/m²/an, hors parking. Des emplacements de stationnement intérieurs ou extérieurs sont disponibles en option. Le bail commercial est proposé pour une durée 3-6-9 ans, avec une disponibilité immédiate.
Ces bureaux modernes et fonctionnels, situés dans un environnement professionnel dynamique, sont une opportunité rare sur le secteur pour toute entreprise souhaitant allier image, confort et accessibilité.
| Étage | Type | Surfaces | Dispo | Loyer | Charges | Type de bailRév. annuelle |
|---|---|---|---|---|---|---|
| 4 | Bureaux | 339 | Immédiate | 155 HT/HC/m²/an | 30 HT/m²/an | 3-6-9 ansSur l'indice ILAT |
| Intérieur | Parkings | Immédiate | 1200 HT/HC/U/an | 3-6-9 ansSur l'indice ILAT |
Régime Fiscal : T.V.A.
Dépôt de garantie : 3 mois de loyer HT
Paiement Loyer : Trimestriel
Honoraires : à la charge du preneur
Information sur le Bail :
Charges : 13 022.00 euros HT / HC / AN - HORS PARKING Bureaux bruts : 155 euros HT/HC/m²/an Loyer parking Parking simple intérieur : 1 200,00 euros /U/an Parking extérieur : 800,00 euros/U/an Parking double intérieur : 1 400,00 euros/U/an Frais de rédaction d'actes : 1 000 euros HT
Prestations :
- ERP : ERP possible
- Architecture moderne inspirée de l'histoire industrielle
- Lots mixtes Bureaux/activités
- Luminosité offerte par des surfaces vitrées importantes et zénithale
- Immeuble RT 2012
- Panneaux photovoltaïques
- Façade béton bardage
- Rafraichissement chaud/froid DRV 3 tubes
- ERP 5 au RDC et R+1
- Certification BREEAM Very Good
- Hauteur libre 2,6 m sous plafond
- Faux plafond en dalles minérales
- Moquette en dalles plombantes
- Système de ventilation double flux
- Production thermique commandée individuellement par lot
- Fibre optique
- Porte semi automatique en entrée d'immeuble
- Contrôle d'accès par « Vigik »
- Portier vidéo
- Détecteur de présence sur parties communes et bureaux
- Eclairage par LED
- 2 ascenseurs
- Terrasses du 3ème au 5ème étage de 16 m² à 162 m²
- Douche
- Surface RDC : 0 m²
Accessibilité:
Métro Jean Macé (ligne B) à 700 m
Tram Ligne T2
SNCF Gare de Jean Macé à 700m
SNCF Gare de Lyon Part Dieu à 15 min à pied + métro
Bus Lignes n° C12,35 à 150m
Accès routier A 2 km de l'A6 et de l'A7
Aéroport Aéroport Lyon-Saint-Ex. à 25 min.
Les informations sur les risques auxquels ce bien est exposé sont disponibles sur le site Géorisques : www.georisques.gouv.fr
Emplacement(s) de Parking: 10 places
Voir plus
Afficher les consommations énergétiques
Localisation et transport aux alentours
Favoris
Exporter
Appeler
Contacter
Signaler cette annonce










