Conseil en immobilier d'entreprise, Cushman & Wakefield est un acteur incontournable au rayonnement international. Cushman & Wakefield offre des solutions dans toutes les étapes que comporte un p ...
En savoir plus



2 414 m² divisible dès 138 m²
HT HC
NEW WORKER - Location bureau - 2414 m²
Lyon 7 (69007)
Dernière mise à jour : Il y a 1 mois
Bureaux à louer Jean- Macé
Immeuble NEW WORKER
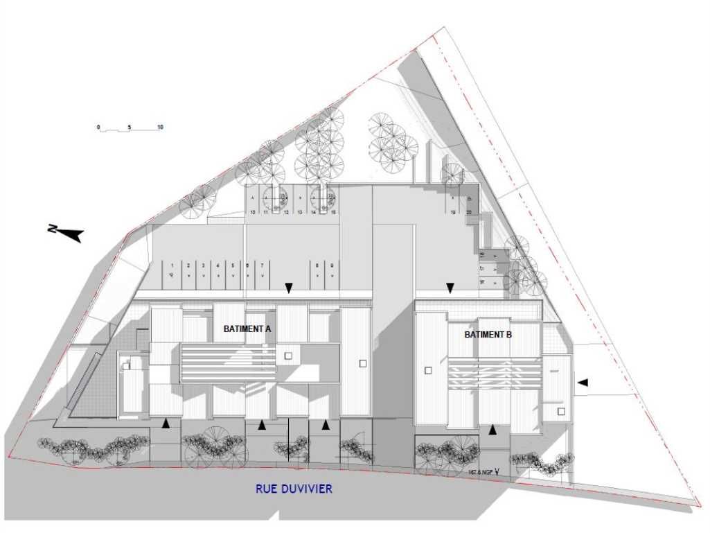
Cushman & Wakefield vous propose à la location plusieurs surfaces disponibles au sein de l'immeuble neuf "New Worker", situé Rue Paul Duvivier à Lyon 7ème : 2 582 m² divisibles à partir de 137 m². Offrant une grande flexibilité d'aménagement pour répondre aux besoins spécifiques des entreprises.
Les plateaux de bureaux sont lumineux et bénéficient de prestations de qualité, avec des matériaux modernes et une conception fonctionnelle. Plusieurs lots sont équipés de terrasses et balcons privatifs, offrant un cadre de travail agréable et des possibilités d'aménagement extérieurs.
L'emplacement est particulièrement pratique, à seulement 8 minutes à pied de la station de métro Jean Macé (ligne B), assurant une excellente connectivité avec le reste de la ville et la métropole lyonnaise. Ce bien représente une opportunité rare pour les entreprises recherchant des locaux modernes, bien situés et adaptés aux exigences actuelles en matière de confort et d'accessibilité. Plusieurs emplacements en sous-sol ainsi qu'un parking vélo complètent ce bien.
Impôt Foncier : 16 €//m²/an
Régime Fiscal : T.V.A.
Dépôt de garantie : 3 mois de loyer HT/HC
Paiement Loyer : Trimestriel
Honoraires : 15 % HT du loyer annuel HT/HC à la charge du preneur.
Information sur le Bail :
Bâtiment A - 4eme étage Possibilité de louer soit 517,94 m² ou un lot de 155,17 m² ou un lot de 362,77 m² Charges prévisionnelles 2025 - HT.HC/m²/an 20 euros (hors consommations CVC estimées environ 20 eurosHT)
Prestations :
Accessibilité:
Métro Jean Macé (ligne B ) à 300 m
Bus Ligne C7
Tram T2
SNCF Gare Jean Macé à 300 m
Les informations sur les risques auxquels ce bien est exposé sont disponibles sur le site Géorisques : www.georisques.gouv.fr
Immeuble NEW WORKER
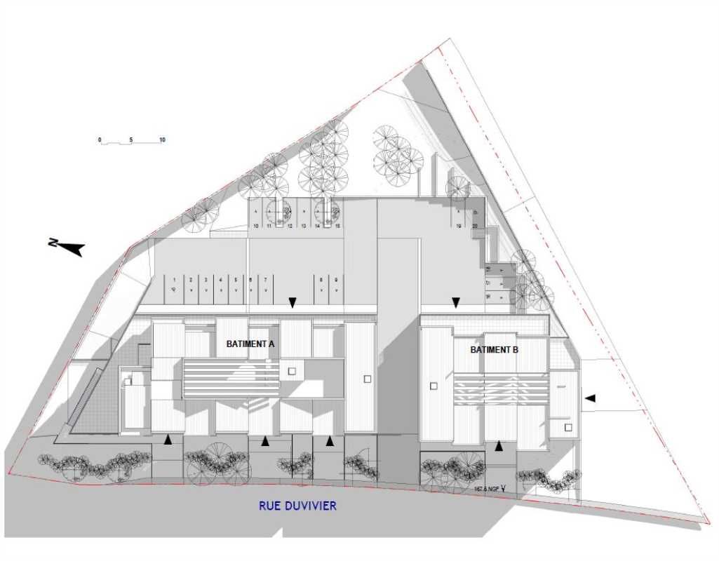
Cushman & Wakefield vous propose à la location plusieurs surfaces disponibles au sein de l'immeuble neuf "New Worker", situé Rue Paul Duvivier à Lyon 7ème : 2 582 m² divisibles à partir de 137 m². Offrant une grande flexibilité d'aménagement pour répondre aux besoins spécifiques des entreprises.
Les plateaux de bureaux sont lumineux et bénéficient de prestations de qualité, avec des matériaux modernes et une conception fonctionnelle. Plusieurs lots sont équipés de terrasses et balcons privatifs, offrant un cadre de travail agréable et des possibilités d'aménagement extérieurs.
L'emplacement est particulièrement pratique, à seulement 8 minutes à pied de la station de métro Jean Macé (ligne B), assurant une excellente connectivité avec le reste de la ville et la métropole lyonnaise. Ce bien représente une opportunité rare pour les entreprises recherchant des locaux modernes, bien situés et adaptés aux exigences actuelles en matière de confort et d'accessibilité. Plusieurs emplacements en sous-sol ainsi qu'un parking vélo complètent ce bien.
| Étage | Type | Surfaces | Dispo | Loyer | Charges | Type de bailRév. annuelle |
|---|---|---|---|---|---|---|
| R+5 | Bureaux | 360 | 224,99 HT/HC/m²/an | 20 HT/m²/an | 6-9 ansSur l'indice ILAT | |
| R+5 | Bureaux | 312 | 223,22 HT/HC/m²/an | 20 HT/m²/an | 6-9 ansSur l'indice ILAT | |
| R+4 | Bureaux | 363 | 219,75 HT/HC/m²/an | 20 HT/m²/an | 6-9 ansSur l'indice ILAT | |
| R+3 | Bureaux | 138 | 217,23 HT/HC/m²/an | 20 HT/m²/an | 6-9 ansSur l'indice ILAT | |
| R+3 | Bureaux | 414 | 213,41 HT/HC/m²/an | 20 HT/m²/an | 6-9 ansSur l'indice ILAT | |
| R+2 | Bureaux | 414 | 213,5 HT/HC/m²/an | 20 HT/m²/an | 6-9 ansSur l'indice ILAT | |
| R+1 | Bureaux | 413 | 225,07 HT/HC/m²/an | 20 HT/m²/an | 6-9 ansSur l'indice ILAT | |
| Sous-Sol | Parkings | 1200 HT/HC/U/an | 25 HT/U/an | 6-9 ansSur l'indice ILAT |
Impôt Foncier : 16 €//m²/an
Régime Fiscal : T.V.A.
Dépôt de garantie : 3 mois de loyer HT/HC
Paiement Loyer : Trimestriel
Honoraires : 15 % HT du loyer annuel HT/HC à la charge du preneur.
Information sur le Bail :
Bâtiment A - 4eme étage Possibilité de louer soit 517,94 m² ou un lot de 155,17 m² ou un lot de 362,77 m² Charges prévisionnelles 2025 - HT.HC/m²/an 20 euros (hors consommations CVC estimées environ 20 eurosHT)
Prestations :
- Niveau RT2012-20% sur la partie tertiaire
- Certification Breeam Very Good sur la partie tertiaire
- Respect du Référentiel Tertiaire de la Métropole de Lyon
- Connexion fibre optique
- Bâtiment intelligent et évolutif (architecture IP évolutive)
- Panneaux solaires en toiture
- Site entièrement clos et sécurisé
- Hauteur sous plafond : 2,65 m
- Trame optimisée de 17 m
- Faux-plancher technique
- Faux-plafond
- Isolation extérieure
- Chauffage & climatisation des bureaux
- Bâtiment A - Plateaux divisibles à partir de 313 m²
- Bâtiment B - Plateaux divisibles à partir de 413 m²
- 78 stationnements en sous-sol
Accessibilité:
Métro Jean Macé (ligne B ) à 300 m
Bus Ligne C7
Tram T2
SNCF Gare Jean Macé à 300 m
Les informations sur les risques auxquels ce bien est exposé sont disponibles sur le site Géorisques : www.georisques.gouv.fr
36 Parking(s) en sous-sol
Voir plus
Afficher les consommations énergétiques
Localisation et transport aux alentours
- Garibaldi-Berthelot100m (2min à pied)2
- Route de Vienne462m (7min à pied)2
Favoris
Exporter
Appeler
Contacter
Signaler cette annonce










