Arthur Loyd est implantée depuis 1986 à Orléans, soit 35 ans de présence au quotidien sur le terrain et auprès des acteurs économiques du Loiret.Nous accompagnons les porteurs de projet, quelles qu ...
En savoir plus

3 423 m² divisible dès 264 m²
HT HC
ILOT F4 - Location bureau - 3423 m²
Fleury-les-Aubrais (45400)
Dernière mise à jour : Hier
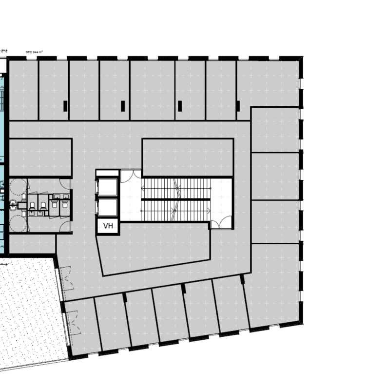
Programme neuf tertiaire d'environ 3 100 m2 divisibles à partir de 140 m2 - FLEURY LES AUBRAIS (INTERIVES)
Immeuble ILOT F4
Centre d'affaires, Coworking, Salle de sports
En plein nouveau quartier d'affaires d'INTERIVES, un projet de construction d'un immeuble doté d'une architecture moderne à usage de bureau et commerce, d'une surface totale de 3 100 m2 divisibles à partir de 140 m2 répartis sur 7 niveaux dont une surface commerciale de 437 m2.
Les bureaux seront livrés aménagés non cloisonnés.
La cellule commerciale sera livrée brute de béton, fluide en attente avec vitrines.
Le bâtiment offre 64 places de stationnement au rez-de-chaussée et en sous-sol (1 place pour 48 m2).
Régime Fiscal : T.V.A.
Dépôt de garantie : 3 mois de loyer TTC
Honoraires : 15% HT du loyer annuel, à la charge du preneur
Information sur le Bail :
Bail en Etat Futur d' Achèvement 3/6/9 dont 6 ans fermes Bail notarié aux frais du preneur
Prestations :
Accessibilité:
RD / RN sur l'axe RD2020 entrant et sortant du centre ville d'Orléans, à 5 minutes de l'échangeur autoroutier Orléans Nord.
Tram Ligne A Arrêt Libération
Autoroute à 1h de Paris (A10 à 10 min en voiture)
SNCF Gare des Aubrais proche à un arrpet de Tram
Bus Ligne 45 Arrêt INTERIVES
Les informations sur les risques auxquels ce bien est exposé sont disponibles sur le site Géorisques : www.georisques.gouv.fr
Immeuble ILOT F4
Centre d'affaires, Coworking, Salle de sports
En plein nouveau quartier d'affaires d'INTERIVES, un projet de construction d'un immeuble doté d'une architecture moderne à usage de bureau et commerce, d'une surface totale de 3 100 m2 divisibles à partir de 140 m2 répartis sur 7 niveaux dont une surface commerciale de 437 m2.
Les bureaux seront livrés aménagés non cloisonnés.
La cellule commerciale sera livrée brute de béton, fluide en attente avec vitrines.
Le bâtiment offre 64 places de stationnement au rez-de-chaussée et en sous-sol (1 place pour 48 m2).
| Étage | Type | Surfaces | Dispo | Loyer | Charges | Type de bailRév. annuelle |
|---|---|---|---|---|---|---|
| 4 | Bureaux | 525 | 1er octobre 2027 | 45,26 m²/an HT HC | Commercial 6/9 ansILAT Indice des Loyers des Activités Tertiaires | |
| 3 | Bureaux | 565 | 1er octobre 2027 | 82,35 m²/an HT HC | Commercial 6/9 ansILAT Indice des Loyers des Activités Tertiaires | |
| 3 | Bureaux | 282 | 1er octobre 2027 | 165 m²/an HT HC | Commercial 6/9 ansILAT Indice des Loyers des Activités Tertiaires | |
| 2 | Bureaux | 565 | 1er octobre 2027 | 82,35 m²/an HT HC | Commercial 6/9 ansILAT Indice des Loyers des Activités Tertiaires | |
| 2 | Bureaux | 282 | 1er octobre 2027 | 165 m²/an HT HC | Commercial 6/9 ansILAT Indice des Loyers des Activités Tertiaires | |
| 1 | Bureaux | 560 | 1er octobre 2027 | 83,09 m²/an HT HC | Commercial 6/9 ansILAT Indice des Loyers des Activités Tertiaires | |
| 1 | Bureaux | 264 | 1er octobre 2027 | 176,25 m²/an HT HC | Commercial 6/9 ansILAT Indice des Loyers des Activités Tertiaires | |
| RDC | Commerce | 380 | 1er octobre 2027 | 218,5 m²/an HT HC | Commercial 6/9 ansILAT Indice des Loyers des Activités Tertiaires | |
| 1SS | Parkings | 1er octobre 2027 | 1200 place/an HT HC | Commercial 6/9 ansILAT Indice des Loyers des Activités Tertiaires | ||
| RDC | Parkings | 1er octobre 2027 | 1200 place/an HT HC | Commercial 6/9 ansILAT Indice des Loyers des Activités Tertiaires |
Régime Fiscal : T.V.A.
Dépôt de garantie : 3 mois de loyer TTC
Honoraires : 15% HT du loyer annuel, à la charge du preneur
Information sur le Bail :
Bail en Etat Futur d' Achèvement 3/6/9 dont 6 ans fermes Bail notarié aux frais du preneur
Prestations :
- ERP : 4ème catégorie
- Bâtiment classé ERP catégorie W & R capacitaire : 1 personne pour 10 m2 environ
- 2 ascenseurs
- Certification BREAM
- Livraison des bureaux aménagés non cloisonnés sauf en RDC :
- Moquette au sol,
- Faux plafond,
- Pré-câblé en courant fort, Raccordement à la FO
- Chauffage urbain et rafraîchissement d'air (groupe froid en toiture)
- Hauteur sous-plafond 2,70 mètres
- CTA Double flux
- Désemfumage naturel des plateaux
- Contrôle d'accès par badge et par Visiophone
- Surface RDC : 437 m²
Accessibilité:
RD / RN sur l'axe RD2020 entrant et sortant du centre ville d'Orléans, à 5 minutes de l'échangeur autoroutier Orléans Nord.
Tram Ligne A Arrêt Libération
Autoroute à 1h de Paris (A10 à 10 min en voiture)
SNCF Gare des Aubrais proche à un arrpet de Tram
Bus Ligne 45 Arrêt INTERIVES
Les informations sur les risques auxquels ce bien est exposé sont disponibles sur le site Géorisques : www.georisques.gouv.fr
Voir plus
Afficher les consommations énergétiques
Localisation et transport aux alentours
- Libération537m (8min à pied)1
Favoris
Exporter
Appeler
Contacter
Signaler cette annonce
