L’agence CBRE Lyon conseille et accompagne les chefs d’entreprise dans leurs projets immobiliers quels que soient leur taille et leur secteur d’activité. Spécialistes de la transaction de bureaux, ...
En savoir plus

2 531 m² divisible dès 135 m²
HT HC
Location bureau - 2531 m²
Lyon 3 (69003)
Dernière mise à jour : Il y a 2 mois
Située à proximité immédiate des transports en communs et de toutes les commodités de la Part-Dieu, surface rare de bureaux à louer dans un immeuble tertiaire de bon standing.
Le secteur de Lyon Part-Dieu est l'une des plus importantes zones d'affaires de l'agglomération lyonnaise et la seconde en France, avec ses 2 200 établissements implantés et ses 55 000 emplois. L'implantation de nombreux sièges sociaux nationaux et internationaux positionne le quartier comme site majeur de décisions stratégiques. Le secteur bénéficie d'une desserte idéale grâce à son pôle multimodal. De plus le quartier s'inscrit dans une démarche de rénovation urbaine de par la restructuration de sa gare et son centre commercial.
Impôt Foncier : 30,3 €/m²/an
Régime Fiscal : T.V.A.
Dépôt de garantie : 3 mois de loyer TTC
Paiement Loyer : trimestriel
Honoraires : 15% HT du loyer annuel HT HC à la charge du preneur
Information sur le Bail :
Bail de courte durée avec fin de bail prévue au 30/06/2026. TEOM incluse dans la taxe foncière
Prestations :
Accessibilité:
Route Bd des Tchécoslovaques, Av. des Frères Lumière, cours Albert Thomas
Metro Ligne D (Station Sans-Souci)
Bus Lignes C7, 69
Tramway T4 "Manufacture Montluc
SNCF Gare TGV Lyon part-Dieu à 7 min environ, directe par le T4
. Station Vélo'V
Les informations sur les risques auxquels ce bien est exposé sont disponibles sur le site Géorisques : www.georisques.gouv.fr
Le secteur de Lyon Part-Dieu est l'une des plus importantes zones d'affaires de l'agglomération lyonnaise et la seconde en France, avec ses 2 200 établissements implantés et ses 55 000 emplois. L'implantation de nombreux sièges sociaux nationaux et internationaux positionne le quartier comme site majeur de décisions stratégiques. Le secteur bénéficie d'une desserte idéale grâce à son pôle multimodal. De plus le quartier s'inscrit dans une démarche de rénovation urbaine de par la restructuration de sa gare et son centre commercial.
| Étage | Type | Surfaces | Dispo | Loyer | Charges | Type de bailRév. annuelle |
|---|---|---|---|---|---|---|
| RDC | Bureaux | 274 | Immédiate | 100 m²/an HT HC | 4600 HT/m²/an | 3-6-9 ansIndice ILAT |
| RDC | Bureaux | 136 | Immédiate | 100 m²/an HT HC | 46 HT/m²/an | PrécaireIndice ILAT |
| 2 | Bureaux | 343 | Immédiate | 100 m²/an HT HC | 46 HT/m²/an | PrécaireIndice ILAT |
| 2 | Bureaux | 135 | Immédiate | 100 m²/an HT HC | 46 HT/m²/an | PrécaireIndice ILAT |
| 3 | Bureaux | 342 | Immédiate | 70 m²/an HT HC | 46 HT/m²/an | PrécaireIndice ILAT |
| 3 | Bureaux | 135 | Immédiate | 100 m²/an HT HC | 46 HT/m²/an | PrécaireIndice ILAT |
| 4 | Bureaux | 342 | Immédiate | 100 m²/an HT HC | 46 HT/m²/an | PrécaireIndice ILAT |
| 5 | Bureaux | 342 | Immédiate | 90 m²/an HT HC | 46 HT/m²/an | PrécaireIndice ILAT |
| 5 | Bureaux | 135 | Immédiate | 90 m²/an HT HC | 46 HT/m²/an | PrécaireIndice ILAT |
| 6 | Bureaux | 347 | Immédiate | 100 m²/an HT HC | 46 HT/m²/an | PrécaireIndice ILAT |
| SS | Parkings | Immédiate | 1450 U/an HT HC | PrécaireIndice ILAT |
Impôt Foncier : 30,3 €/m²/an
Régime Fiscal : T.V.A.
Dépôt de garantie : 3 mois de loyer TTC
Paiement Loyer : trimestriel
Honoraires : 15% HT du loyer annuel HT HC à la charge du preneur
Information sur le Bail :
Bail de courte durée avec fin de bail prévue au 30/06/2026. TEOM incluse dans la taxe foncière
Prestations :
- Accès sécurisé par digicode et interphone
- Ascenseur
- Sanitaires sur le palier
- Immeuble fibré
- Plateaux cloisonnés, en état d'usage
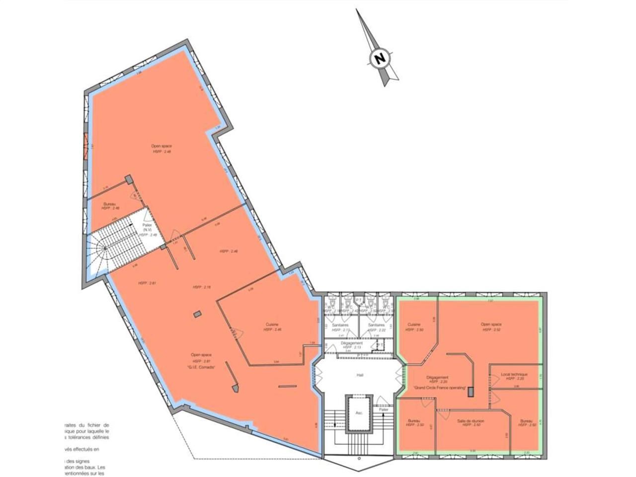
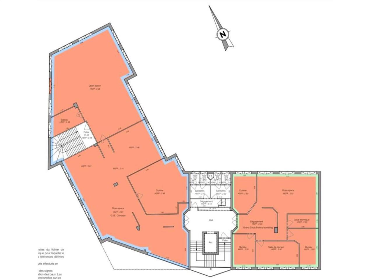
- Surface RDC : 351,58 m²
Accessibilité:
Route Bd des Tchécoslovaques, Av. des Frères Lumière, cours Albert Thomas
Metro Ligne D (Station Sans-Souci)
Bus Lignes C7, 69
Tramway T4 "Manufacture Montluc
SNCF Gare TGV Lyon part-Dieu à 7 min environ, directe par le T4
. Station Vélo'V
Les informations sur les risques auxquels ce bien est exposé sont disponibles sur le site Géorisques : www.georisques.gouv.fr
18 Parkings int. 27 Parkings int.
Voir plus
Afficher les consommations énergétiques
Favoris
Exporter
Appeler
Contacter
Signaler cette annonce










