Nous sommes Immprove, une grande équipe de plus de 200 experts en immobilier d’entreprise, implantés localement avec plus de 20 agences sur tout le territoire.Depuis 2009, notre proximité, notre ét ...
En savoir plus



258 m²
HT HC
Location activité/entrepôt - 258 m²
Eckbolsheim (67201)
Dernière mise à jour : Il y a 10 jours
IMMPROVE vous propose des locaux d'Activités à louer à Eckbolsheim de 250 m² environ répartis entre une surface de bureaux en R+1 et un local d'activité accessible par une porte sectionnelle. Ces locaux seront demain accessibles par tram dont la station sera à quelques mètres.
Le lot dispose également de 8 places de parking.
A l'ouest de Strasbourg, la Parc d'Activités d'Eckbolsheim fait partie des 33 communes de l'Eurométropole de Strasbourg.
Ce parc s'étend sur 70 ha et compte à ce jour environ 150 entreprises.
La zone est bien desservie par les réseaux routiers, notamment par l'autoroute A35, et par réseaux de transports en commun (bus 43 et bus 209), facilitant ainsi le transport de marchandises et l'accès des employés. En mode doux, la zone est accessible par un réseau de pistes cyclables bien développé. Demain, elle sera également traversée par le tram, l'extension de la ligne étant en cours de travaux.
L'aéroport d'Entzheim se trouve à seulement 5km. Cette connectivité facilite les échanges commerciaux et renforce la compétitivité des entreprises implantées dans la zone.
Des sociétés telles que MISE AU GREEN, SONETMO, LLERENA, RHIN CLIMATISATION, PODO-CONFORT, WOLFF MOTO PRODUCTS, STABILO INTERNATIONAL et bien d'autres encore y sont implantées et emploient environ 2000 salariés.
Impôt Foncier : 3226 €/
Régime Fiscal : T.V.A. (20%)
Dépôt de garantie : 3 mois de loyer HT HC
Honoraires : 15% HT du loyer annuel HT HC à la charge du preneur
Prestations :
Accessibilité:
Bus Ligne 4
Tram Ligne D
Autoroute A35 - Sortie 4 Hautepierre Centre commercial Centre sportif
Les informations sur les risques auxquels ce bien est exposé sont disponibles sur le site Géorisques : www.georisques.gouv.fr
Le lot dispose également de 8 places de parking.
A l'ouest de Strasbourg, la Parc d'Activités d'Eckbolsheim fait partie des 33 communes de l'Eurométropole de Strasbourg.
Ce parc s'étend sur 70 ha et compte à ce jour environ 150 entreprises.
La zone est bien desservie par les réseaux routiers, notamment par l'autoroute A35, et par réseaux de transports en commun (bus 43 et bus 209), facilitant ainsi le transport de marchandises et l'accès des employés. En mode doux, la zone est accessible par un réseau de pistes cyclables bien développé. Demain, elle sera également traversée par le tram, l'extension de la ligne étant en cours de travaux.
L'aéroport d'Entzheim se trouve à seulement 5km. Cette connectivité facilite les échanges commerciaux et renforce la compétitivité des entreprises implantées dans la zone.
Des sociétés telles que MISE AU GREEN, SONETMO, LLERENA, RHIN CLIMATISATION, PODO-CONFORT, WOLFF MOTO PRODUCTS, STABILO INTERNATIONAL et bien d'autres encore y sont implantées et emploient environ 2000 salariés.
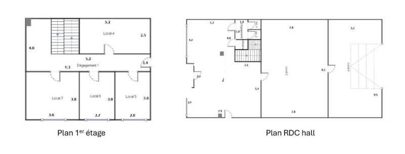
| Étage | Type | Surfaces | Dispo | Loyer | Charges | Type de bailRév. annuelle |
|---|---|---|---|---|---|---|
| R+1 | Bureaux | 138 | selon l'indice des loyers des activités tertiaires (ILAT) | |||
| RDC | Activités | 120 | selon l'indice des loyers des activités tertiaires (ILAT) | |||
| Total Cellule LOT 04 | Activités | 258 | A convenir | 108,53 m²/an HT HC | 4 m²/an HT | Bail Commercial 3-6-9 ansselon l'indice des loyers des activités tertiaires (ILAT) |
Impôt Foncier : 3226 €/
Régime Fiscal : T.V.A. (20%)
Dépôt de garantie : 3 mois de loyer HT HC
Honoraires : 15% HT du loyer annuel HT HC à la charge du preneur
Prestations :
- Ossature métallique
- Toiture bac acier isolée
- Murs maçonnerie
- Sol béton
- Hauteur : 3, 5 à 4 mètres
- 1 porte sectionnelle de plain pied à l'arrière
- Bureaux en open space au rdc
- 2 sanitaires en RDC dont un PMR
- Bureaux au 1er étage (4 bureaux)
- Sol lino
- Murs peints
- Faux plafonds avec luminaires encastrés
- Eclairage led
- Climatisation réversible
- Coin kitchenette
- Surface RDC : 120 m²
- Surface terrain : 0
Accessibilité:
Bus Ligne 4
Tram Ligne D
Autoroute A35 - Sortie 4 Hautepierre Centre commercial Centre sportif
Les informations sur les risques auxquels ce bien est exposé sont disponibles sur le site Géorisques : www.georisques.gouv.fr
Voir plus
Afficher les consommations énergétiques
Localisation et transport aux alentours
Favoris
Exporter
Appeler
Contacter
Signaler cette annonce
