Pourquoi opter pour un espace de coworking à Paris 8 ?
Le 8e arrondissement de Paris est au cœur du Quartier Central des Affaires (QCA). Il est l’un des principaux pôles financiers de la capitale, attirant les sociétés par une activité intense et une réputation largement établie en France comme à l’étranger. Incontournables, l’avenue des Champs-Élysées, l’Arc de Triomphe, le Grand Palais, la place de la Concorde et la place de la Madeleine sont parmi les lieux les plus connus de la ville. C’est aussi le territoire du prestigieux Triangle d’Or, recherché par les plus grandes entreprises du luxe. Paris 8 est donc un secteur parfait pour travailler en coworking et bénéficier d’un dynamisme économique évident. Avec la présence de la gare Saint-Lazare, facilitant les déplacements, il dispose de tous les atouts pour séduire les professionnels.
Dans quel quartier louer un espace de coworking à Paris 8 ?
Si vous recherchez une adresse renommée, pour domicilier votre entreprise par le biais d’un espace de coworking ou pour télétravailler, les avenues entre quais de Seine et Champs-Élysées sont idéales. Vous pouvez trouver un établissement le long du Cour Albert 1er ou de l’avenue Georges V, dans un élégant immeuble haussmannien. Les abords du Parc Monceau sont aussi appréciés des entreprises. La majeure partie de l’activité se concentre toutefois en plein centre de l’arrondissement, entre boulevard Haussmann, rue de la Boétie et rue du Faubourg Saint-Honoré, ainsi que sur les Champs-Élysées eux-mêmes.
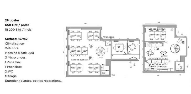
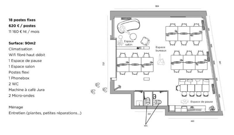
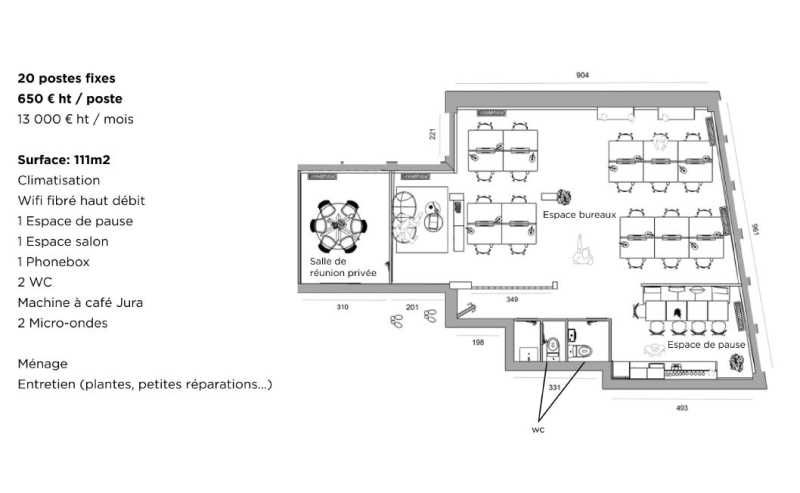
Tarif moyen d’un espace de coworking à Paris 8
Très réputé, Paris 8 affiche des tarifs locatifs élevés d’une manière générale, en matière d’immobilier d’entreprise et résidentiel. L’alternative du coworking propose une solution financièrement avantageuse, mais les économies ont néanmoins leurs limites, dès lors que vous envisagez de privatiser un bureau sur des périodes étendues. Ainsi, pour un poste de travail dans un espace fermé, comptez en moyenne 910 € HT/mois. Des offres inférieures à 700 € HT existent, mais se concentrent majoritairement aux abords de la gare Saint-Lazare. Pour travailler en open-space, sans poste attribué, prévoyez environ 520 € HT/mois avec, encore une fois, des disparités selon les quartiers.
|
Prix moyen valeur basse (HT / poste / mois) |
Prix moyen valeur haute (HT / m² / an) |
| Espace de coworking partagé (open-space) |
380 € |
550 € |
| Espace de coworking privé (bureau) |
800 € |
1100 € |
Avantages du coworking à Paris 8 VS la location de bureau
Des formules sur-mesure
La définition du coworking est de proposer à la location des espaces de travail partagés, permettant de réaliser des économies et de gagner en flexibilité. Le concept se positionne ainsi comme une alternative à la location de bureau à Paris, pouvant être trop coûteuse ou contraignante pour certains professionnels, tels que les indépendants ou les start-ups. L’usage des locaux à la carte, par le biais de formules fournissant des durées et des fréquences de visite modulables, est la solution la plus judicieuse pour limiter les frais locatifs à vos réels besoins.
Des services professionnels
Les espaces de coworking ont misé sur des prestations de qualité. Mettant à profitant la mutualisation des lieux et de leurs équipements, ils valorisent l’accès à des services professionnels performants, souvent plus haut de gamme et plus variés que ceux inclus dans une location traditionnelle en bail 3/6/9. Les établissements offrent habituellement le choix entre des postes de travail en open-space ou au sein de bureaux privés, plus calmes et confidentiels. Des salles de réunion peuvent être mises à disposition de manière ponctuelle, ainsi que du matériel informatique, bureautique ou audiovisuel.
Le 8e arrondissement de Paris est-il bien desservi par les transports en commun ?
Paris 8 bénéficie d’une excellente desserte, avec 8 lignes de métro, deux lignes RER et l’accès en gare Saint-Lazare à deux transiliens et plusieurs TER. Le pôle ferroviaire sert également de station aux lignes 3, 12, 13 et 14, assurant de multiples liaisons dans la capitale. L’arrondissement est aussi longé au nord par la 2 et traversé par la 1 et la 9, ainsi que par le RER A, marquant un arrêt à Charles De Gaulle – Etoile, tout comme la 6.
Les types de bureaux disponibles dans les coworkings de Paris 8 ?
Dans les espaces de coworking de Paris 8, plusieurs options s’offrent à vous. La solution la plus connue consiste en un poste de travail mis à disposition dans un open-space. De plus en plus d’établissements suggèrent désormais une autre proposition d’installation, par la location d’un bureau privé, pouvant accueillir une ou plusieurs personnes dans un environnement plus confidentiel. Le mobilier fourni diffère selon les centres. Du tabouret haut au siège ergonomique, le niveau de prestation est à étudier avant de prendre votre décision.
FAQ sur le coworking à Paris 8
Combien coûte un espace de coworking à Paris 8 ?
Les tarifs des espaces de coworking du 8e dépendent de leur localisation dans l’arrondissement, des prestations incluses et de la formule que vous choisissez, en matière de durée et de fréquence de visite.
Quels services sont inclus dans les espaces de coworking de Paris 8 ?
Selon les établissements, les prestations peuvent être très variées. Vous pouvez profiter de services de conciergerie professionnelle (domiciliation d’entreprise, gestion du courrier), d’horaires d’accès élargis, de lieux de restauration ou de vestiaires par exemple.
Quelles sont les offres de coworking de Paris 8 ?
Les offres de coworking du 8e suggère généralement deux types de lieux d’installation : en open-space ou en bureau indépendant. Certains gestionnaires peuvent également permettre la privatisation d’un poste de travail sur le plateau partagé.
Comment réserver un poste de travail dans un espace de coworking de Paris 8 ?
En passant par Geolocaux, vous pouvez prendre contact directement avec le centre de coworking du 8e de votre choix, par email ou par téléphone. Chaque annonce est dotée d’une fiche descriptive agrémentée d’un formulaire et des coordonnées des centres.
Quelles entreprises utilisent le coworking à Paris 8 ?
Les espaces de coworking du 8e sont employés par les entrepreneurs individuels, les start-ups, mais également par les entreprises plus importantes et les personnes travaillant en distanciel.