Evolis, votre partenaire en immobilier d’entreprise! Que vous soyez une entreprise, utilisateur de locaux professionnels, investisseur, ou propriétaire, Evolis met à votre service son expertise ...
En savoir plus

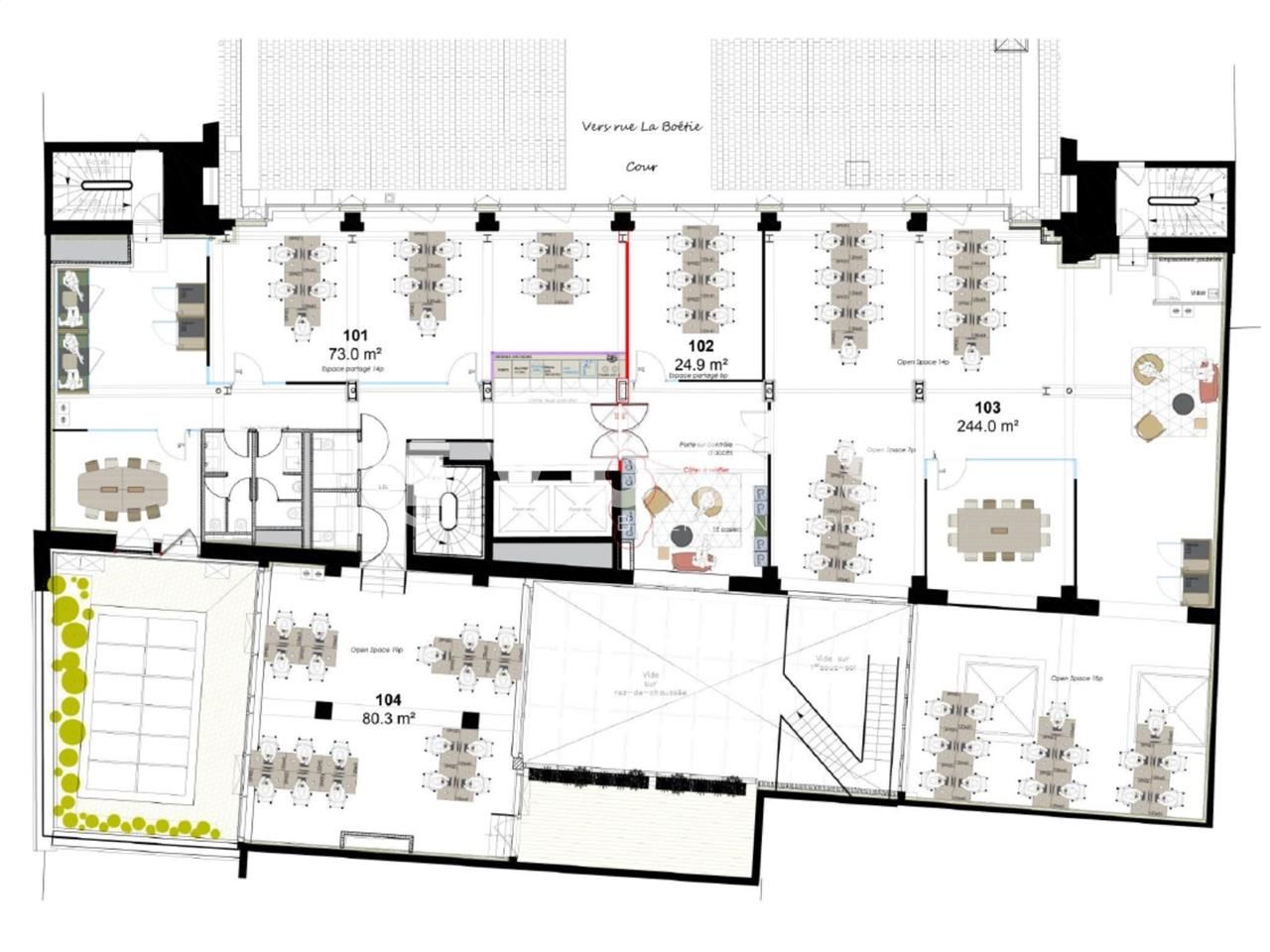
14 postes max
Loyer sur demande
Coworking - 14 postes max.
Paris 8 (75008)
Dernière mise à jour : Il y a 2 jours
À la recherche de bureaux à louer à Paris pour accueillir une équipe de 14 personnes ? Ne cherchez plus ! EVOLIS vous propose une opportunité exceptionnelle avec cet espace de travail idéalement situé.
Ces bureaux modernes et fonctionnels offrent un environnement de travail optimal pour votre entreprise. Profitez d'une localisation stratégique au coeur de la capitale, à proximité des transports en commun et des commodités. Ne manquez pas cette occasion unique de louer des bureaux spacieux et lumineux, parfaits pour accueillir votre équipe et favoriser son épanouissement professionnel. Contactez-nous dès maintenant pour plus d'informations et pour visiter ce bien d'exception !
Honoraires : 10% HT du montant du contrat HT à la charge du preneur
Information sur le Bail :
. Le loyer comprend les charges immeubles, les charges privatives, le mobilier, les équipements, la fiscalité, les consommables et les prestations communes
Prestations :
Accessibilité:
Bus La Boétie - Champs-Élysées (32, 73, N24, N11), Rond-Point des Champs-Élysées - Franklin D. Roosevelt (80, 93, N02), Saint-Philippe-du-Roule (28, 52)
Métro Saint-Philippe-du-Roule (9), Franklin D. Roosevelt (1)
Transilien Gare Saint-Lazare (TER)
Les informations sur les risques auxquels ce bien est exposé sont disponibles sur le site Géorisques : www.georisques.gouv.fr
Ces bureaux modernes et fonctionnels offrent un environnement de travail optimal pour votre entreprise. Profitez d'une localisation stratégique au coeur de la capitale, à proximité des transports en commun et des commodités. Ne manquez pas cette occasion unique de louer des bureaux spacieux et lumineux, parfaits pour accueillir votre équipe et favoriser son épanouissement professionnel. Contactez-nous dès maintenant pour plus d'informations et pour visiter ce bien d'exception !
| Étage | Type | Surfaces | Dispo | Loyer | Charges | Type de bailRév. annuelle |
|---|---|---|---|---|---|---|
| 1 | Coworking | 73 | Immédiate | 1400 poste/mois/ HT CC | Contrat de prestation de services |
Honoraires : 10% HT du montant du contrat HT à la charge du preneur
Information sur le Bail :
. Le loyer comprend les charges immeubles, les charges privatives, le mobilier, les équipements, la fiscalité, les consommables et les prestations communes
Prestations :
- Accueil
- Climatisation
- 22 salles de réunions
- Cuisine équipée
- Tisanerie
- Salle de sport
- Accueil barista
- Tisanerie
- Douches et vestiaires
- Bureaux réglables en hauteur
- Terrasses privatives à chaque étages
Accessibilité:
Bus La Boétie - Champs-Élysées (32, 73, N24, N11), Rond-Point des Champs-Élysées - Franklin D. Roosevelt (80, 93, N02), Saint-Philippe-du-Roule (28, 52)
Métro Saint-Philippe-du-Roule (9), Franklin D. Roosevelt (1)
Transilien Gare Saint-Lazare (TER)
Les informations sur les risques auxquels ce bien est exposé sont disponibles sur le site Géorisques : www.georisques.gouv.fr
Voir plus
Afficher les consommations énergétiques
Localisation et transport aux alentours
Favoris
Exporter
Appeler
Contacter
Signaler cette annonce










