Conseil en immobilier d'entreprise, Cushman & Wakefield est un acteur incontournable au rayonnement international. Cushman & Wakefield offre des solutions dans toutes les étapes que comporte un p ...
En savoir plus

Surface sur demande
Loyer sur demande
Coworking
Paris 8 (75008)
Dernière mise à jour : Il y a 2 jours
Cushman & Wakefield, vous propose une surface de bureaux à louer en plein coeur du 8ème arrondissement de Paris, à proximité immédiate de l'avenue George V et de l'avenue Montaigne.
L'immeuble se trouve à 5 minutes à pieds du Métro Franklin D Roosevelt ( L1 et L9 ) ou encore du George V (L1). Le secteur est prisé par les sociétés de conseils, banques privées, mode, cabinets d'avocats, fonds d'investissements, études notariales...
Dans un bel immeuble, vous bénéficiez de parties communes de qualité avec service d'hôtesse d'accueil.
Découvrez des espaces de bureaux flexibles avec des services de qualité. Les locaux sont traversants et climatisés.
De nombreux cafés et restaurants aux alentours seront propices aux déjeuners d'affaires.
Contactez-nous vite pour visiter.
Régime Fiscal : T.V.A.
Dépôt de garantie : 3 mois de loyer HT/HC
Honoraires : à la charge du preneur
Information sur le Bail :
Charges (fiscalité comprise) : 152 euros HT/m2/an Prestations de services : 55 euros HT/m2/an
Prestations :
Accessibilité:
Métro Charles de Gaulle Etoile (lignes 1-2-6)
Métro George V (ligne 1)
RER Charles de Gaulle Etoile (RER A)
Bus Ligne 73
velib 39 avenue George V
Les informations sur les risques auxquels ce bien est exposé sont disponibles sur le site Géorisques : www.georisques.gouv.fr
L'immeuble se trouve à 5 minutes à pieds du Métro Franklin D Roosevelt ( L1 et L9 ) ou encore du George V (L1). Le secteur est prisé par les sociétés de conseils, banques privées, mode, cabinets d'avocats, fonds d'investissements, études notariales...
Dans un bel immeuble, vous bénéficiez de parties communes de qualité avec service d'hôtesse d'accueil.
Découvrez des espaces de bureaux flexibles avec des services de qualité. Les locaux sont traversants et climatisés.
De nombreux cafés et restaurants aux alentours seront propices aux déjeuners d'affaires.
Contactez-nous vite pour visiter.
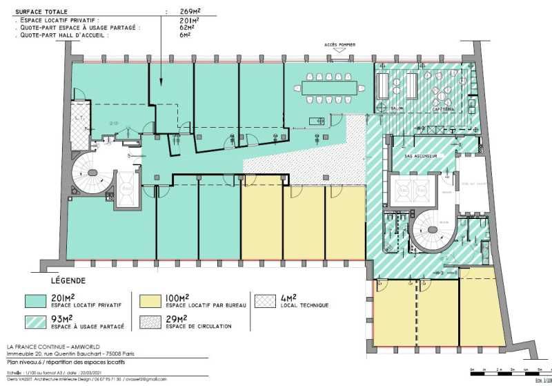
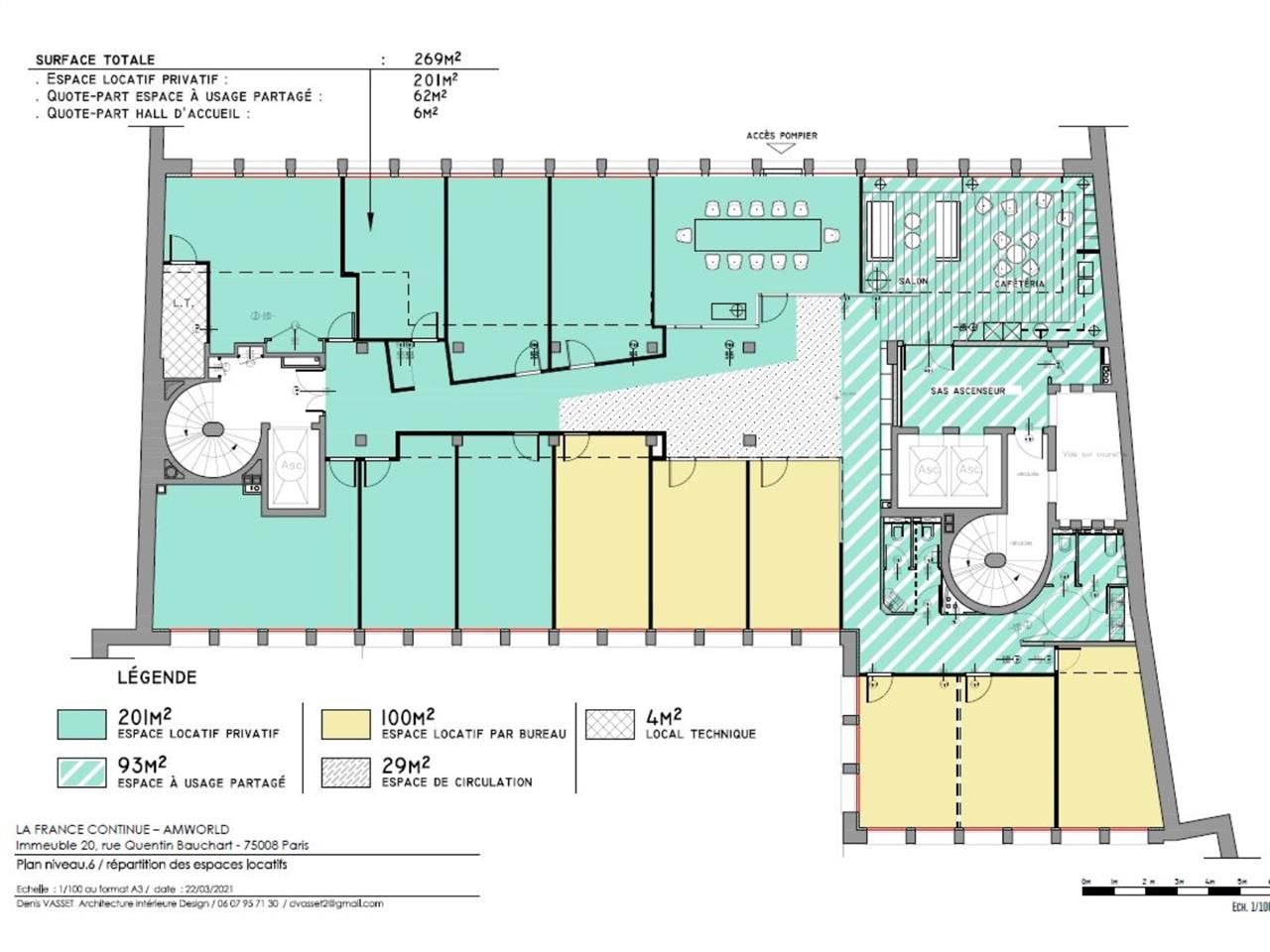
| Étage | Type | Surfaces | Dispo | Loyer | Charges | Type de bailRév. annuelle |
|---|---|---|---|---|---|---|
| 6 | Bureaux | 269 | 550 HT/HC/m²/an | Contrat de prestation de servicesSur l'indice ILAT | ||
| Parkings | 3000 HT/HC/place/an | Contrat de prestation de servicesSur l'indice ILAT |
Régime Fiscal : T.V.A.
Dépôt de garantie : 3 mois de loyer HT/HC
Honoraires : à la charge du preneur
Information sur le Bail :
Charges (fiscalité comprise) : 152 euros HT/m2/an Prestations de services : 55 euros HT/m2/an
Prestations :
- Immeuble moderne de très bon standing
- Parties communes de très bon standing
- Vaste hall d'accueil
- Accès PMR
- Contrôle d'accès
- Interphone
- Hôtesse d'accueil
- Duplex d'ascenseur
- Un monte charge
- Chauffage urbain CPCU
- Parking public
- Immeuble de standing
- Accès sécurisé
- Hôtesse d'accueil
- Surface moderne : faux plafond, moquette
- Espace cuisine partagé
- Bureaux en excellent état
- Belle luminosité
- Flexibilité d'aménagement
- Parties communes rénovées
- Climatisation réversible
- Terrasse accessible et partagée
Accessibilité:
Métro Charles de Gaulle Etoile (lignes 1-2-6)
Métro George V (ligne 1)
RER Charles de Gaulle Etoile (RER A)
Bus Ligne 73
velib 39 avenue George V
Les informations sur les risques auxquels ce bien est exposé sont disponibles sur le site Géorisques : www.georisques.gouv.fr
Voir plus
Afficher les consommations énergétiques
Localisation et transport aux alentours
- Georges V233m (3min à pied)1
Favoris
Exporter
Appeler
Contacter
Signaler cette annonce










