L’agence CBRE Lyon conseille et accompagne les chefs d’entreprise dans leurs projets immobiliers quels que soient leur taille et leur secteur d’activité. Spécialistes de la transaction de bureaux, ...
En savoir plus

1 251 m² divisible dès 133 m²
HT HC
Location bureau - 1251 m²
Lyon 3 (69003)
Dernière mise à jour : Il y a 6 mois
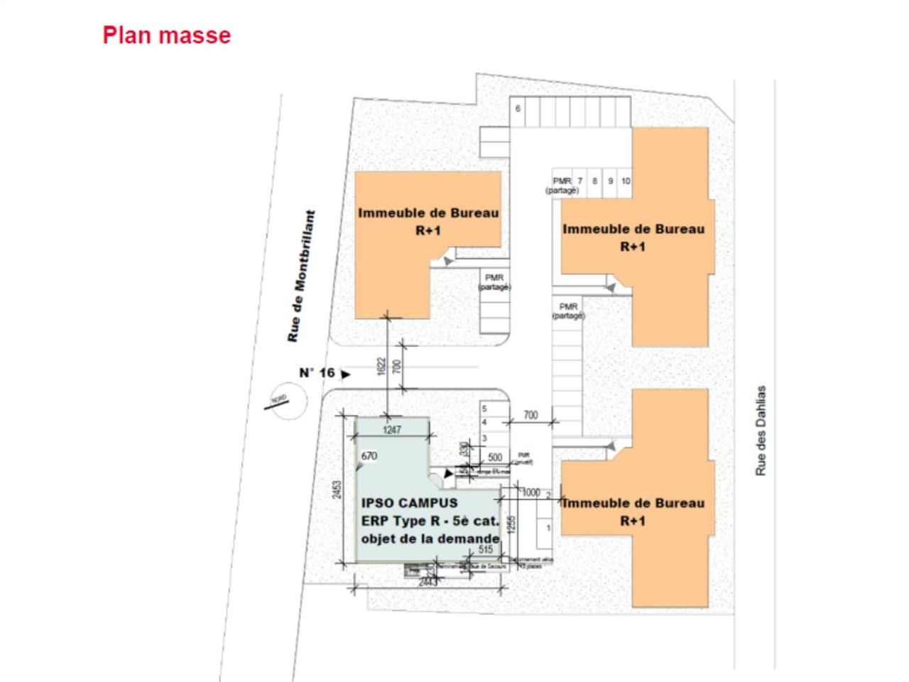
Au coeur du quartier Monplaisir, espace de bureaux idéal pour un Centre de formation ou école (ERP Type R 5eme catégorie)
Le secteur de Monplaisir est idéalement desservi par les transports en commun, notamment la ligne de Métro D, les lignes de Tram T2 et T4 et connecté à la Gare Part-Dieu. Ce quartier dynamique regroupe logements, de nombreux commerces, établissements d'enseignement supérieur ainsi que des immeubles de bureaux.
Impôt Foncier : 18300 €/an
Régime Fiscal : T.V.A.
Dépôt de garantie : 3 mois de loyer HT/HC
Paiement Loyer : trimestriel
Honoraires : 10% HT du loyer annuel HT/HC à la charge du preneur
Information sur le Bail :
Bail précaire jusqu'au 31 juillet 2025 Pas de TVA
Prestations :
Accessibilité:
Route Cours Albert Thomas, avenue Lacassagne
Metro Métro D arrêts « Sans Souci » et « Montplaisir Lumière »
Tramway Tram T3 « Dauphiné Lacassagne » et T4 « Manufacture Montluc »
Bus Bus C13,C16,C23 et C25, n° 25,69 et 296
SNCF Gare de la Part-Dieu à 10 min environ
. Stations Vélo'V
Les informations sur les risques auxquels ce bien est exposé sont disponibles sur le site Géorisques : www.georisques.gouv.fr
Le secteur de Monplaisir est idéalement desservi par les transports en commun, notamment la ligne de Métro D, les lignes de Tram T2 et T4 et connecté à la Gare Part-Dieu. Ce quartier dynamique regroupe logements, de nombreux commerces, établissements d'enseignement supérieur ainsi que des immeubles de bureaux.
| Étage | Type | Surfaces | Dispo | Loyer | Charges | Type de bailRév. annuelle |
|---|---|---|---|---|---|---|
| RDJ | Bureaux | 133 | Immédiate | 100 m²/an HC | 44 HT/m²/an | PrécaireIndice ILAT |
| 1 | Bureaux | 357 | Immédiate | 100 m²/an HC | 44 HT/m²/an | PrécaireIndice ILAT |
| 1 | Bureaux | 285 | Immédiate | 100 m²/an HC | 44 HT/m²/an | PrécaireIndice ILAT |
| 1 | Bureaux | 476 | Immédiate | 100 m²/an HC | 44 HT/m²/an | PrécaireIndice ILAT |
| SS | Parkings | Immédiate | PrécaireIndice ILAT | |||
| Parkings | Immédiate | PrécaireIndice ILAT |
Impôt Foncier : 18300 €/an
Régime Fiscal : T.V.A.
Dépôt de garantie : 3 mois de loyer HT/HC
Paiement Loyer : trimestriel
Honoraires : 10% HT du loyer annuel HT/HC à la charge du preneur
Information sur le Bail :
Bail précaire jusqu'au 31 juillet 2025 Pas de TVA
Prestations :
- Parc tertiaire avec 4 bâtiments indépendants.
- Bat T3 et T4 en état d'usage et destiné à des baux précaires
- Plateaux de bureaux cloisonnés, en état d'usage
- Bâtiment indépendant et rénové
- Espaces extérieurs permettant de faire des pauses et coin verdure pour déjeuner
- RDC
- Grande salle qui fait office d'espace repas pour les étudiants
- Accueil, bureaux, salle réunion, 1 salle de formation
- Un côté est dédié à des activités de formation avec 4 salles + un espace rangement
- Toilettes Hommes, femmes et PMR
- R+1
- 12 salles de formation
- Toilettes Hommes, femmes et PMR
- 5 parkings extérieurs dont 1 PMR et 7 parkings en sous sol
- A savoir que 2 bâtiments sont actuellement inoccupés laissant des places de stationnement libres
Accessibilité:
Route Cours Albert Thomas, avenue Lacassagne
Metro Métro D arrêts « Sans Souci » et « Montplaisir Lumière »
Tramway Tram T3 « Dauphiné Lacassagne » et T4 « Manufacture Montluc »
Bus Bus C13,C16,C23 et C25, n° 25,69 et 296
SNCF Gare de la Part-Dieu à 10 min environ
. Stations Vélo'V
Les informations sur les risques auxquels ce bien est exposé sont disponibles sur le site Géorisques : www.georisques.gouv.fr
7 Parkings int. 5 Parkings ext.
Voir plus
Afficher les consommations énergétiques
Favoris
Exporter
Appeler
Contacter
Signaler cette annonce
