L’agence CBRE Bordeaux conseille et accompagne les chefs d’entreprise dans leurs projets immobiliers quels que soient leur taille et leur secteur d’activité. Spécialistes de la transaction de burea ...
En savoir plus

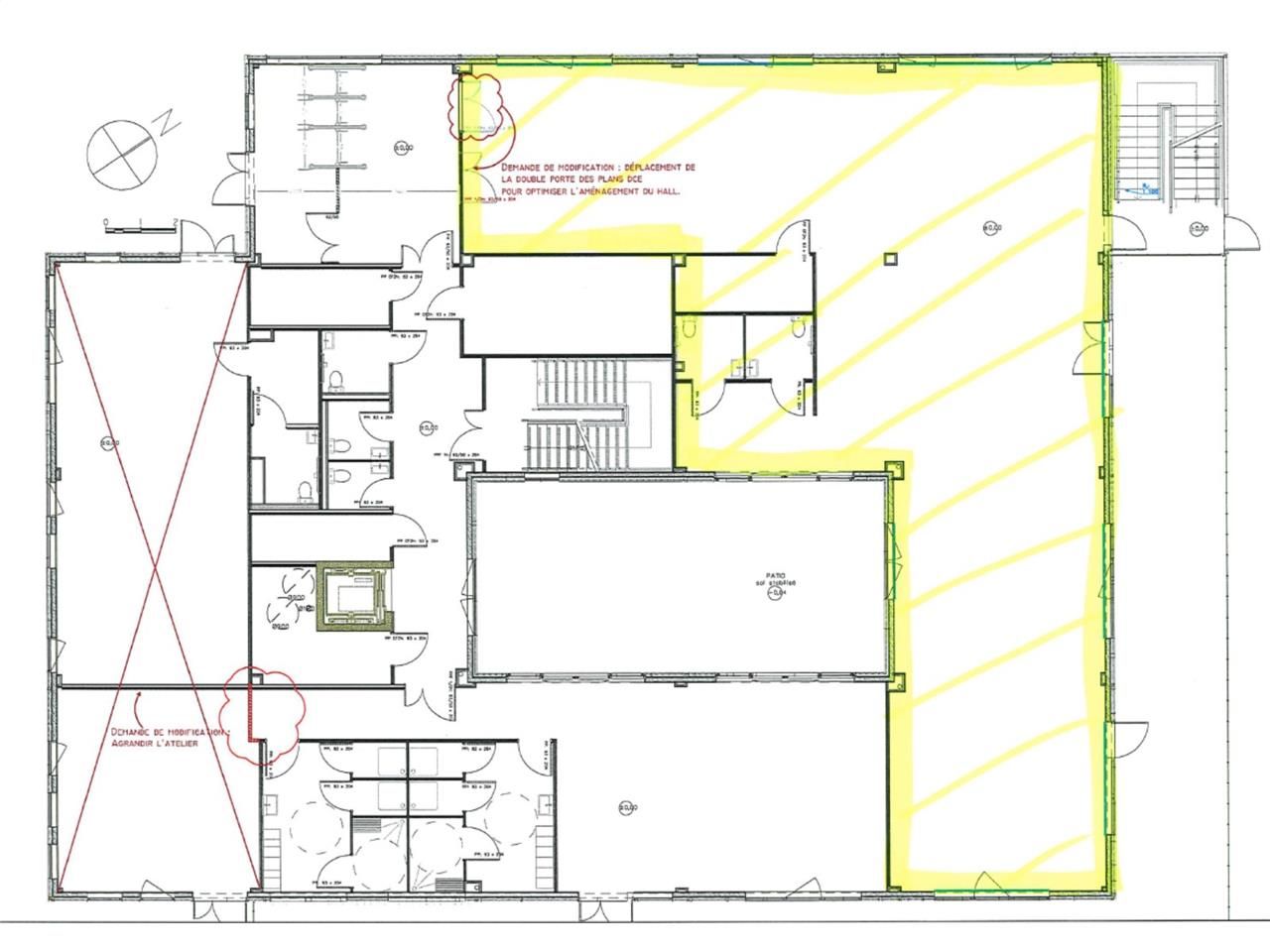
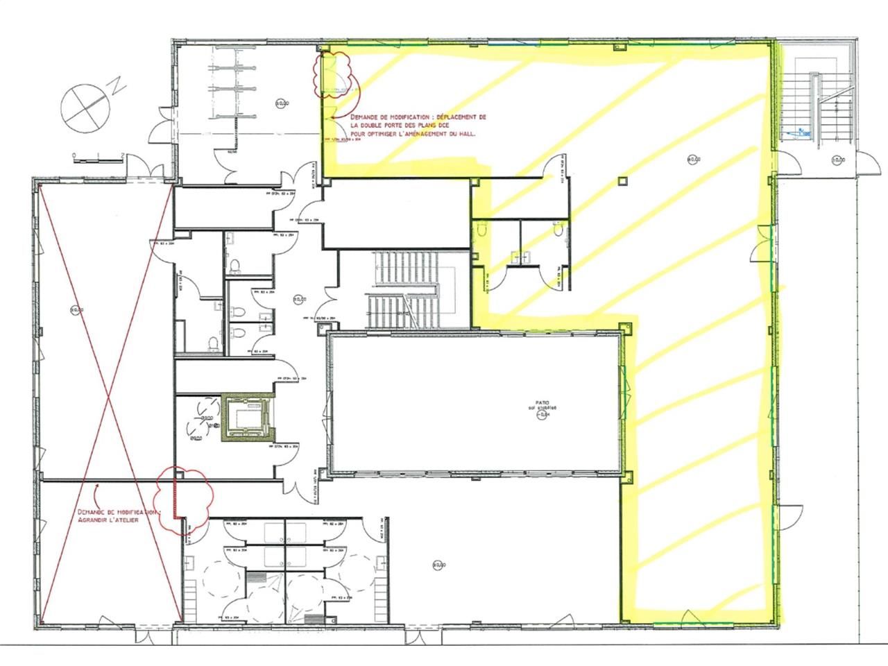
1 048 m² divisible dès 331 m²
HT HC
Location bureau - 1048 m²
Le Haillan (33185)
Dernière mise à jour : Il y a 2 mois
Dans un immeuble récent très bien placé au Haillan, à proximité du Tramway ligne A, nous vous proposons 1048 m² de bureaux divisibles, déjà cloisonné et aménagé. Les locaux sont en très bon état, lumineux et facilement aménageables. Un espace cafétéria et terrasse en roof top sont également accessibles.
Pour plus d'informations, n'hésitez pas à nous contacter au 05 33 06 27 84.
Régime Fiscal : T.V.A.
Dépôt de garantie : 3 mois de loyer HT/HC
Honoraires : 15% HT du loyer annuel HT HC à la charge du preneur.
Prestations :
Accessibilité:
Tramway Ligne A - Arrêt "Le Haillan Rostand"
Bus Lignes 30, 38, 71 & 84 - Arrêt "Le Haillan Rostand"
Route Rocade sortie n°9
Aeroport Bordeaux-Mérignac à 6km
Les informations sur les risques auxquels ce bien est exposé sont disponibles sur le site Géorisques : www.georisques.gouv.fr
Pour plus d'informations, n'hésitez pas à nous contacter au 05 33 06 27 84.
| Étage | Type | Surfaces | Dispo | Loyer | Charges | Type de bailRév. annuelle |
|---|---|---|---|---|---|---|
| RDC | Bureaux | 331 | 3 mois ap. acc. | 160 m²/an HT HC | 81,57 HT/m²/an | 3-6-9 ansIndice ILAT |
| 1 | Bureaux | 363 | 3 mois ap. acc. | 160 m²/an HT HC | 79,89 HT/m²/an | 3-6-9 ansIndice ILAT |
| 1 | Bureaux | 354 | 3 mois ap. acc. | 160 m²/an HT HC | 3-6-9 ansIndice ILAT |
Régime Fiscal : T.V.A.
Dépôt de garantie : 3 mois de loyer HT/HC
Honoraires : 15% HT du loyer annuel HT HC à la charge du preneur.
Prestations :
- Labélisation BREEAM
- Hall d'entrée
- Contrôle d'accès par badge
- Ascenseurs
- Escaliers
- Plateau cloisonné, aménagé et meublé
- Moquette
- Câblage RJ45
- Faux plafonds
- Climatisation réversible
- Terrasse et cuisine en rooftop
- PARKINGS
- Lot RDC: 10 places + 1 électrique (3 handicaps et 1 visiteur à partager avec les autres locataires)
- Lot 1er étage : 11 places + 1 électrique (3 handicaps et 1 visiteur à partager avec les autres locataires)
- 250 euros /unité /an HT
- Surface RDC : 331 m²
Accessibilité:
Tramway Ligne A - Arrêt "Le Haillan Rostand"
Bus Lignes 30, 38, 71 & 84 - Arrêt "Le Haillan Rostand"
Route Rocade sortie n°9
Aeroport Bordeaux-Mérignac à 6km
Les informations sur les risques auxquels ce bien est exposé sont disponibles sur le site Géorisques : www.georisques.gouv.fr
Voir plus
Afficher les consommations énergétiques
Favoris
Exporter
Appeler
Contacter
Signaler cette annonce










