L’agence CBRE Bordeaux conseille et accompagne les chefs d’entreprise dans leurs projets immobiliers quels que soient leur taille et leur secteur d’activité. Spécialistes de la transaction de burea ...
En savoir plus

5 355 m² divisible dès 1 747 m²
HT HC
Location bureau - 5355 m²
Le Haillan (33185)
Dernière mise à jour : Il y a 5 mois
Immeuble ARTEPARC
Le Haillan, à proximité de l'aéroport de Mérignac, au pied du tramway Ligne A et de la rocade Sortie 9, A LOUER Bureaux de dernière génération en cours de construction dans un programme composé de 2 bâtiments développant au total 8306 m². Les 2 bâtiments bénéficient d'une centrale photovoltaïque qui concoure à l'obtention des labels Effinergie et à réduire de façon significative les consommations d'énergie.
Pour plus d'informations, n'hésitez pas à nous contacter au 05 33 06 27 84.
Régime Fiscal : T.V.A.
Dépôt de garantie : 3 mois de loyer HT/HC
Honoraires : 15% HT du loyer annuel HT HC à la charge du preneur.
Prestations :
Accessibilité:
Tramway Ligne A - Arrêt "Le Haillan Rostand"
Bus Lignes 30, 38, 71 & 84 - Arrêt "Le Haillan Rostand"
Route Rocade sortie n°9
Aeroport Bordeaux Mérignac à 4,8km
Les informations sur les risques auxquels ce bien est exposé sont disponibles sur le site Géorisques : www.georisques.gouv.fr
Le Haillan, à proximité de l'aéroport de Mérignac, au pied du tramway Ligne A et de la rocade Sortie 9, A LOUER Bureaux de dernière génération en cours de construction dans un programme composé de 2 bâtiments développant au total 8306 m². Les 2 bâtiments bénéficient d'une centrale photovoltaïque qui concoure à l'obtention des labels Effinergie et à réduire de façon significative les consommations d'énergie.
Pour plus d'informations, n'hésitez pas à nous contacter au 05 33 06 27 84.
| Étage | Type | Surfaces | Dispo | Loyer | Charges | Type de bailRév. annuelle |
|---|---|---|---|---|---|---|
| RDC | Bureaux | 1746,58 | 12 mois ap. déb. trx | 150 m²/an HT HC | 22 HT/m²/an | 9 ans fermesIndice ILAT |
| 1 | Bureaux | 1827,14 | 12 mois ap. déb. trx | 150 m²/an HT HC | 22 HT/m²/an | 9 ans fermesIndice ILAT |
| 2 | Bureaux | 1781,04 | 12 mois ap. déb. trx | 150 m²/an HT HC | 22 HT/m²/an | 9 ans fermesIndice ILAT |
Régime Fiscal : T.V.A.
Dépôt de garantie : 3 mois de loyer HT/HC
Honoraires : 15% HT du loyer annuel HT HC à la charge du preneur.
Prestations :
- Labélisation HQE 9* BBC Effinergie 2017 E2C1
- Immeuble code du travail
- ERP envisageable
- Hauteur Libre 2,7 m
- Centrale photovoltaïque couvrant 30 à 40% des charges des parties communes
- Ascenseur
- Interphones et digicode
- Luminaires full LED encastrés
- Espaces verts aménagés et éclairés
- Large terrasse ou balcon à chaque étage
- Menuiseries extérieures en aluminium laqué à rupture de pont thermique
- Faux-plafond
- Climatisation et ventilation en faux-plafond
- Moquette en dalles 50x50 et/ou sol souple
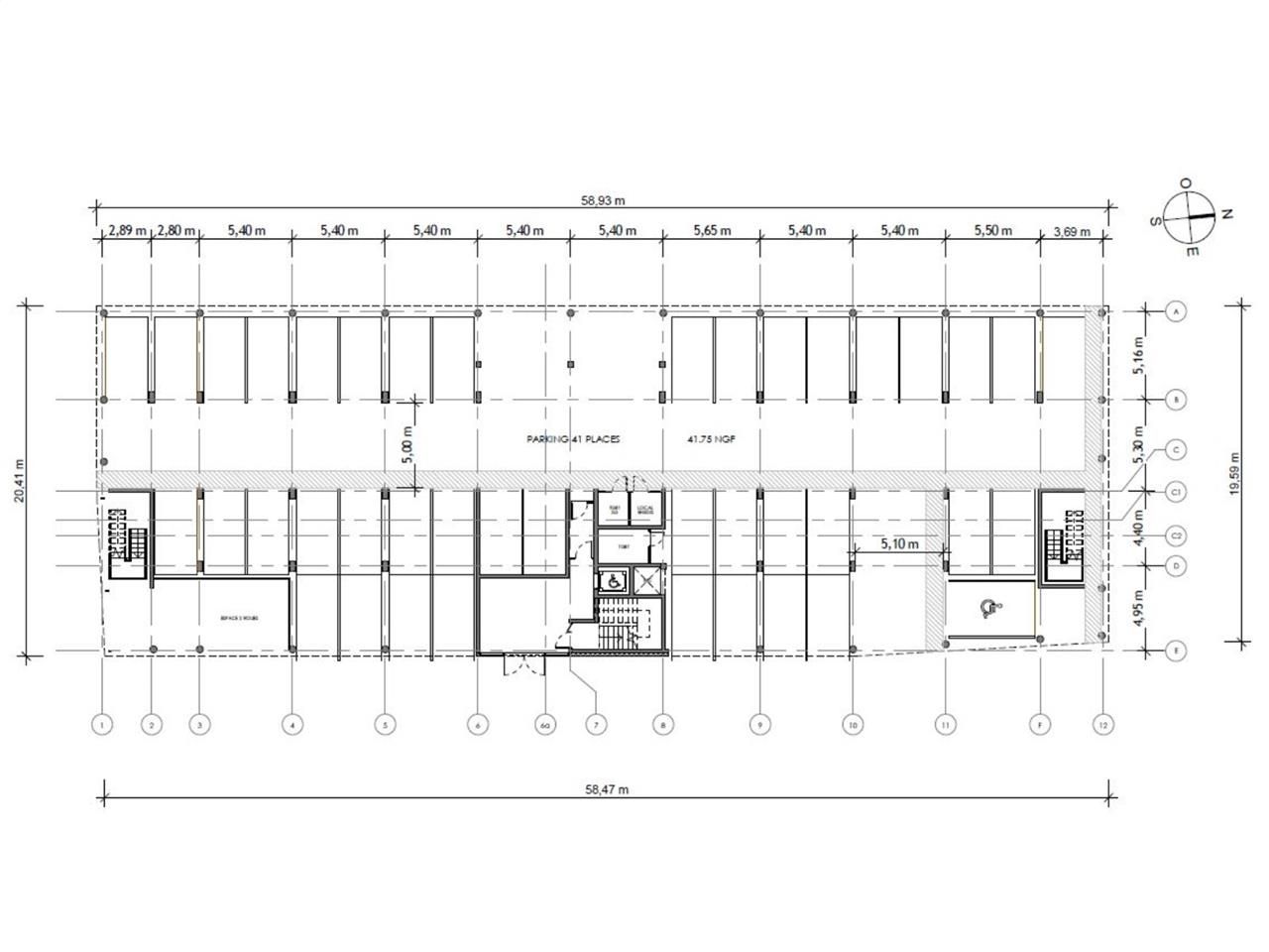
- Parkings Bâtiment BC : 94 emplacements couverts et 47 extérieurs
- Loyers parkings HT HC : 900 euros / parking couvert /an et 250 euros / parking extérieur /an
- Surface RDC : 1746,58 m²
Accessibilité:
Tramway Ligne A - Arrêt "Le Haillan Rostand"
Bus Lignes 30, 38, 71 & 84 - Arrêt "Le Haillan Rostand"
Route Rocade sortie n°9
Aeroport Bordeaux Mérignac à 4,8km
Les informations sur les risques auxquels ce bien est exposé sont disponibles sur le site Géorisques : www.georisques.gouv.fr
Voir plus
Afficher les consommations énergétiques
Localisation et transport aux alentours
Favoris
Exporter
Appeler
Contacter
Signaler cette annonce










