Créée en 2014, BIE - Bordeaux Immobilier Entreprises est composée d’une équipe de consultants confirmés dans le domaine de la location et la vente des différents types d’actifs immobiliers (Bureau ...
En savoir plus

1 378 m² divisible dès 211 m²
HT HC
ENORA PARK - Location bureau - 1378 m²
Pessac (33600)
Dernière mise à jour : Il y a 3 mois
Immeuble ENORA PARK
Au sein de l'ensemble tertiaire ENORA PARK situé à PESSAC BERSOL, en façade de l'avenue du Haut-Lévêque, le Bâtiment 1 propose des bureaux cloisonnés et divisibles
Prestations de qualité
Services de restauration sur le bâtiment et à proximité
Desserte directe par la ligne de bus Express 39
Impôt Foncier : 23 €/HT/m2/an
Régime Fiscal : T.V.A.
Dépôt de garantie : 3 mois de loyer HT/HC
Honoraires : 15 % HT du loyer annuel HT à la charge du Preneur
Prestations :
Accessibilité:
Tramway Ligne B - Hôpital Haut Lévêque
Bus Lignes 39-55-77
Sortie rocade Sortie 14
Autoroute A63
Les informations sur les risques auxquels ce bien est exposé sont disponibles sur le site Géorisques : www.georisques.gouv.fr
Au sein de l'ensemble tertiaire ENORA PARK situé à PESSAC BERSOL, en façade de l'avenue du Haut-Lévêque, le Bâtiment 1 propose des bureaux cloisonnés et divisibles
Prestations de qualité
Services de restauration sur le bâtiment et à proximité
Desserte directe par la ligne de bus Express 39
| Étage | Type | Surfaces | Dispo | Loyer | Charges | Type de bailRév. annuelle |
|---|---|---|---|---|---|---|
| 2 | Bureaux | 906 | 1er janvier 2026 | 135 HT/HC/m²/an | 31 m²/an HT | 3-6-9 ansILAT Indice des Loyers des Activités Tertiaires |
| 1 | Bureaux | 472 | 1er janvier 2026 | 135 HT/HC/m²/an | 31 m²/an HT | 3-6-9 ansILAT Indice des Loyers des Activités Tertiaires |
| Parkings | 1er janvier 2026 | 250 HT/HC/place/an | 3-6-9 ansILAT Indice des Loyers des Activités Tertiaires |
Impôt Foncier : 23 €/HT/m2/an
Régime Fiscal : T.V.A.
Dépôt de garantie : 3 mois de loyer HT/HC
Honoraires : 15 % HT du loyer annuel HT à la charge du Preneur
Prestations :
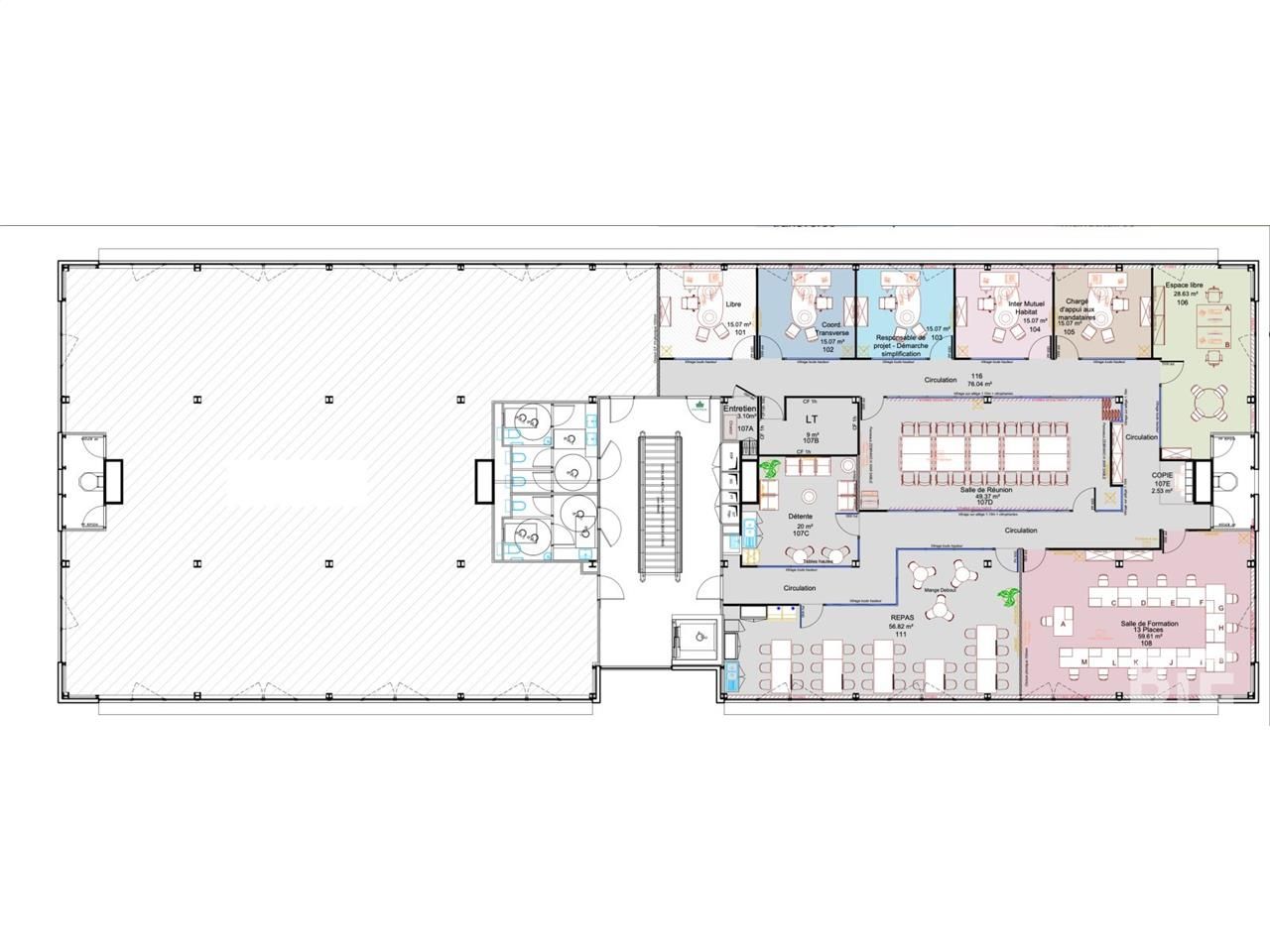
- Immeubles R+2 construits en 2013
- Immeubles structure métallique, châssis vitrés filants (fenêtres de 1,35m)
- La trame de 18m permet d'aménager les plateaux sur une double circulation
- Le 2ème étage divisible en 4 lots est aménagé en plusieurs open space avec des bureaux et salle de réunion en partie centrale et un espace détente
- Le 1er étage, divisible en 2 lots, est aménagé en bureaux individuels, une salle de formation de 60 m², une salle de réunion de 50 m² et un espace cafétéria
- Climatisation réversible en faux-plafonds type 2 tubes gainables, VMC simple flux
- Local informatique sécurisé et climatisé au 1er étage
- Sanitaires communes
- Ascenseur
- Contrôle d'accès (digicode)
Accessibilité:
Tramway Ligne B - Hôpital Haut Lévêque
Bus Lignes 39-55-77
Sortie rocade Sortie 14
Autoroute A63
Les informations sur les risques auxquels ce bien est exposé sont disponibles sur le site Géorisques : www.georisques.gouv.fr
Voir plus
Afficher les consommations énergétiques
Localisation et transport aux alentours
Favoris
Exporter
Appeler
Contacter
Signaler cette annonce
