L’agence CBRE Bordeaux conseille et accompagne les chefs d’entreprise dans leurs projets immobiliers quels que soient leur taille et leur secteur d’activité. Spécialistes de la transaction de burea ...
En savoir plus

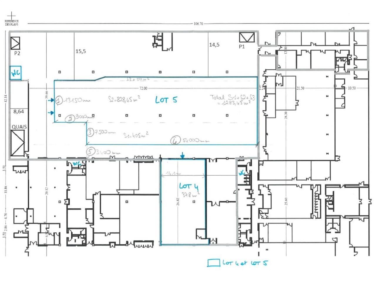
378 m²
HT HC
Location activité/entrepôt - 378 m²
Canéjan (33610)
Dernière mise à jour : Il y a 2 jours
CBRE Bordeaux vous propose un entrepôt a la location idéalement placé dans une zone de qualité sur la commune de CANEJAN (33610).
Ce bâtiment dispose d'un espace de stockage de 378m2. Vous disposerez de 2 quais et d'une porte sectionnelle mutualisés ; ce site est disponible immédiatement. Bail dérogatoire possible.
Pour plus de renseignements ou pour visiter, n'hésitez pas à me contacter :
Anaïs JUDAS - 07.63.74.33.75 - [email protected]
Impôt Foncier : 2268 €/an HT
Régime Fiscal : T.V.A.
Honoraires : 20% HT du loyer annuel HT HC à la charge du preneur.
Information sur le Bail :
Possibilité de bail dérogatoire Dépôt de garantie : 1 mois de loyer HT HC
Prestations :
Accessibilité:
Autoroute A63 sortie n°25
Les informations sur les risques auxquels ce bien est exposé sont disponibles sur le site Géorisques : www.georisques.gouv.fr
Ce bâtiment dispose d'un espace de stockage de 378m2. Vous disposerez de 2 quais et d'une porte sectionnelle mutualisés ; ce site est disponible immédiatement. Bail dérogatoire possible.
Pour plus de renseignements ou pour visiter, n'hésitez pas à me contacter :
Anaïs JUDAS - 07.63.74.33.75 - [email protected]
| Étage | Type | Surfaces | Dispo | Loyer | Charges | Type de bailRév. annuelle |
|---|---|---|---|---|---|---|
| Entrepôts | 378 | Immédiate | 50 m²/an HT HC | 8 HT/m²/an | 3-6-9 ansIndice ILAT |
Impôt Foncier : 2268 €/an HT
Régime Fiscal : T.V.A.
Honoraires : 20% HT du loyer annuel HT HC à la charge du preneur.
Information sur le Bail :
Possibilité de bail dérogatoire Dépôt de garantie : 1 mois de loyer HT HC
Prestations :
- 2 quais
- Portes sectionnelles petites et grandes largeurs
- Les quais et portes sectionnelles sont mutualisés
- Hauteur 6,5m max
- Dalle: 5t /m²
- Surface terrain : 0
Accessibilité:
Autoroute A63 sortie n°25
Les informations sur les risques auxquels ce bien est exposé sont disponibles sur le site Géorisques : www.georisques.gouv.fr
Voir plus
Afficher les consommations énergétiques
Favoris
Exporter
Appeler
Contacter
Signaler cette annonce
