Conseil en immobilier d'entreprise, Cushman & Wakefield est un acteur incontournable au rayonnement international. Cushman & Wakefield offre des solutions dans toutes les étapes que comporte un p ...
En savoir plus



221 m² divisible dès 110 m²
7EME ART - Bureau à vendre - 221 m²
Lyon 7 (69007)
Dernière mise à jour : Il y a 5 mois
VENTE - Local ERP entrées indépendantes - Saxe Gambetta
Immeuble 7EME ART
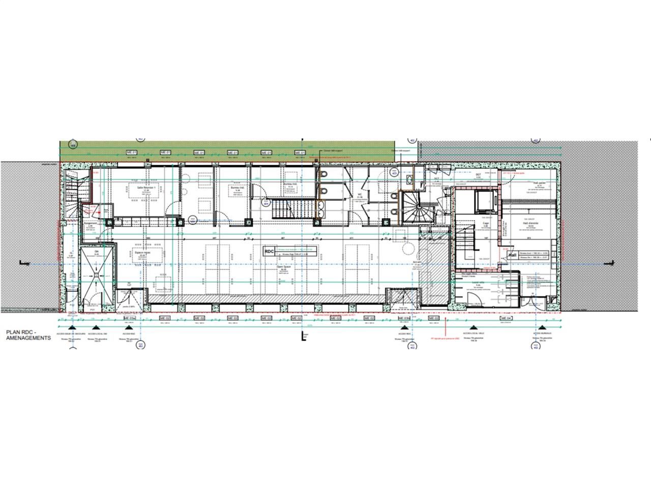
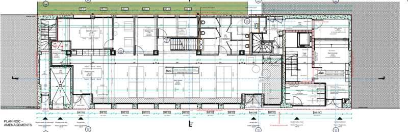
Cushman & Wakefield LYON vous propose à la vente un plateau de bureaux hybride unique de 202m² ou 336m² avec mezzanine m² en rez-de-chaussée avec mezzanine optionnelle , au sein du programme 7ème Art, un immeuble entièrement restructuré et surélevé situé dans le quartier dynamique de la Guillotière, à Lyon 7ème. 69007.
Ce lot bénéficie de deux entrées indépendantes et d'une configuration traversante avec une très belle hauteur sous plafond, offrant un fort potentiel d'aménagement.
Livré brut de béton, avec fluides en attente, ce local ERP pourra convenir aussi bien à un centre de formation, qu'un cabinet médical, qu'à une activité plus classique à la recherche d'un lieu unique.
Les travaux d'aménagement sont à la charge de l'acquéreur.
L'immeuble, en cours de rénovation complète sera livré au T1 2026.
Il bénéficie d'un emplacement stratégique à proximité immédiate du métro Saxe Gambetta et de toutes les commodités d'un quartier vivant et central.
Une opportunité rare pour s'implanter durablement dans un environnement attractif.
Honoraires : 2.5 % HT du prix de vente HD à la charge de l'acquéreur
Prestations :
Accessibilité:
Métro Saxe Gambetta (Métro D & B)
Tram Saint-André (tram ligne T1)
Bus Lignes C4, C7, C9 , C11, C12, C14
Les informations sur les risques auxquels ce bien est exposé sont disponibles sur le site Géorisques : www.georisques.gouv.fr
Immeuble 7EME ART
Cushman & Wakefield LYON vous propose à la vente un plateau de bureaux hybride unique de 202m² ou 336m² avec mezzanine m² en rez-de-chaussée avec mezzanine optionnelle , au sein du programme 7ème Art, un immeuble entièrement restructuré et surélevé situé dans le quartier dynamique de la Guillotière, à Lyon 7ème. 69007.
Ce lot bénéficie de deux entrées indépendantes et d'une configuration traversante avec une très belle hauteur sous plafond, offrant un fort potentiel d'aménagement.
Livré brut de béton, avec fluides en attente, ce local ERP pourra convenir aussi bien à un centre de formation, qu'un cabinet médical, qu'à une activité plus classique à la recherche d'un lieu unique.
Les travaux d'aménagement sont à la charge de l'acquéreur.
L'immeuble, en cours de rénovation complète sera livré au T1 2026.
Il bénéficie d'un emplacement stratégique à proximité immédiate du métro Saxe Gambetta et de toutes les commodités d'un quartier vivant et central.
Une opportunité rare pour s'implanter durablement dans un environnement attractif.
| Étage | Type | Surfaces | Dispo | Prix(m²) | Charges | Honoraires | Fiscal |
|---|---|---|---|---|---|---|---|
| RdC | Bureaux | 110,32 | 3700 /m² HD.HT | 15,25 | 2.5 % HT du prix de vente HD à la charge de l'acquéreur | ||
| RdC | Bureaux | 110,32 | 3700 /m² HD.HT | 15,25 | 2.5 % HT du prix de vente HD à la charge de l'acquéreur | ||
| Sous-Sol | Parkings | 25000 /place HD.HT | n.c. | 2.5 % HT du prix de vente HD à la charge de l'acquéreur | |||
| Sous-Sol | Parkings | 30000 /place HD.HT | n.c. | 2.5 % HT du prix de vente HD à la charge de l'acquéreur |
Honoraires : 2.5 % HT du prix de vente HD à la charge de l'acquéreur
Prestations :
- Restructuration de l'immeuble et surélévation de bureaux
- ERP au RDC
- PMR/ascenseur
- Contrôle d'accès
- Fibre optique
- Ratio parking : 1/75 m²
- Accès à un parc public au pied de l'immeuble
- Dans un quartier dynamique et à proximité de toutes commodités
- Contrôle d'accès avec lecteur badge
- Portes métalliques pleines
- Garde-corps et mains-courantes d'escaliers
- Escalier métalliques avec marches en habillage bois
- Accroches vélos
- Grilles de ventilation
- Cloisons amovibles pleines ou vitrées suivant plans
- Carrelage du Hall, des WC et local poubelle
- Ascenseur : charge 400 Kgs du RDC à l'attique.
- RDC livré brut de béton, fluides en attente
- Surface RDC : 220,63 m²
Accessibilité:
Métro Saxe Gambetta (Métro D & B)
Tram Saint-André (tram ligne T1)
Bus Lignes C4, C7, C9 , C11, C12, C14
Les informations sur les risques auxquels ce bien est exposé sont disponibles sur le site Géorisques : www.georisques.gouv.fr
Parking(s) en sous-sol Parking(s) doubles.
Voir plus
Afficher les consommations énergétiques
Localisation et transport aux alentours
- Saint-Andre327m (5min à pied)1
- Guillotière340m (5min à pied)D1
- Saxe - Gambetta356m (5min à pied)BD
Favoris
Exporter
Appeler
Contacter
Signaler cette annonce










