Conseil en immobilier d'entreprise, Cushman & Wakefield est un acteur incontournable au rayonnement international. Cushman & Wakefield offre des solutions dans toutes les étapes que comporte un p ...
En savoir plus



1 144 m² divisible dès 283 m²
7EME ART - Bureau à vendre - 1144 m²
Lyon 7 (69007)
Dernière mise à jour : Il y a 3 mois
Bureaux à vendre divisibles - Saxe Gambetta
Immeuble 7EME ART
u coeur du 7e arrondissement de Lyon, dans un quartier vivant et parfaitement desservi, découvrez une opportunité rare d'acquisition de bureaux neufs au sein du projet « 7e Art ». Situé à proximité immédiate de la station Saxe-Gambetta (métros B et D), du tramway T1 (arrêt Saint-André) ainsi que de nombreuses lignes de bus, cet ensemble immobilier bénéficie d'un emplacement stratégique offrant à la fois centralité, accessibilité et dynamisme urbain.
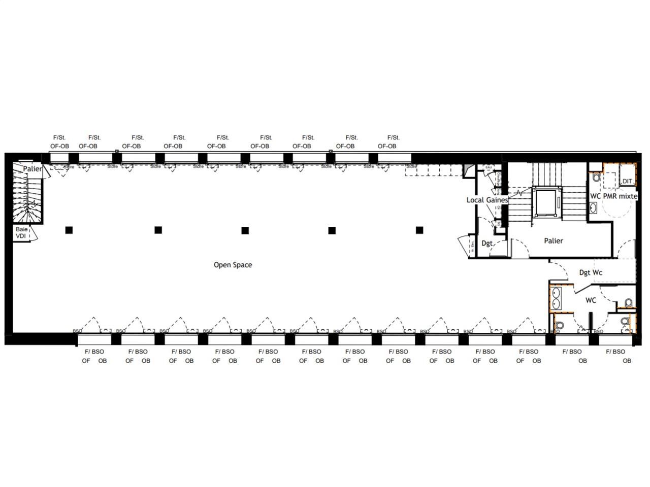
Développé dans le cadre d'une restructuration complète avec surélévation, l'immeuble propose une surface totale de 1 639 m² de bureaux à vendre, divisibles à partir de 283 m². Chaque plateau bénéficie de prestations soignées et modernes : climatisation réversible indépendante par niveau, accès sécurisé avec contrôle par badge, menuiseries aluminium, éclairage LED, fibre optique, cloisons amovibles selon plans, sanitaires privatifs et finitions de qualité. Le dernier étage offre un atout unique avec une terrasse privative de plus de 100 m², idéale pour créer un espace détente ou de réception avec vue dégagée.
L'ensemble est accessible aux personnes à mobilité réduite, avec ascenseur desservant tous les niveaux, y compris l'attique. Le rez-de-chaussée, doté d'un accès indépendant, est livré brut, avec fluides en attente, permettant une personnalisation complète selon les besoins de votre activité. Le site offre également un bon ratio de stationnement, avec 15 places de parking privatives en sous-sol.
Des extérieurs sont envisageables : Vérandas ou jardins d'hiver.
Le prix de vente démarre à partir de 3 700 euros/m² HT HD pour le rez-de-chaussée et atteint 5 350 euros/m² HT HD pour les niveaux supérieurs avec terrasse. Les charges, maîtrisées, comprennent notamment l'entretien des parties communes, le nettoyage, l'ascenseur, les fluides et le syndic. Honoraires de commercialisation à la charge de l'acquéreur à hauteur de 2,5 % HT du prix de vente HT HD.
Une adresse idéale pour installer durablement votre activité, entre centralité, confort moderne et qualité architecturale.
Honoraires : 2.5 % HT du prix de vente HD à la charge de l'acquéreur
Prestations :
Accessibilité:
Métro Saxe Gambetta (Métro D & B)
Tram Saint-André (tram ligne T1)
Bus Lignes C4, C7, C9 , C11, C12, C14
Les informations sur les risques auxquels ce bien est exposé sont disponibles sur le site Géorisques : www.georisques.gouv.fr
Immeuble 7EME ART
u coeur du 7e arrondissement de Lyon, dans un quartier vivant et parfaitement desservi, découvrez une opportunité rare d'acquisition de bureaux neufs au sein du projet « 7e Art ». Situé à proximité immédiate de la station Saxe-Gambetta (métros B et D), du tramway T1 (arrêt Saint-André) ainsi que de nombreuses lignes de bus, cet ensemble immobilier bénéficie d'un emplacement stratégique offrant à la fois centralité, accessibilité et dynamisme urbain.
Développé dans le cadre d'une restructuration complète avec surélévation, l'immeuble propose une surface totale de 1 639 m² de bureaux à vendre, divisibles à partir de 283 m². Chaque plateau bénéficie de prestations soignées et modernes : climatisation réversible indépendante par niveau, accès sécurisé avec contrôle par badge, menuiseries aluminium, éclairage LED, fibre optique, cloisons amovibles selon plans, sanitaires privatifs et finitions de qualité. Le dernier étage offre un atout unique avec une terrasse privative de plus de 100 m², idéale pour créer un espace détente ou de réception avec vue dégagée.
L'ensemble est accessible aux personnes à mobilité réduite, avec ascenseur desservant tous les niveaux, y compris l'attique. Le rez-de-chaussée, doté d'un accès indépendant, est livré brut, avec fluides en attente, permettant une personnalisation complète selon les besoins de votre activité. Le site offre également un bon ratio de stationnement, avec 15 places de parking privatives en sous-sol.
Des extérieurs sont envisageables : Vérandas ou jardins d'hiver.
Le prix de vente démarre à partir de 3 700 euros/m² HT HD pour le rez-de-chaussée et atteint 5 350 euros/m² HT HD pour les niveaux supérieurs avec terrasse. Les charges, maîtrisées, comprennent notamment l'entretien des parties communes, le nettoyage, l'ascenseur, les fluides et le syndic. Honoraires de commercialisation à la charge de l'acquéreur à hauteur de 2,5 % HT du prix de vente HT HD.
Une adresse idéale pour installer durablement votre activité, entre centralité, confort moderne et qualité architecturale.
| Étage | Type | Surfaces | Dispo | Prix(m²) | Charges | Honoraires | Fiscal |
|---|---|---|---|---|---|---|---|
| R+4 | Bureaux | 293,4 | 4950 /m² HD.HT | 15,25 | 2.5 % HT du prix de vente HD à la charge de l'acquéreur | ||
| R+3 | Bureaux | 283,39 | 4950 /m² HD.HT | 15,25 | 2.5 % HT du prix de vente HD à la charge de l'acquéreur | ||
| R+2 | Bureaux | 283,39 | 4950 /m² HD.HT | 15,25 | 2.5 % HT du prix de vente HD à la charge de l'acquéreur | ||
| R+1 | Bureaux | 283,39 | 4950 /m² HD.HT | 15,25 | 2.5 % HT du prix de vente HD à la charge de l'acquéreur | ||
| Sous-Sol | Parkings | n.c. | n.c. | 2.5 % HT du prix de vente HD à la charge de l'acquéreur | |||
| Sous-Sol | Parkings | n.c. | n.c. | 2.5 % HT du prix de vente HD à la charge de l'acquéreur |
Honoraires : 2.5 % HT du prix de vente HD à la charge de l'acquéreur
Prestations :
- Restructuration de l'immeuble et surélévation de bureaux
- ERP au RDC
- PMR/ascenseur
- Contrôle d'accès
- Fibre optique
- Ratio parking : 1/75 m²
- Accès à un parc public au pied de l'immeuble
- Dans un quartier dynamique et à proximité de toutes commodités
- Contrôle d'accès avec lecteur badge
- Portes métalliques pleines
- Garde-corps et mains-courantes d'escaliers
- Escalier métalliques avec marches en habillage bois
- Accroches vélos
- Grilles de ventilation
- Cloisons amovibles pleines ou vitrées suivant plans
- Carrelage du Hall, des WC et local poubelle
- Ascenseur : charge 400 Kgs du RDC à l'attique.
- Locaux neufs/plateau nu
- Sanitaires privatifs
- Terrasse au R+5
- Climatisation réversible (indépendant par plateau)
- RDC livré brut de béton, fluides en attente
- Accès indépendant pour le RDC
- R+4 et R+5 indivisibles
- LED
- Plinthes périphériques
- Menuiseries en aluminium
- Brises soleil côté sud
- Surface RDC : 200 m²
Accessibilité:
Métro Saxe Gambetta (Métro D & B)
Tram Saint-André (tram ligne T1)
Bus Lignes C4, C7, C9 , C11, C12, C14
Les informations sur les risques auxquels ce bien est exposé sont disponibles sur le site Géorisques : www.georisques.gouv.fr
7 Parking(s) en sous-sol 8 Parking(s) doubles.
Voir plus
Afficher les consommations énergétiques
Localisation et transport aux alentours
- Saint-Andre327m (5min à pied)1
- Guillotière340m (5min à pied)D1
- Saxe - Gambetta356m (5min à pied)BD
Favoris
Exporter
Appeler
Contacter
Signaler cette annonce










