L’agence CBRE Lyon conseille et accompagne les chefs d’entreprise dans leurs projets immobiliers quels que soient leur taille et leur secteur d’activité. Spécialistes de la transaction de bureaux, ...
En savoir plus

3 239 m² divisible dès 118 m²
Bureau à vendre - 3239 m²
Lyon 6 (69006)
Dernière mise à jour : Il y a 10 mois
A proximité du quartier d'affaires de la Part-Dieu et des Brotteaux, immeuble de bureaux à construire proposés à la location ou à la vente.
Le secteur de Lyon Part-Dieu est l'une des plus importantes zones d'affaires de l'agglomération lyonnaise et la seconde en France, avec ses 2 200 établissements implantés et ses 55 000 emplois. L'implantation de nombreux sièges sociaux nationaux et internationaux positionne le quartier comme site majeur de décisions stratégiques. Le secteur bénéficie d'une desserte idéale grâce à son pôle multimodal. De plus le quartier s'inscrit dans une démarche de rénovation urbaine de par la restructuration de sa gare et son centre commercial.
Régime Fiscal : T.V.A.
Dépôt de garantie : 3 mois de loyer HT/HC
Paiement Loyer : trimestriel
Honoraires : 2% HT du prix de vente HT/HD à la charge de l'acquéreur
Information sur le Bail :
Charges incluant charges d'exploitation, charges d'ASL, prime d'assurance
Prestations :
Accessibilité:
SNCF 4 Connexions Gare TGV TER Part Dieu à 10 min à pied environ
Bus Lignes de Bus : C16 ou 27, arrêt « Bellecombe Gaité »
Metro Métro ligne B, station Brotteaux Ou Métro lignes A et B, station Charpennes (1 arrêt du tram)
Tramway Tramway lignes T1 T4, arrêt « Collège Bellecombe » à proximité immédiate
Station(s) Vélo'V à proximité
Aeroport Aéroport Lyon Saint Exupéry à 30 min. environ via le Rhon'Express (départ Part Dieu)
Autoroute Périphérique Nord de Lyon, porte Saint Clair à 15 minutes
Autoroute Accès autoroute A7/A6
Les informations sur les risques auxquels ce bien est exposé sont disponibles sur le site Géorisques : www.georisques.gouv.fr
Le secteur de Lyon Part-Dieu est l'une des plus importantes zones d'affaires de l'agglomération lyonnaise et la seconde en France, avec ses 2 200 établissements implantés et ses 55 000 emplois. L'implantation de nombreux sièges sociaux nationaux et internationaux positionne le quartier comme site majeur de décisions stratégiques. Le secteur bénéficie d'une desserte idéale grâce à son pôle multimodal. De plus le quartier s'inscrit dans une démarche de rénovation urbaine de par la restructuration de sa gare et son centre commercial.
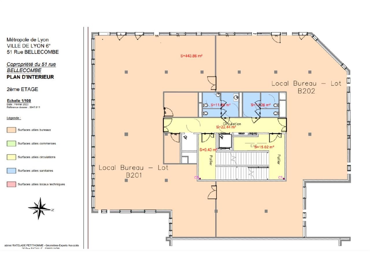
| Étage | Type | Surfaces | Dispo | Prix(m²) | Charges | Honoraires | Fiscal |
|---|---|---|---|---|---|---|---|
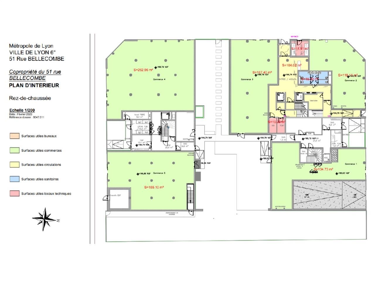
| RDC | Locaux Commerciaux | 167 | 24 mois ap. déb. trx | 4817 m² HT/HD | n.c. | 2% HT du prix de vente HT/HD à la charge de l'acquéreur | T.V.A. |
| RDC | Locaux Commerciaux | 118 | 24 mois ap. déb. trx | 4817 m² HT/HD | n.c. | 2% HT du prix de vente HT/HD à la charge de l'acquéreur | T.V.A. |
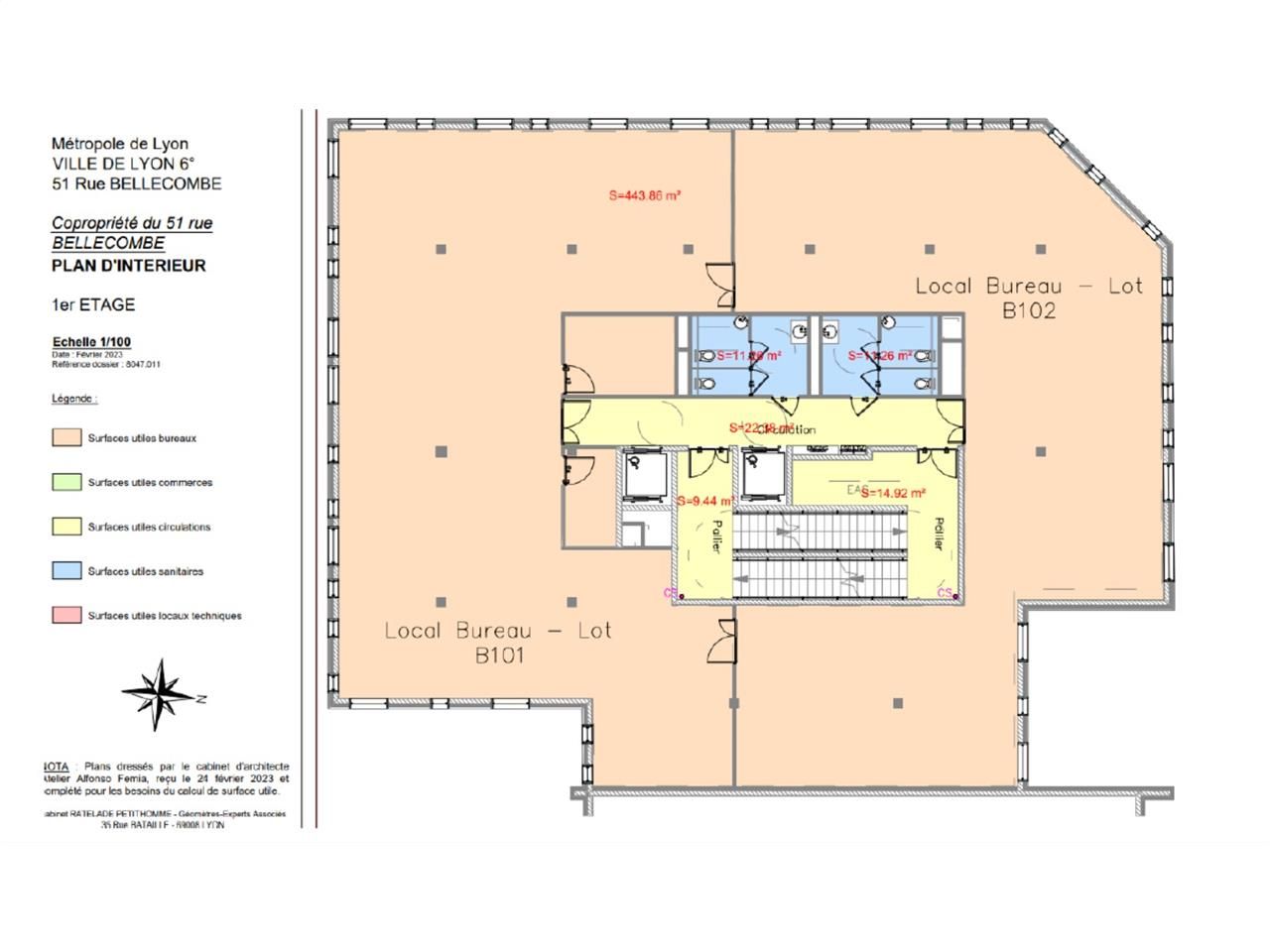
| 1 | Bureaux | 563,5 | 24 mois ap. déb. trx | 6264 m² HT/HD | n.c. | 2% HT du prix de vente HT/HD à la charge de l'acquéreur | T.V.A. |
| 2 | Bureaux | 563,5 | 24 mois ap. déb. trx | 6264 m² HT/HD | n.c. | 2% HT du prix de vente HT/HD à la charge de l'acquéreur | T.V.A. |
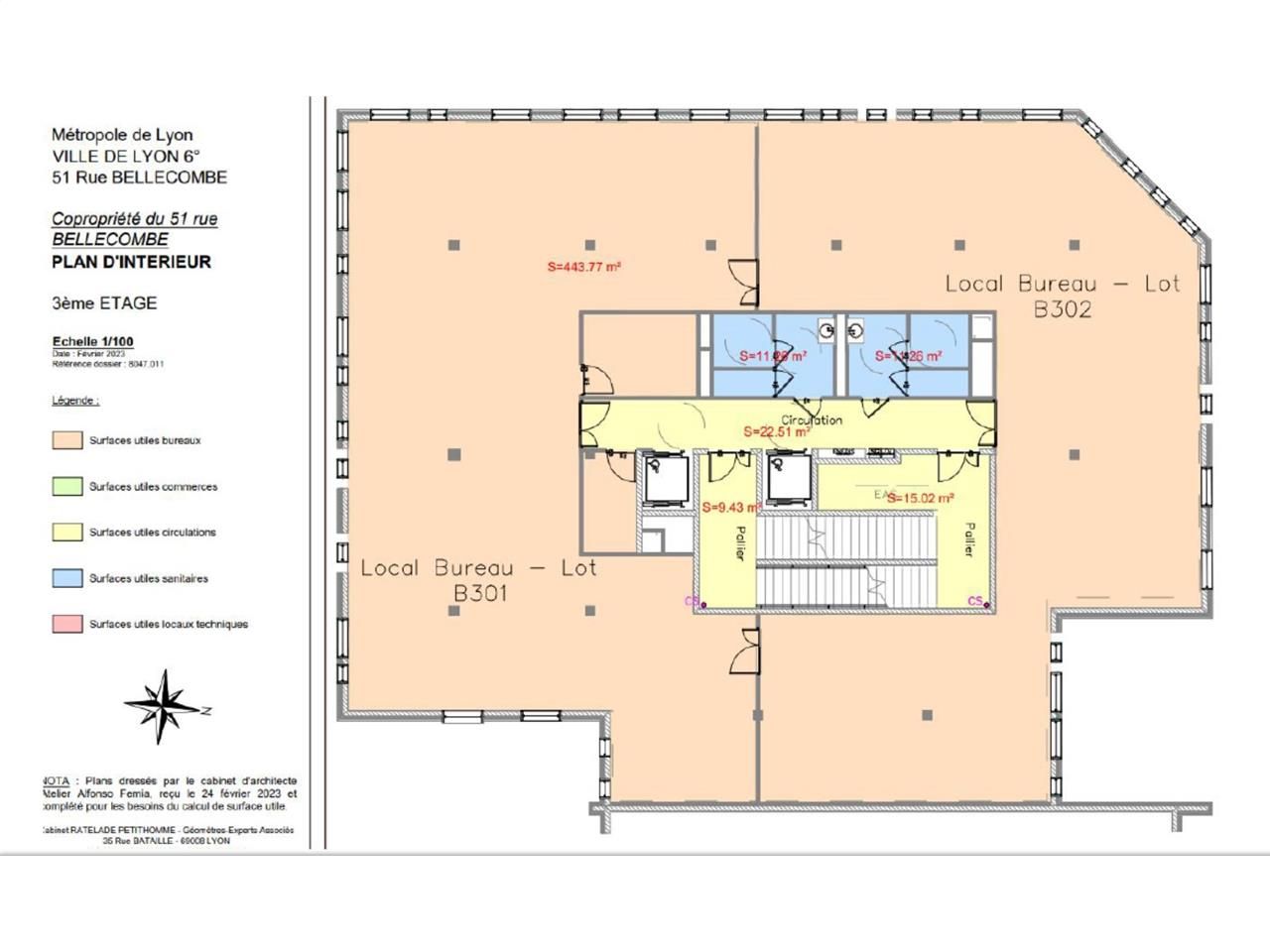
| 3 | Bureaux | 563,5 | 24 mois ap. déb. trx | 6264 m² HT/HD | n.c. | 2% HT du prix de vente HT/HD à la charge de l'acquéreur | T.V.A. |
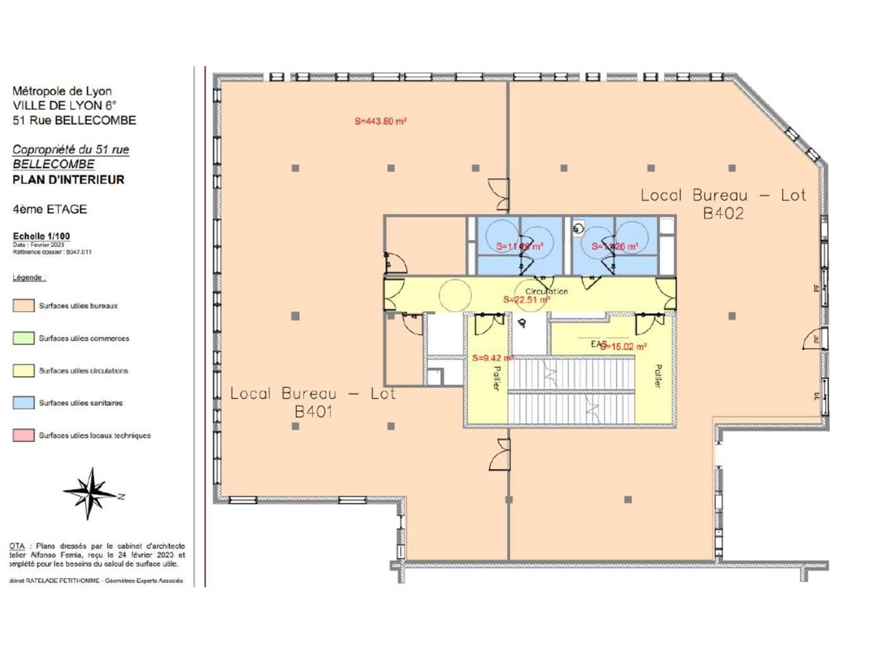
| 4 | Bureaux | 563,5 | 24 mois ap. déb. trx | 6264 m² HT/HD | n.c. | 2% HT du prix de vente HT/HD à la charge de l'acquéreur | T.V.A. |
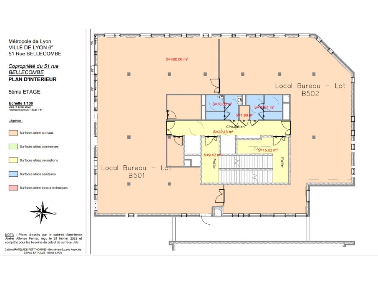
| 5 | Bureaux | 510 | 24 mois ap. déb. trx | 6264 m² HT/HD | n.c. | 2% HT du prix de vente HT/HD à la charge de l'acquéreur | T.V.A. |
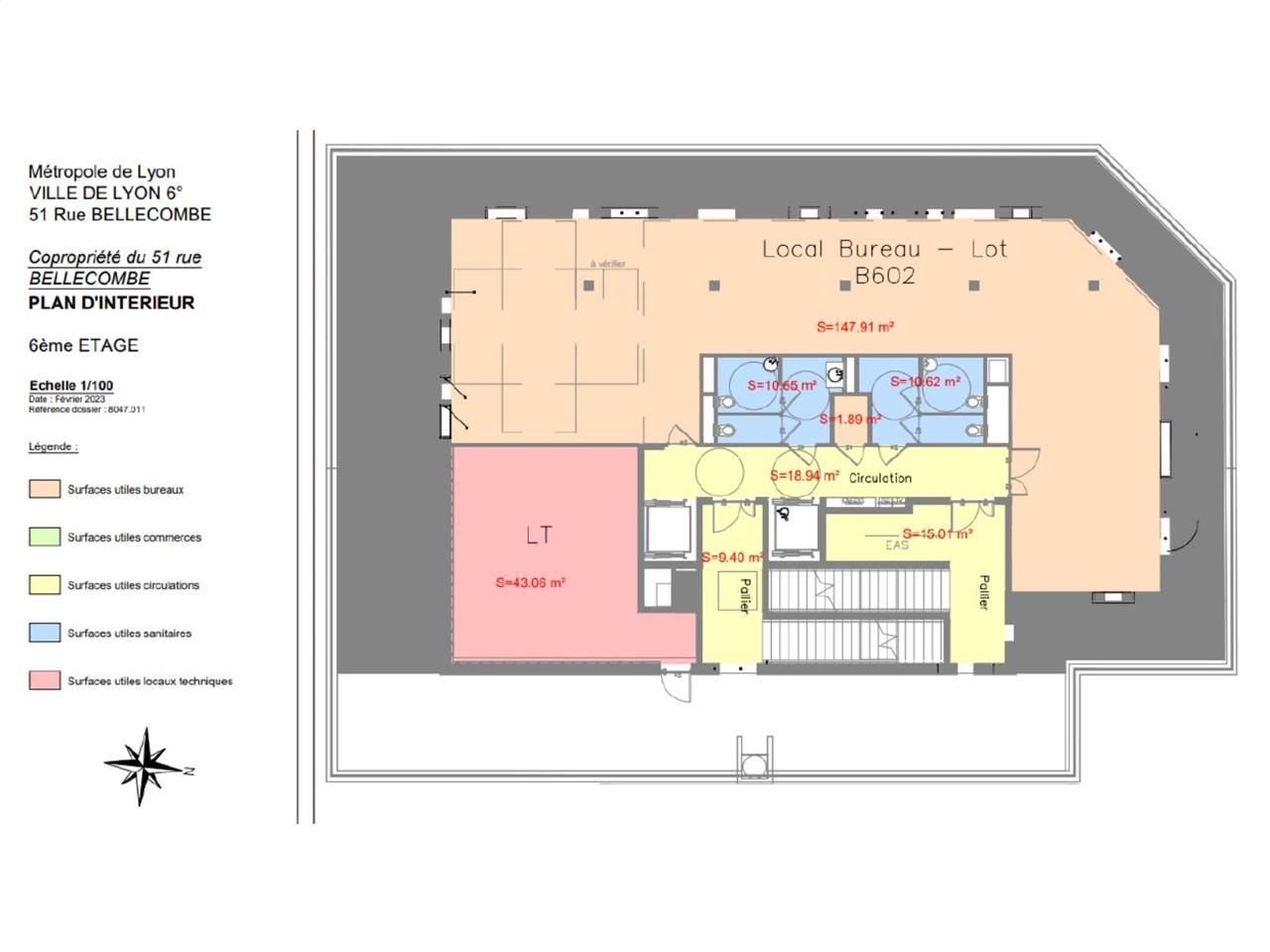
| 6 | Bureaux | 190 | 24 mois ap. déb. trx | 6264 m² HT/HD | n.c. | 2% HT du prix de vente HT/HD à la charge de l'acquéreur | T.V.A. |
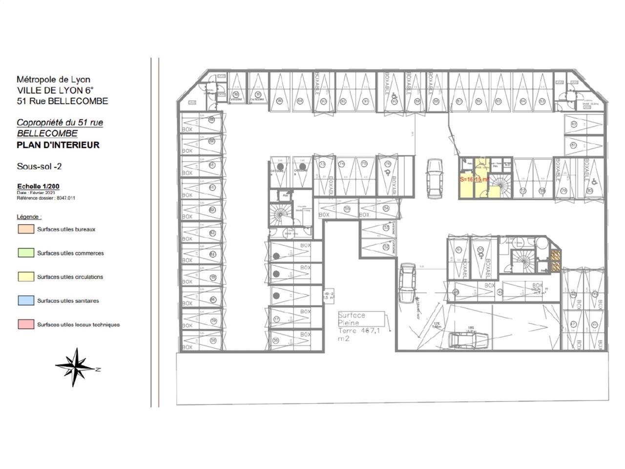
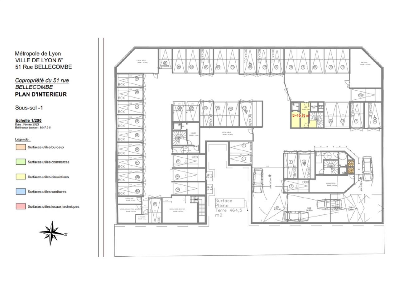
| SS | Parkings | 24 mois ap. déb. trx | 39150 U HT/HD | n.c. | 2% HT du prix de vente HT/HD à la charge de l'acquéreur | T.V.A. |
Régime Fiscal : T.V.A.
Dépôt de garantie : 3 mois de loyer HT/HC
Paiement Loyer : trimestriel
Honoraires : 2% HT du prix de vente HT/HD à la charge de l'acquéreur
Information sur le Bail :
Charges incluant charges d'exploitation, charges d'ASL, prime d'assurance
Prestations :
- Immeuble tertiaire dernière génération
- Permis de Construire purgé de tout recours
- ACCÈS ET SÉCURITÉ :
- Immeuble certifié RE 2020 et code du Travail
- Entrée principale par la rue Bellecombe et
- une secondaire par la rue de la Gaîté
- Contrôle d'accès et Accessibilité Personnes
- à Mobilité réduite, deux ascenseurs
- Entrée indépendante pour les commerces
- QUALITÉ ET ÉNERGIES :
- Chaud/froid : chauffage urbain et pompe à chaleur eau/eau
- (production de froid)
- Hauteur libre sous plafond 2,70 m
- Double vitrage à faible émissivité
- Faux-plancher technique
- Vestiaires au RDC
- Toiture végétalisée
- STATIONNEMENT :
- 25 parkings en sous-sol, soit un ratio de 1/116 m²
- + 2 parkings pour les commerces/bureaux rez-de-chaussée
- Local vélos en sous-sol
- BUREAUX
- Livrés non cloisonnés
- Vendus en bloc ou en plateaux divisibles
- La division est également proposée par 2 niveaux : R+1-R+2 / R+3-R+4 / R+5-R+6.
- Surface RDC : 285,51 m²
Accessibilité:
SNCF 4 Connexions Gare TGV TER Part Dieu à 10 min à pied environ
Bus Lignes de Bus : C16 ou 27, arrêt « Bellecombe Gaité »
Metro Métro ligne B, station Brotteaux Ou Métro lignes A et B, station Charpennes (1 arrêt du tram)
Tramway Tramway lignes T1 T4, arrêt « Collège Bellecombe » à proximité immédiate
Station(s) Vélo'V à proximité
Aeroport Aéroport Lyon Saint Exupéry à 30 min. environ via le Rhon'Express (départ Part Dieu)
Autoroute Périphérique Nord de Lyon, porte Saint Clair à 15 minutes
Autoroute Accès autoroute A7/A6
Les informations sur les risques auxquels ce bien est exposé sont disponibles sur le site Géorisques : www.georisques.gouv.fr
Emplacement(s) de Parking: 27 places
Voir plus
Afficher les consommations énergétiques
Favoris
Exporter
Appeler
Contacter
Signaler cette annonce










