Créée en 2014, BIE - Bordeaux Immobilier Entreprises est composée d’une équipe de consultants confirmés dans le domaine de la location et la vente des différents types d’actifs immobiliers (Bureau ...
En savoir plus

720 m²
HT HC
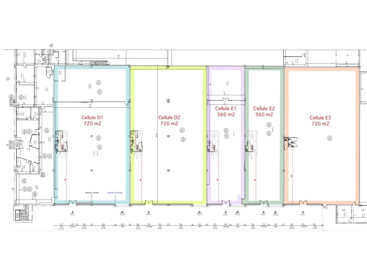
Location activité/entrepôt - 720 m²
Artigues-près-Bordeaux (33370)
Dernière mise à jour : Il y a 2 jours
Nous vous proposons plusieurs surfaces de locaux d'activité/showroom dans ce site sécurisé situé à Artigues-Prés-Bordeaux à proximité de la rocade.
Régime Fiscal : T.V.A.
Dépôt de garantie : 3 mois de loyer HT/HC
Honoraires : 15 % HT du loyer annuel HT à la charge du Preneur
Prestations :
Accessibilité:
Sortie rocade Sortie 25
Bus Pierre Curie (BUS-27), Virecourt (BUS-51)
Les informations sur les risques auxquels ce bien est exposé sont disponibles sur le site Géorisques : www.georisques.gouv.fr
| Étage | Type | Surfaces | Dispo | Loyer | Charges | Type de bailRév. annuelle |
|---|---|---|---|---|---|---|
| RDC | Activités | 720 | Immédiate | 100 HT/HC/m²/an | 14 m²/an HT | 3-6-9 ansILAT Indice des Loyers des Activités Tertiaires |
Régime Fiscal : T.V.A.
Dépôt de garantie : 3 mois de loyer HT/HC
Honoraires : 15 % HT du loyer annuel HT à la charge du Preneur
Prestations :
- Site clos et sécurisé par gardien
- Accés PL
- Places de parking
- Structure parpaing
- Hauteur sous poutre : 3.90m
- Sol béton
- Rideau métallique motorisé : 3.50x3.90m (LxH)
- Sanitaires
- Surface RDC : 720 m²
Accessibilité:
Sortie rocade Sortie 25
Bus Pierre Curie (BUS-27), Virecourt (BUS-51)
Les informations sur les risques auxquels ce bien est exposé sont disponibles sur le site Géorisques : www.georisques.gouv.fr
Voir plus
Afficher les consommations énergétiques
Favoris
Exporter
Appeler
Contacter
Signaler cette annonce
