Avec près de 80 implantations en France, Arthur Loyd est le premier Réseau National de Conseil en Immobilier d’Entreprise. Nous vous accompagnons dans vos projets sur l’ensemble du territoire natio ...
En savoir plus

208 m²
HT HC
Location activité/entrepôt - 208 m²
Saint-Étienne-du-Rouvray (76800)
Dernière mise à jour : Hier
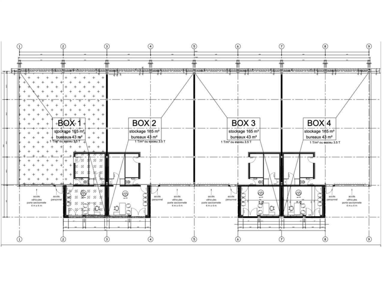
PARC D'ACTIVITE AVEC 4 CELLULES DISPONIBLES - SURFACES MODULABLES
PARC D'ACTIVITE AVEC 4 CELLULES DISPONIBLES - SURFACES MODULABLES
Impôt Foncier : 1170 €/an HT
Régime Fiscal : T.V.A.
Dépôt de garantie : 3 mois de loyer HT/HC
Honoraires : 20% HT du loyer annuel en principal HT / HC à la charge du preneur
Prestations :
Accessibilité:
Autoroute Directement relié aux accès autoroutiers en direction de l'A13 : à 1H de Paris, de Caen ou du Havre A 5 minutes de la Sud III vers Rouen, Pont Flaubert
Métro Le métro possède deux lignes : Georges Braque - Grand-Quevilly -> Boulingrin - Rouen Boulingrin-Rouen -> Technopôle du Madrillet - Saint-Etienne-du-Rouvray
Bus Ligne 27, arrêt Maryse Bastié
Les informations sur les risques auxquels ce bien est exposé sont disponibles sur le site Géorisques : www.georisques.gouv.fr
PARC D'ACTIVITE AVEC 4 CELLULES DISPONIBLES - SURFACES MODULABLES
| Étage | Type | Surfaces | Dispo | Loyer | Charges | Type de bailRév. annuelle |
|---|---|---|---|---|---|---|
| RDC Stock. | Activités | 165 | ILC Indice des Loyers Commerciaux | |||
| RDC Stock. | Bureaux | 43 | ILC Indice des Loyers Commerciaux | |||
| Total Cellule BOX 2 | Activités | 208 | 600 an HT | 3-6-9 ansILC Indice des Loyers Commerciaux |
Impôt Foncier : 1170 €/an HT
Régime Fiscal : T.V.A.
Dépôt de garantie : 3 mois de loyer HT/HC
Honoraires : 20% HT du loyer annuel en principal HT / HC à la charge du preneur
Prestations :
- Sur un site clos, un parc d'activité comprenant plusieurs utilisateurs. 2 cellules de 208 m2 comprenant les aménagements suivants :
- Stockage / Atelier d'environ 165 m2 :
- Dalle béton
- Panneau translucide
- Porte Sectionnelle électrique ( hauteur 4m et Largeur 4m)
- Puissance électrique en triphasé
- Arrivé d'eau
- Possibilité d'installer une mezzanine
- Bureaux d'environ 43 m2 :
- Sol dalle béton
- Faux plafonds avec luminaires encastrés
- Huisseries en double vitrage
- Porte d'entrée double battant
- Sanitaire
- Climatisation réversible
- Surface extérieur :
- Portail électrique
- Deux places de Parking par lot
- Possibilité de réunir les lots.
- Surface RDC : 0 m²
- Ossature : Métallique
- Murs périmétriques : Panneau sandwich isolant
- Couverture : Panneaux sandwich isolants
Accessibilité:
Autoroute Directement relié aux accès autoroutiers en direction de l'A13 : à 1H de Paris, de Caen ou du Havre A 5 minutes de la Sud III vers Rouen, Pont Flaubert
Métro Le métro possède deux lignes : Georges Braque - Grand-Quevilly -> Boulingrin - Rouen Boulingrin-Rouen -> Technopôle du Madrillet - Saint-Etienne-du-Rouvray
Bus Ligne 27, arrêt Maryse Bastié
Les informations sur les risques auxquels ce bien est exposé sont disponibles sur le site Géorisques : www.georisques.gouv.fr
Voir plus
Afficher les consommations énergétiques
Localisation et transport aux alentours
Favoris
Exporter
Appeler
Contacter
Signaler cette annonce










