Conseil en immobilier d'entreprise, Cushman & Wakefield est un acteur incontournable au rayonnement international. Cushman & Wakefield offre des solutions dans toutes les étapes que comporte un p ...
En savoir plus



1 008 m²
HT HC
NEW DEHLI - Location activité/entrepôt - 1008 m²
Rungis (94150)
Dernière mise à jour : Hier
PARC ICADE - NEW DEHLI
Immeuble NEW DEHLI
Activité à louer à Rungis.
Situé à seulement 7 kilomètres de Paris, le Parc Icade Paris Orly-Rungis est le premier parc tertiaire privé du sud de la capitale. S'étendant sur 58 hectares, il offre plus de 400 000 m² d'espaces construits, accueillant plus de 220 entreprises réparties dans 70 immeubles de bureaux et d'activités.
Nous proposons à la location un lot d'activité avec bureaux d'accompagnement, au sein de l'immeuble NEW DEHLI.
Le parc est certifié ISO 14001 et labellisé « Parc d'Excellence », témoignant de son engagement envers l'environnement. Il offre une multitude de services pour le bien-être des occupants : 13 points de restauration variés, crèches, pôle santé, espaces de co-working, salle de sport avec coaching, piste d'athlétisme, potager partagé, espace zen et conciergerie digitale. Une Happiness Manager est dédiée à l'animation de la vie du parc, soutenue par une plateforme digitale communautaire accessible via www.cyg-icade.com.
L'accessibilité est un atout majeur, avec un réseau dense de transports en commun comprenant le RER C (station « La Fraternelle »), le tramway T7 (« Robert Schuman »), ainsi que plusieurs lignes de bus (91.10, 131, 216, 319, 396) et une navette électrique gratuite. Les autoroutes A6, A86, A106 et la nationale N7 assurent une connexion routière optimale, et l'aéroport d'Orly est à proximité immédiate.
Pour plus d'informations ou pour organiser une visite, n'hésitez pas à nous contacter
Impôt Foncier : 11 €//m²/an
Régime Fiscal : T.V.A.
Dépôt de garantie : 3 mois de loyer HT/HC
Honoraires : 15 % HT du loyer annuel HT/HC à la charge du preneur.
Taxe Bureau : 2 €/m²/an
Information sur le Bail :
Assurance : 1 euros HT /m²/an Parkings extérieurs : 1 000 euros / 700 euros
Prestations :
Accessibilité:
RER Rungis la Fraternelle (RER C)
Tram La Fraternelle (T7)
Bus La Fraternelle (lignes 319 - 5154)
Bus Rungis - La Fraternelle Rer (131)
Orly 1-2-3 (ORLYVAL)
Les informations sur les risques auxquels ce bien est exposé sont disponibles sur le site Géorisques : www.georisques.gouv.fr
Immeuble NEW DEHLI
Activité à louer à Rungis.
Situé à seulement 7 kilomètres de Paris, le Parc Icade Paris Orly-Rungis est le premier parc tertiaire privé du sud de la capitale. S'étendant sur 58 hectares, il offre plus de 400 000 m² d'espaces construits, accueillant plus de 220 entreprises réparties dans 70 immeubles de bureaux et d'activités.
Nous proposons à la location un lot d'activité avec bureaux d'accompagnement, au sein de l'immeuble NEW DEHLI.
Le parc est certifié ISO 14001 et labellisé « Parc d'Excellence », témoignant de son engagement envers l'environnement. Il offre une multitude de services pour le bien-être des occupants : 13 points de restauration variés, crèches, pôle santé, espaces de co-working, salle de sport avec coaching, piste d'athlétisme, potager partagé, espace zen et conciergerie digitale. Une Happiness Manager est dédiée à l'animation de la vie du parc, soutenue par une plateforme digitale communautaire accessible via www.cyg-icade.com.
L'accessibilité est un atout majeur, avec un réseau dense de transports en commun comprenant le RER C (station « La Fraternelle »), le tramway T7 (« Robert Schuman »), ainsi que plusieurs lignes de bus (91.10, 131, 216, 319, 396) et une navette électrique gratuite. Les autoroutes A6, A86, A106 et la nationale N7 assurent une connexion routière optimale, et l'aéroport d'Orly est à proximité immédiate.
Pour plus d'informations ou pour organiser une visite, n'hésitez pas à nous contacter
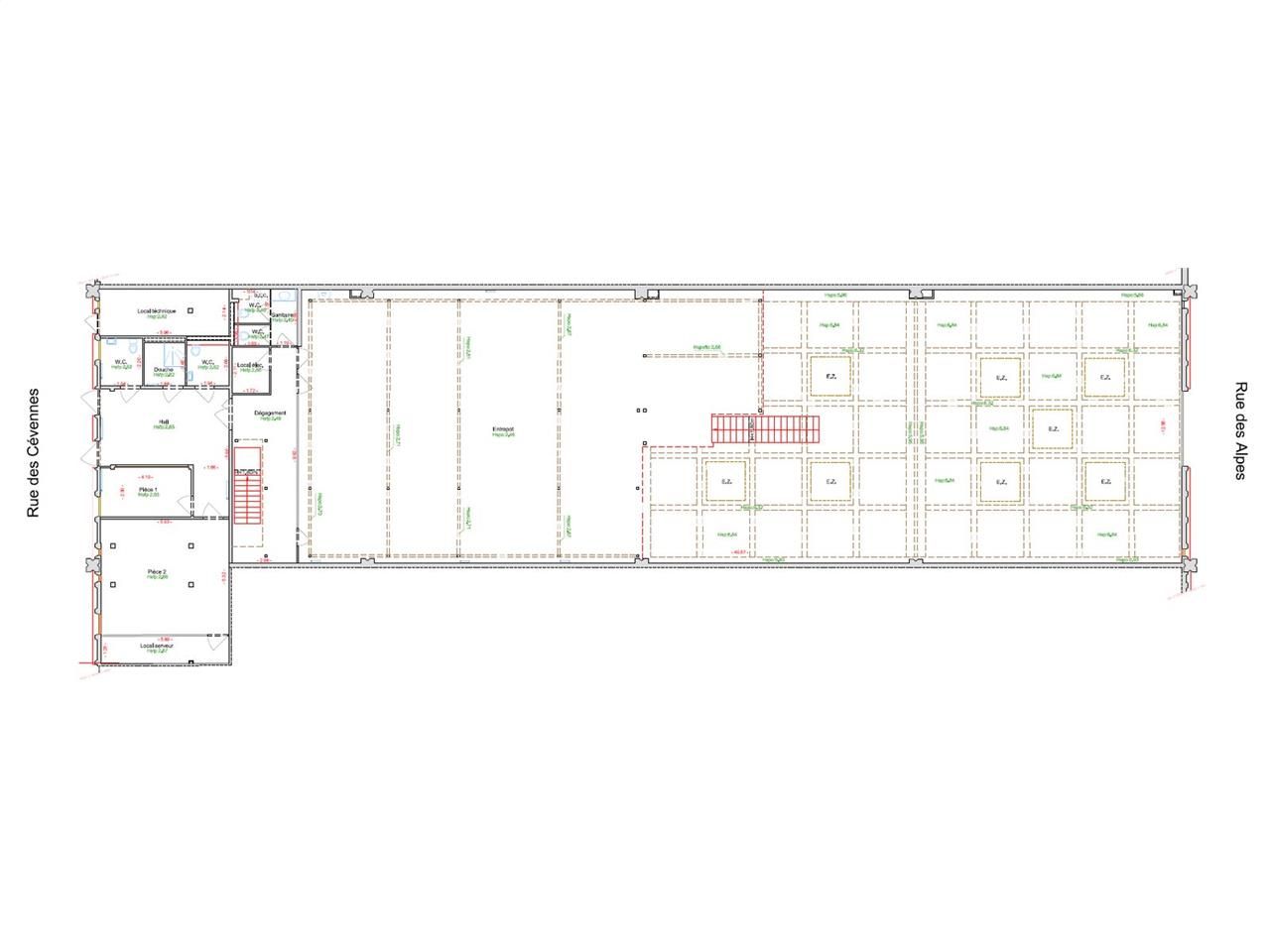
| Étage | Type | Surfaces | Dispo | Loyer | Charges | Type de bailRév. annuelle |
|---|---|---|---|---|---|---|
| 1 | Bureaux | 385 | 180 HT/HC/m²/an | 24 HT/m²/an | Sur l'indice ILAT | |
| RdC | Activités | 524 | 180 HT/HC/m²/an | 24 HT/m²/an | Sur l'indice ILAT | |
| RdC | Bureaux | 99 | 180 HT/HC/m²/an | 24 HT/m²/an | Sur l'indice ILAT | |
| Total Cellule | Activités | 1008 | 180 HT/HC/m²/an | 24 HT/m²/an | 3-6-9 ansSur l'indice ILAT |
Impôt Foncier : 11 €//m²/an
Régime Fiscal : T.V.A.
Dépôt de garantie : 3 mois de loyer HT/HC
Honoraires : 15 % HT du loyer annuel HT/HC à la charge du preneur.
Taxe Bureau : 2 €/m²/an
Information sur le Bail :
Assurance : 1 euros HT /m²/an Parkings extérieurs : 1 000 euros / 700 euros
Prestations :
- Cadre de travail verdoyant
- Conciergerie
- 14 offres de restauration
- PC Sécurité 24H/24 - 7j/7
- Poste/Tabac-Loto/Pressing/Franprix
- Espace forme
- Espace zen / Beauty room / Coiffeur
- Hôtel 4* Hilton Inn
- Crèche opérée par « les Petits Chaperons Rouges »
- Espace sportif extérieur
- Navette électrique ICADE permettant de relier la ligne 14 et le RER C
- Hauteur sous plafond de 6 m 36
- HT de 6 m 86
- Charge au sol de 2,5 t/m²
- Lot entièrement rénové y compris les fenêtres
- 1 porte plain pied
- 1 entrée spécifique pour les bureaux
- 1 douche
- Surface RDC : 623 m²
Accessibilité:
RER Rungis la Fraternelle (RER C)
Tram La Fraternelle (T7)
Bus La Fraternelle (lignes 319 - 5154)
Bus Rungis - La Fraternelle Rer (131)
Orly 1-2-3 (ORLYVAL)
Les informations sur les risques auxquels ce bien est exposé sont disponibles sur le site Géorisques : www.georisques.gouv.fr
Voir plus
Afficher les consommations énergétiques
Localisation et transport aux alentours
Favoris
Exporter
Appeler
Contacter
Signaler cette annonce










