Conseil en immobilier d'entreprise, Cushman & Wakefield est un acteur incontournable au rayonnement international. Cushman & Wakefield offre des solutions dans toutes les étapes que comporte un p ...
En savoir plus



2 658 m² divisible dès 1 262 m²
HT HC
Location activité/entrepôt - 2658 m²
Rungis (94150)
Dernière mise à jour : Il y a 7 mois
PARC ICADE - MADRID
Locaux mixtes, bureaux et activité à louer à Rungis.
Situé à seulement 7 kilomètres de Paris, le Parc Icade Paris Orly-Rungis est le premier parc tertiaire privé du sud de la capitale. S'étendant sur 58 hectares, il offre plus de 400 000 m² d'espaces construits, accueillant plus de 220 entreprises réparties dans 70 immeubles de bureaux et d'activités.
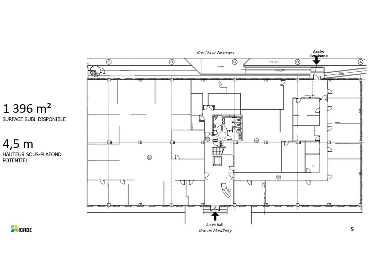
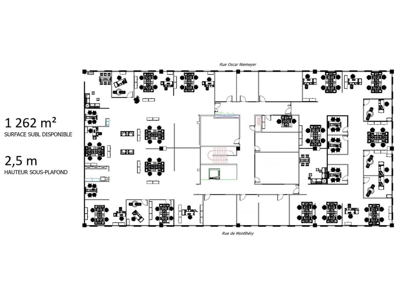
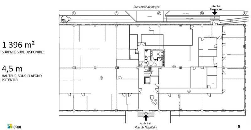
Nous proposons à la location un espace de 2 658 m², divisible, idéal pour des activités mixtes. Le rez-de-chaussée peut être entièrement ou partiellement rénové pour des activités spécifiques, offrant une hauteur sous plafond de 4,5 mètres et une charge au sol de 1,5 tonne. Une porte camion peut être créée en façade pour faciliter les opérations logistiques. L'étage est aménagé en bureaux fonctionnels et modernes.
Le parc est certifié ISO 14001 et labellisé « Parc d'Excellence », témoignant de son engagement envers l'environnement. Il offre une multitude de services pour le bien-être des occupants : 13 points de restauration variés, crèches, pôle santé, espaces de co-working, salle de sport avec coaching, piste d'athlétisme, potager partagé, espace zen et conciergerie digitale. Une Happiness Manager est dédiée à l'animation de la vie du parc, soutenue par une plateforme digitale communautaire accessible via www.cyg-icade.com.
L'accessibilité est un atout majeur, avec un réseau dense de transports en commun comprenant le RER C (station « La Fraternelle »), le tramway T7 (« Robert Schuman »), ainsi que plusieurs lignes de bus (91.10, 131, 216, 319, 396) et une navette électrique gratuite. Les autoroutes A6, A86, A106 et la nationale N7 assurent une connexion routière optimale, et l'aéroport d'Orly est à proximité immédiate.
Pour plus d'informations ou pour organiser une visite, n'hésitez pas à nous contacter.
Impôt Foncier : 16 €//m²/an
Régime Fiscal : T.V.A.
Honoraires : 15 % HT du loyer annuel HT/HC à la charge du preneur.
Taxe Bureau : 10 €/m²/an
Prestations :
Accessibilité:
RER RER C "La Fraternelle"
Tram T7 "Robert Schuman"
Accès routier A6/A106/A86/N7
Aéroport Aéroport d'Orly
Bus Bus 91.10/131/216/319/396 + navette électrique
Les informations sur les risques auxquels ce bien est exposé sont disponibles sur le site Géorisques : www.georisques.gouv.fr
Locaux mixtes, bureaux et activité à louer à Rungis.
Situé à seulement 7 kilomètres de Paris, le Parc Icade Paris Orly-Rungis est le premier parc tertiaire privé du sud de la capitale. S'étendant sur 58 hectares, il offre plus de 400 000 m² d'espaces construits, accueillant plus de 220 entreprises réparties dans 70 immeubles de bureaux et d'activités.
Nous proposons à la location un espace de 2 658 m², divisible, idéal pour des activités mixtes. Le rez-de-chaussée peut être entièrement ou partiellement rénové pour des activités spécifiques, offrant une hauteur sous plafond de 4,5 mètres et une charge au sol de 1,5 tonne. Une porte camion peut être créée en façade pour faciliter les opérations logistiques. L'étage est aménagé en bureaux fonctionnels et modernes.
Le parc est certifié ISO 14001 et labellisé « Parc d'Excellence », témoignant de son engagement envers l'environnement. Il offre une multitude de services pour le bien-être des occupants : 13 points de restauration variés, crèches, pôle santé, espaces de co-working, salle de sport avec coaching, piste d'athlétisme, potager partagé, espace zen et conciergerie digitale. Une Happiness Manager est dédiée à l'animation de la vie du parc, soutenue par une plateforme digitale communautaire accessible via www.cyg-icade.com.
L'accessibilité est un atout majeur, avec un réseau dense de transports en commun comprenant le RER C (station « La Fraternelle »), le tramway T7 (« Robert Schuman »), ainsi que plusieurs lignes de bus (91.10, 131, 216, 319, 396) et une navette électrique gratuite. Les autoroutes A6, A86, A106 et la nationale N7 assurent une connexion routière optimale, et l'aéroport d'Orly est à proximité immédiate.
Pour plus d'informations ou pour organiser une visite, n'hésitez pas à nous contacter.
| Étage | Type | Surfaces | Dispo | Loyer | Charges | Type de bailRév. annuelle |
|---|---|---|---|---|---|---|
| 1 | Bureaux | 1262 | Immédiate | 190 HT/HC/m²/an | 45 HT/m²/an | 3-6-9 ansSur l'indice ILAT |
| RdC | Activités | 1396 | 3 mois après accord | 190 HT/HC/m²/an | 45 HT/m²/an | 3-6-9 ansSur l'indice ILAT |
| pkg Ext | Parkings | Immédiate | 3-6-9 ansSur l'indice ILAT | |||
| pkg Ext | Parkings | Immédiate | 3-6-9 ansSur l'indice ILAT |
Impôt Foncier : 16 €//m²/an
Régime Fiscal : T.V.A.
Honoraires : 15 % HT du loyer annuel HT/HC à la charge du preneur.
Taxe Bureau : 10 €/m²/an
Prestations :
- Le Parc Icade Paris Orly-Rungis, situé à seulement 7 km de Paris, est le premier parc tertiaire privé du sud francilien. Il accueille 18 000 emplois et plus de 220 entreprises issues de secteurs variés
- Des acteurs de renom tels qu'Abbott/Abbvie, Orano, Bridgestone, Corsair, École Lenôtre, Olympus, Ricoh, System U, Thalès ou encore Vinci y ont choisi des espaces adaptés à leurs besoins
- Le Parc offre une large gamme de services pour le confort des entreprises et de leurs collaborateurs : navette électrique, centre d'affaires, restaurants, espaces bien-être et sportifs, crèche, cabinet médical et hôtels 3 et 4 étoiles
- Des commodités pratiques complètent cette offre, comme une poste, un pressing, un garage, des solutions de mobilité douce et une station électrique.
- Immeuble Semi indépendant mixte
- Possibilité de curer le RDC et de le rénover entièrement ou en partie en activité
- Hauteur sous plafond de 4,5 m
- Charge au sol de 1,5 tonnes
- Porte camion à créer en façade
- Etage traité en bureaux
- Surface RDC : 1396 m²
Accessibilité:
RER RER C "La Fraternelle"
Tram T7 "Robert Schuman"
Accès routier A6/A106/A86/N7
Aéroport Aéroport d'Orly
Bus Bus 91.10/131/216/319/396 + navette électrique
Les informations sur les risques auxquels ce bien est exposé sont disponibles sur le site Géorisques : www.georisques.gouv.fr
Voir plus
Afficher les consommations énergétiques
Localisation et transport aux alentours
- Robert Schuman - Parc SILIC Centre160m (2min à pied)7
- Saarinen - Parc SILIC Nord346m (5min à pied)7
Favoris
Exporter
Appeler
Contacter
Signaler cette annonce










