Conseil en immobilier d'entreprise, Cushman & Wakefield est un acteur incontournable au rayonnement international. Cushman & Wakefield offre des solutions dans toutes les étapes que comporte un p ...
En savoir plus



1 493 m²
HT HC
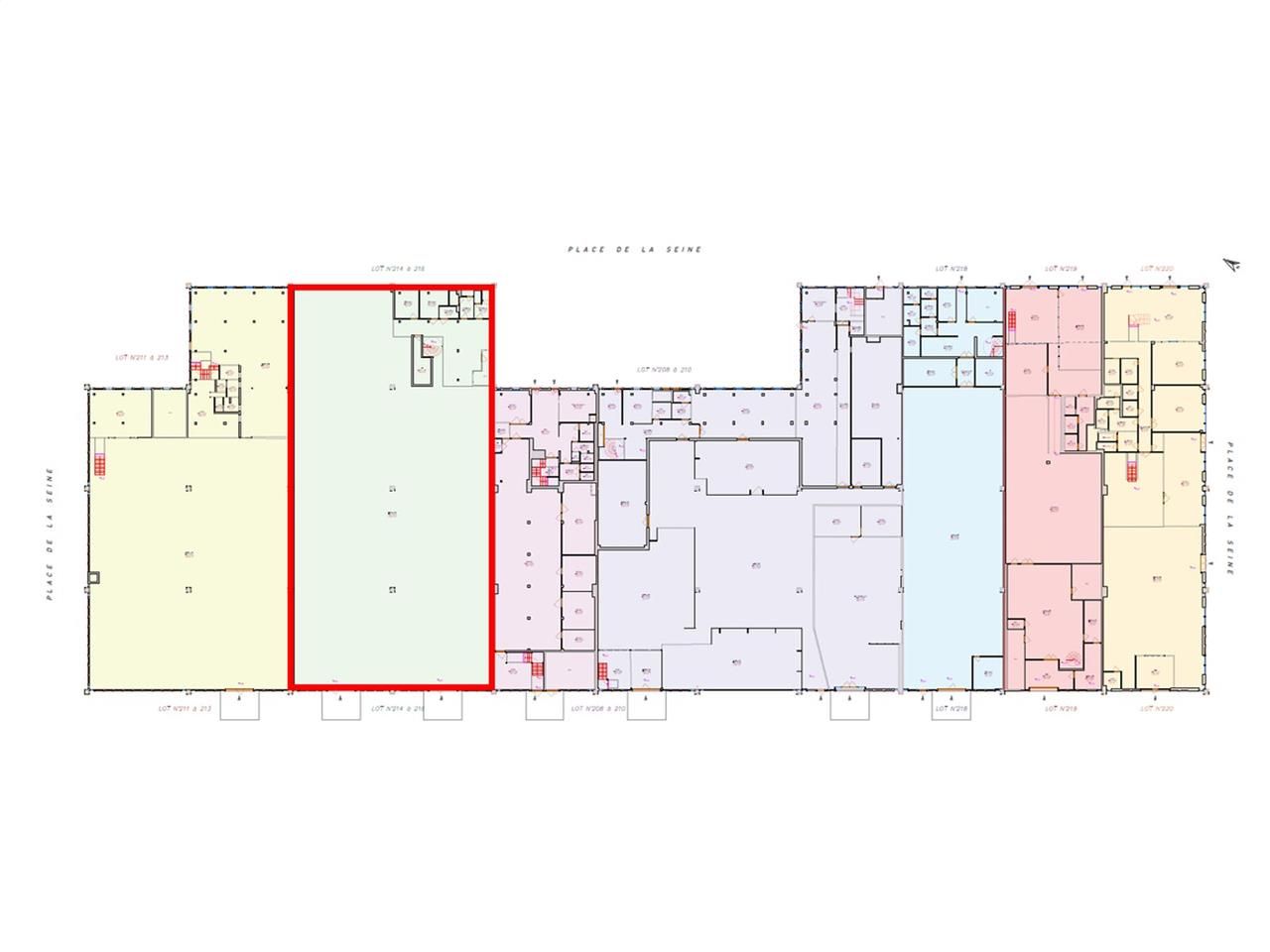
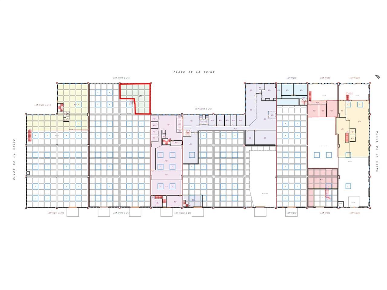
AUGUSTA - Location activité/entrepôt - 1493 m²
Rungis (94150)
Dernière mise à jour : Hier
PARC ICADE - AUGUSTA
Immeuble AUGUSTA
Activité à louer à Rungis.
Situé à seulement 7 kilomètres de Paris, le Parc Icade Paris Orly-Rungis est le premier parc tertiaire privé du sud de la capitale. S'étendant sur 58 hectares, il offre plus de 400 000 m² d'espaces construits, accueillant plus de 220 entreprises réparties dans 70 immeubles de bureaux et d'activités.
Nous proposons à la location une cellule d'activité, avec bureaux d'accompagnement, au sein de l'immeuble AUGUSTA.
Le parc est certifié ISO 14001 et labellisé « Parc d'Excellence », témoignant de son engagement envers l'environnement. Il offre une multitude de services pour le bien-être des occupants : 13 points de restauration variés, crèches, pôle santé, espaces de co-working, salle de sport avec coaching, piste d'athlétisme, potager partagé, espace zen et conciergerie digitale. Une Happiness Manager est dédiée à l'animation de la vie du parc, soutenue par une plateforme digitale communautaire accessible via www.cyg-icade.com.
L'accessibilité est un atout majeur, avec un réseau dense de transports en commun comprenant le RER C (station « La Fraternelle »), le tramway T7 (« Robert Schuman »), ainsi que plusieurs lignes de bus (91.10, 131, 216, 319, 396) et une navette électrique gratuite. Les autoroutes A6, A86, A106 et la nationale N7 assurent une connexion routière optimale, et l'aéroport d'Orly est à proximité immédiate.
Pour plus d'informations ou pour organiser une visite, n'hésitez pas à nous contacter.
Impôt Foncier : 12 €//m²/an
Dépôt de garantie : 3 mois de loyer HT/HC
Paiement Loyer : Trimestriel
Honoraires : 15 % HT du loyer annuel HT/HC à la charge du preneur.
Taxe Bureau : 2 €/m²/an
Information sur le Bail :
Assurances : 1 euros/HT/HC/m²/an Parkings extérieurs : 1 000 euros / 700 euros
Prestations :
Accessibilité:
RER La Fraternelle (RER C)
Aéroport Orly à 5 minutes via la navette
Accès routier A6a, A6b, A10, A86 et A106
Tram T7 "R.Schuman"
Bus Navette électrique à la demande
Les informations sur les risques auxquels ce bien est exposé sont disponibles sur le site Géorisques : www.georisques.gouv.fr
Immeuble AUGUSTA
Activité à louer à Rungis.
Situé à seulement 7 kilomètres de Paris, le Parc Icade Paris Orly-Rungis est le premier parc tertiaire privé du sud de la capitale. S'étendant sur 58 hectares, il offre plus de 400 000 m² d'espaces construits, accueillant plus de 220 entreprises réparties dans 70 immeubles de bureaux et d'activités.
Nous proposons à la location une cellule d'activité, avec bureaux d'accompagnement, au sein de l'immeuble AUGUSTA.
Le parc est certifié ISO 14001 et labellisé « Parc d'Excellence », témoignant de son engagement envers l'environnement. Il offre une multitude de services pour le bien-être des occupants : 13 points de restauration variés, crèches, pôle santé, espaces de co-working, salle de sport avec coaching, piste d'athlétisme, potager partagé, espace zen et conciergerie digitale. Une Happiness Manager est dédiée à l'animation de la vie du parc, soutenue par une plateforme digitale communautaire accessible via www.cyg-icade.com.
L'accessibilité est un atout majeur, avec un réseau dense de transports en commun comprenant le RER C (station « La Fraternelle »), le tramway T7 (« Robert Schuman »), ainsi que plusieurs lignes de bus (91.10, 131, 216, 319, 396) et une navette électrique gratuite. Les autoroutes A6, A86, A106 et la nationale N7 assurent une connexion routière optimale, et l'aéroport d'Orly est à proximité immédiate.
Pour plus d'informations ou pour organiser une visite, n'hésitez pas à nous contacter.
| Étage | Type | Surfaces | Dispo | Loyer | Charges | Type de bailRév. annuelle |
|---|---|---|---|---|---|---|
| 1 | Bureaux | 150 | 180 HT/HC/m²/an | 20 HT/m²/an | ||
| RdC | Activités | 1343 | 180 HT/HC/m²/an | 20 HT/m²/an | ||
| Total Cellule Lot 1 | Activités | 1493 | 180 HT/HC/m²/an | 20 HT/m²/an | 3-6-9 ans |
Impôt Foncier : 12 €//m²/an
Dépôt de garantie : 3 mois de loyer HT/HC
Paiement Loyer : Trimestriel
Honoraires : 15 % HT du loyer annuel HT/HC à la charge du preneur.
Taxe Bureau : 2 €/m²/an
Information sur le Bail :
Assurances : 1 euros/HT/HC/m²/an Parkings extérieurs : 1 000 euros / 700 euros
Prestations :
- Le Parc Icade Paris Orly-Rungis, situé à seulement 7 km de Paris, est le premier parc tertiaire privé du sud francilien. Il accueille 18 000 emplois et plus de 220 entreprises issues de secteurs variés
- Des acteurs de renom tels qu'Abbott/Abbvie, Orano, Bridgestone, Corsair, École Lenôtre, Olympus, Ricoh, System U, Thalès ou encore Vinci y ont choisi des espaces adaptés à leurs besoins
- Le Parc offre une large gamme de services pour le confort des entreprises et de leurs collaborateurs : navette électrique, centre d'affaires, restaurants, espaces bien-être et sportifs, crèche, cabinet médical et hôtels 3 et 4 étoiles
- Des commodités pratiques complètent cette offre, comme une poste, un pressing, un garage, des solutions de mobilité douce et une station électrique.
- Hauteur sous plafond de 6,36 m
- HT de 6,86 m
- Lot entièrement rénové
- 2 portes sectionnelles
- 1 entrée spécifique pour les bureaux à l'arrière du lot
- Surface RDC : 1493 m²
Accessibilité:
RER La Fraternelle (RER C)
Aéroport Orly à 5 minutes via la navette
Accès routier A6a, A6b, A10, A86 et A106
Tram T7 "R.Schuman"
Bus Navette électrique à la demande
Les informations sur les risques auxquels ce bien est exposé sont disponibles sur le site Géorisques : www.georisques.gouv.fr
Voir plus
Afficher les consommations énergétiques
Localisation et transport aux alentours
- Robert Schuman - Parc SILIC Centre289m (4min à pied)7
- Saarinen - Parc SILIC Nord537m (8min à pied)7
- La Fraternelle541m (8min à pied)7
Favoris
Exporter
Appeler
Contacter
Signaler cette annonce










