Century 21 Business Pro est une agence dédiée à l'immobilier commercial et d'entreprise spécialisée dans la commercialisation de locaux commerciaux, fonds de commerce, bureaux, locaux d’activités, ...
En savoir plus

313 m²
HT HC
Location activité/entrepôt - 313 m²
Cordemais (44360)
Dernière mise à jour : Il y a 2 jours
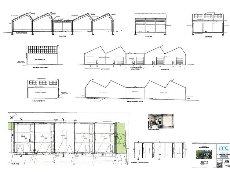
CORDEMAIS - LES PETITES LANDES (44) CENTURY 21 vous propose à la LOCATION 9 cellules/ entrepôt de stockage de 146 à 313 m2. Elles sont livrées brutes de béton, équipée d'une arrivée/ évacuation d'eau, du coffret électrique. Les aménagements sont à prévoir par le locataire Une place de stationnement privative par cellule. Livraison 2eme trimestre 2024 Cellule 9 : 313 m2 - loyer 1 830 EUR HT/mois Provisions pour charges : 100 EUR par mois Taxe foncière à la charge du locataire Honoraire d'agence en sus Réf : 7816 Les informations sur les risques auxquels ce bien est exposé sont disponibles sur le site Géorisques : www.georisques.gouv.fr
Voir plus
Afficher les consommations énergétiques
Favoris
Exporter
Appeler
Contacter
Signaler cette annonce







