Advenis Conseil et Transaction Tours est un cabinet de conseil spécialiste de l'immobilier d'entreprise.Dirigé par Pierre Migault, Advenis Conseil et Transaction Tours est un acteur reconnu en Indr ...
En savoir plus

3 920 m² divisible dès 280 m²
HT HC
Location activité/entrepôt - 3920 m²
Joué-lès-Tours (37300)
Dernière mise à jour : Il y a 7 mois
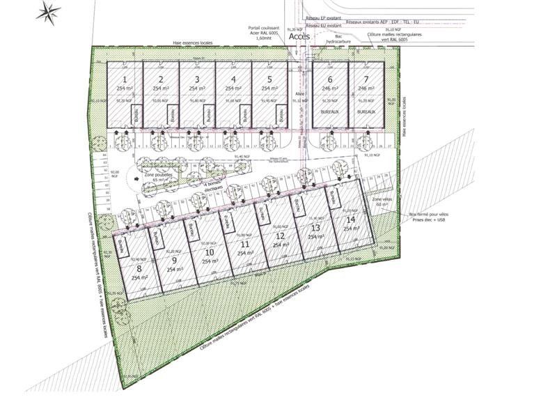
Cellules d'activités d'environ 280 m² à louer à Joué les Tours
Advenis Conseil Tours propose à la location des cellules d'activités neuves d'environ 280 m² chacune, disponibles dès le second semestre 2025. Ces cellules sont idéalement situées au coeur de la zone d'activités de la Liodière à Joué-lès-Tours, à proximité de l'A10 (5 km), de l'A85 (8 km) et du périphérique de Tours (2,7 km). La desserte est également facilitée par la ligne 31 du réseau Fil Bleu, accessible à 10 minutes à pied. Chaque cellule est équipée d'une mezzanine d'environ 30 m², d'un bureau, et d'une porte sectionnelle. Le site est entièrement clos, offrant un cadre sécurisé.
Les informations sur les risques auxquels ce bien est exposé sont disponibles sur le site Géorisques : www.georisques.gouv.fr
14 cellules d'activités d'environ 280 m² chacune
Environ 250 m² en RDC :
Atelier
Bureau
Sanitaire avec point d'eau
Porte sectionnelle
Porte de service + porte à l'arrière de la cellule
Mezzanine d'environ 30 m²
Voirie lourde
69 places de stationnement (4 bornes électriques)
Site clos / portail
Accès principal : RD 86
Echangeur A10 à 6 km
Echangeur A85 à 10 km
Echangeur A28 à 26 km
Bus Fil bleu : ligne 31
Aéroport à 18 km
Gare TGV à 16 km
Disponibilité : 2nd semestre 2025
Loyer annuel : 77.14 € HTHC / m2
Type de bail : Commercial
Dépôt de garantie : 3 mois
Honoraires à la charge du preneur : 15 % HT
Advenis Conseil Tours propose à la location des cellules d'activités neuves d'environ 280 m² chacune, disponibles dès le second semestre 2025. Ces cellules sont idéalement situées au coeur de la zone d'activités de la Liodière à Joué-lès-Tours, à proximité de l'A10 (5 km), de l'A85 (8 km) et du périphérique de Tours (2,7 km). La desserte est également facilitée par la ligne 31 du réseau Fil Bleu, accessible à 10 minutes à pied. Chaque cellule est équipée d'une mezzanine d'environ 30 m², d'un bureau, et d'une porte sectionnelle. Le site est entièrement clos, offrant un cadre sécurisé.
Les informations sur les risques auxquels ce bien est exposé sont disponibles sur le site Géorisques : www.georisques.gouv.fr
14 cellules d'activités d'environ 280 m² chacune
Environ 250 m² en RDC :
Atelier
Bureau
Sanitaire avec point d'eau
Porte sectionnelle
Porte de service + porte à l'arrière de la cellule
Mezzanine d'environ 30 m²
Voirie lourde
69 places de stationnement (4 bornes électriques)
Site clos / portail
Accès principal : RD 86
Echangeur A10 à 6 km
Echangeur A85 à 10 km
Echangeur A28 à 26 km
Bus Fil bleu : ligne 31
Aéroport à 18 km
Gare TGV à 16 km
Disponibilité : 2nd semestre 2025
Loyer annuel : 77.14 € HTHC / m2
Type de bail : Commercial
Dépôt de garantie : 3 mois
Honoraires à la charge du preneur : 15 % HT
| bât/lot | surface |
| a//01 | 280 |
| a//02 | 280 |
| a//03 | 280 |
| a//04 | 280 |
| a//05 | 280 |
| b//06 | 280 |
| b//07 | 280 |
| c//08 | 280 |
| c//11 | 280 |
| c//12 | 280 |
| c//09 | 280 |
| c//10 | 280 |
| c//13 | 280 |
| c//14 | 280 |
Voir plus
Afficher les consommations énergétiques
Favoris
Exporter
Appeler
Contacter
Signaler cette annonce










