Depuis 2003, KEOPS Toulouse accompagne les entreprises dans leurs projets immobiliers sur toute l’aire urbaine toulousaine.Notre équipe de professionnels passionnés met à votre service sa connaissa ...
En savoir plus

219 m²
HT HC
Location bureau - 219 m²
Toulouse (31000)
Dernière mise à jour : Il y a 2 jours
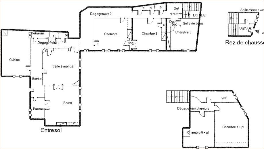
- A LOUER - Quartier Saint Etienne !
Surface de bureaux de bon standing proposée à la location idéalement située dans un immeuble haussmannien au cœur du quartier Saint-Etienne à Toulouse
Toulouse centre - quartier Saint-Etienne Métro : ligne B "Carmes" Bus : Lignes n° 14 et n° 44
Surface de bureaux à la location idéalement située dans un immeuble haussmannien au cœur du quartier Saint-Etienne à ToulouseSurface située à l'entresolAgencement : 7 grands bureaux, sanitaires privatifs, cuisineSurface partiellement rénovée (changement sol, courant fort et courant faible)
(1) loyer en Euros HT HC / m² / an (5) charges en Euros HT / m² / an
Toulouse centre - quartier Saint-Etienne Métro : ligne B "Carmes" Bus : Lignes n° 14 et n° 44
Surface de bureaux à la location idéalement située dans un immeuble haussmannien au cœur du quartier Saint-Etienne à ToulouseSurface située à l'entresolAgencement : 7 grands bureaux, sanitaires privatifs, cuisineSurface partiellement rénovée (changement sol, courant fort et courant faible)
| Etage | Surface | Type de locaux | Loyer(1) | Charges(5) | Disponibilité |
|---|---|---|---|---|---|
| RDC Haut | 219,00 m² | Bureaux | 183,56 | 7,48 | Mai 2026 |
Voir plus
Afficher les consommations énergétiques
Localisation et transport aux alentours
Favoris
Exporter
Appeler
Contacter
Signaler cette annonce
