Depuis 2003, KEOPS Toulouse accompagne les entreprises dans leurs projets immobiliers sur toute l’aire urbaine toulousaine.Notre équipe de professionnels passionnés met à votre service sa connaissa ...
En savoir plus

143 m²
HT HC
Location bureau - 143 m²
Toulouse (31000)
Dernière mise à jour : Il y a 4 jours
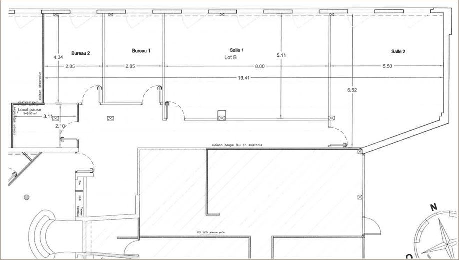
Nous vous proposons une surface de bureaux rénovés à la location, idéalement située dans la zone de Basso Cambo
Accès : à proximité de la rocade toulousaine, parc technologique de Basso Cambo Métro : ligne A "Basso Cambo" à 250 m Bus : lignes n°8, 11, 12, 14, 21, 47, 48, 49, 50, 53, 57, 58 et 87
Surface de bureaux rénovés située au rez-de-chaussée d'un immeuble idéalement situé à proximité directe du métro dans la zone de Basso CamboPlateau cloisonnéSystème de climatisation réversibleCâblage informatiqueFibre optiqueKitchenette6 places de parking privatives
(1) loyer en Euros HT HC / m² / an (5) charges en Euros HT / m² / an
Accès : à proximité de la rocade toulousaine, parc technologique de Basso Cambo Métro : ligne A "Basso Cambo" à 250 m Bus : lignes n°8, 11, 12, 14, 21, 47, 48, 49, 50, 53, 57, 58 et 87
Surface de bureaux rénovés située au rez-de-chaussée d'un immeuble idéalement situé à proximité directe du métro dans la zone de Basso CamboPlateau cloisonnéSystème de climatisation réversibleCâblage informatiqueFibre optiqueKitchenette6 places de parking privatives
| Bâtiment | Etage | Surface | Type de locaux | Loyer(1) | Charges(5) | Disponibilité | Commentaires |
|---|---|---|---|---|---|---|---|
| LES GÉMEAUX - BAT A | RDC | 143,00 m² | Bureaux | 125,00 | 17,85 | Nous consulter | Parking : 6 places |
Voir plus
Afficher les consommations énergétiques
Localisation et transport aux alentours
Favoris
Exporter
Appeler
Contacter
Signaler cette annonce
