Depuis 2003, KEOPS Toulouse accompagne les entreprises dans leurs projets immobiliers sur toute l’aire urbaine toulousaine.Notre équipe de professionnels passionnés met à votre service sa connaissa ...
En savoir plus

383 m²
HT HC
Location bureau - 383 m²
Toulouse (31000)
Dernière mise à jour : Hier
- A LOUER -
KEOPS TOULOUSE vous propose une surface de bureaux de bon standing, idéalement située au centre ville de Toulouse, à proximité du métro et de la Gare
Métro : ligne B station "Jeanne d'Arc" Bus : lignes 15 - 23 - 42 - 44 - 45 - 70 Gare Matabiau : 5 min Aéroport : 15 min
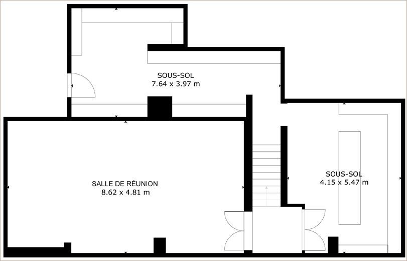
Surface de bureaux de bon standing située au rez-de-chaussée d'un immeuble en centre vile de ToulouseSurface répartie sur 3 niveaux : Rdc, R+1 et Sous-solPlateau de bon standing cloisonné : Accueil, open space, bureaux simple, bureaux doubles, salle de réunion, cuisine, archives / StockageSystème de climatisation réversible Câblage informatique (fibre optique)Parking : 3 places privatives et sécurisées (1 box fermé pouvant accueillir 2 petites voitures + 2 roues) et deux places de parking
(1) loyer en Euros HT HC / m² / an (5) charges en Euros HT / m² / an
Métro : ligne B station "Jeanne d'Arc" Bus : lignes 15 - 23 - 42 - 44 - 45 - 70 Gare Matabiau : 5 min Aéroport : 15 min
Surface de bureaux de bon standing située au rez-de-chaussée d'un immeuble en centre vile de ToulouseSurface répartie sur 3 niveaux : Rdc, R+1 et Sous-solPlateau de bon standing cloisonné : Accueil, open space, bureaux simple, bureaux doubles, salle de réunion, cuisine, archives / StockageSystème de climatisation réversible Câblage informatique (fibre optique)Parking : 3 places privatives et sécurisées (1 box fermé pouvant accueillir 2 petites voitures + 2 roues) et deux places de parking
| Surface | Type de locaux | Loyer(1) | Charges(5) | Disponibilité | Commentaires |
|---|---|---|---|---|---|
| 383,00 m² | Bureaux | 195,00 | 41,77 | Immédiate | Parking : 3 places |
Voir plus
Afficher les consommations énergétiques
Localisation et transport aux alentours
- St Cyprien - République172m (3min à pied)A
Favoris
Exporter
Appeler
Contacter
Signaler cette annonce
