L’agence CBRE Lyon conseille et accompagne les chefs d’entreprise dans leurs projets immobiliers quels que soient leur taille et leur secteur d’activité. Spécialistes de la transaction de bureaux, ...
En savoir plus

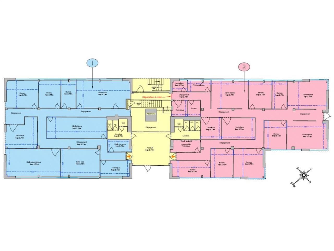
2 565 m² divisible dès 388 m²
HT HC
Location bureau - 2565 m²
Saint-Priest (69800)
Dernière mise à jour : Il y a 1 mois
Immeuble LES ALLEES DU PARC
Bureaux à vendre dans un ensemble tertiaire récent, s'inscrivant dans une démarche environnementale efficace et une maîtrise des charges d'exploitation, bien desservi par le tramway et le boulevard périphérique.
Le Grand Lyon Est a su attirer de grandes entreprises grâce à un accès privilégié de par les axes principaux (A42/43/46, Boulevard Périphérique) ainsi que par ses transports en commun. De nombreuses sociétés de l'ingénierie industrielle, des sciences de l'environnement, des services et des biotechnologies ont fait le choix de s'y implanter. Cette zone s'étant sur les communes de Vaulx-en-Velin, Saint-Priest, Bron, Meyzieu, Genas, Chassieu.
Impôt Foncier : 20 €/m²/an
Prestations :
Accessibilité:
Route A46, Boulevard Périphérique, Rocade Est
Bus 93 arrêt "Le Parc Technologique"
Aeroport Lyon Saint-Exupéry à 15 min, aéroport de Bron à 5 min
Tramway Ligne T2 arrêt "Le Parc Technologique"
Les informations sur les risques auxquels ce bien est exposé sont disponibles sur le site Géorisques : www.georisques.gouv.fr
Bureaux à vendre dans un ensemble tertiaire récent, s'inscrivant dans une démarche environnementale efficace et une maîtrise des charges d'exploitation, bien desservi par le tramway et le boulevard périphérique.
Le Grand Lyon Est a su attirer de grandes entreprises grâce à un accès privilégié de par les axes principaux (A42/43/46, Boulevard Périphérique) ainsi que par ses transports en commun. De nombreuses sociétés de l'ingénierie industrielle, des sciences de l'environnement, des services et des biotechnologies ont fait le choix de s'y implanter. Cette zone s'étant sur les communes de Vaulx-en-Velin, Saint-Priest, Bron, Meyzieu, Genas, Chassieu.
| Étage | Type | Surfaces | Dispo | Loyer | Charges | Type de bailRév. annuelle |
|---|---|---|---|---|---|---|
| RDC | Bureaux | 425 | Immédiate | 130 | ||
| RDC | Bureaux | 388 | Immédiate | 130 | ||
| 1 | Bureaux | 453 | Immédiate | 130 | ||
| 1 | Bureaux | 416 | Immédiate | 130 | ||
| 2 | Bureaux | 466 | Immédiate | 130 m²/an HT HC | ||
| 2 | Bureaux | 417 | Immédiate | 130 m²/an HT HC | ||
| Parkings | Immédiate |
Impôt Foncier : 20 €/m²/an
Prestations :
- Chauffage et rafraîchissement des bureaux de type VRV à l'aide d'unités de traitement d'air en faux-plafond à raison d'une unité environ par zone de 50 m².
- Revêtement de sol : moquette bouclée en dalles interchangeables (50x50 cm) aspect velours traitées antistatiques (U3P3).
- Faux-plafonds en dalles de fibre minérale (60x60 cm).
- Hauteur sous plafond : 2,70 m.
- Eclairage par luminaires encastrés 4x14 W basse luminance assurant un éclairage moyen de 200 Lux à 1 m du sol sur plateau libre.
- Eclairage graduable.
- Ascenseur
- 5 bornes électriques à l'arrière du bâtiment B accessibles à tous les occupants et visiteurs
- Ratio parking : 1/28 m²
- 14 parkings pour les lots 01, 02, 03 et 05
- 15 parkings pour le lot 04
- 19 parkings pour le lot 06
- Dans bâtiment B : Présence d'un service hospitality les lundis, mardis et jeudis à la pause méridienne (gestion des colis, pressing, cordonnerie, couture, réparations et entretien voitures, loisirs, bien-être, tâches administratives, service coursier, etc...) + service de restauration boulangère (plats chauds, sandwichs, quiches, salades, etc...)
- Surface RDC : 813 m²
Accessibilité:
Route A46, Boulevard Périphérique, Rocade Est
Bus 93 arrêt "Le Parc Technologique"
Aeroport Lyon Saint-Exupéry à 15 min, aéroport de Bron à 5 min
Tramway Ligne T2 arrêt "Le Parc Technologique"
Les informations sur les risques auxquels ce bien est exposé sont disponibles sur le site Géorisques : www.georisques.gouv.fr
Voir plus
Afficher les consommations énergétiques
Localisation et transport aux alentours
Favoris
Exporter
Appeler
Contacter
Signaler cette annonce
