Conseil en immobilier d'entreprise, Cushman & Wakefield est un acteur incontournable au rayonnement international. Cushman & Wakefield offre des solutions dans toutes les étapes que comporte un p ...
En savoir plus



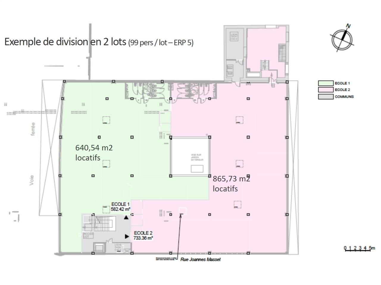
1 571 m² divisible dès 641 m²
HT HC
GREEN FACTORY - Location bureau - 1571 m²
Lyon 9 (69009)
Dernière mise à jour : Il y a 5 mois
Vos futurs bureaux situés au coeur de Vaise
Immeuble GREEN FACTORY
Cushman & Wakefield vous propose des bureaux à Vaise 69009 Lyon
Au coeur du parc d'affaires Joannes Masset,
Le bâtiment industriel baptisé "Green Factory" a subi une réhabilitation complète pour offrir un espace de bureaux au style loft avec des volumes extraordinaires.
Ce projet a été récompensé du Grand Prix de la Rénovation Durable lors des Green Solutions Awards 2021, dans le cadre de la COP26.
Ces bureaux, qui peuvent être divisés, proposent de vastes espaces avec de grandes baies vitrées, une très belle hauteur sous plafond et un spacieux patio intérieur.
Le boulevard périphérique Nord ainsi que l'autoroute A6 sont joignables en quelques minutes.
Les informations sur les risques auxquels ce bien est exposé sont disponibles sur le site Géorisques : www.georisques.gouv.fr
Impôt Foncier : 5,48 €/HT/m²/an
Régime Fiscal : T.V.A.
Dépôt de garantie : 3 mois de loyer HT/HC
Paiement Loyer : Trimestriel
Honoraires : 15 % HT du loyer annuel HT/HC à la charge du preneur.
Prestations :
Accessibilité:
Métro Gorge de Loup ou Valmy (ligne D)
Bus Lignes 66-19
SNCF Ter Vaise à 7 mn en voiture
Accès routier Accès A6 (visibilité depuis l'autoroute)
vélo'v Velo'V à quelques mètres
Les informations sur les risques auxquels ce bien est exposé sont disponibles sur le site Géorisques : www.georisques.gouv.fr
Immeuble GREEN FACTORY
Cushman & Wakefield vous propose des bureaux à Vaise 69009 Lyon
Au coeur du parc d'affaires Joannes Masset,
Le bâtiment industriel baptisé "Green Factory" a subi une réhabilitation complète pour offrir un espace de bureaux au style loft avec des volumes extraordinaires.
Ce projet a été récompensé du Grand Prix de la Rénovation Durable lors des Green Solutions Awards 2021, dans le cadre de la COP26.
Ces bureaux, qui peuvent être divisés, proposent de vastes espaces avec de grandes baies vitrées, une très belle hauteur sous plafond et un spacieux patio intérieur.
Le boulevard périphérique Nord ainsi que l'autoroute A6 sont joignables en quelques minutes.
Les informations sur les risques auxquels ce bien est exposé sont disponibles sur le site Géorisques : www.georisques.gouv.fr
| Étage | Type | Surfaces | Dispo | Loyer | Charges | Type de bailRév. annuelle |
|---|---|---|---|---|---|---|
| R+1 | Bureaux | 865,73 | 180 HT/HC/m²/an | 35,03 HT/m²/an | 6-9 ansSur l'indice ILAT | |
| R+1 | Bureaux | 640,54 | 180 HT/HC/m²/an | 35,03 HT/m²/an | 6-9 ansSur l'indice ILAT | |
| R+1 | Patio | 65 | 90 HT/HC/m²/an | 6-9 ansSur l'indice ILAT | ||
| pkg Ext | Parkings | 1000 HT/HC/U/an | 6-9 ansSur l'indice ILAT |
Impôt Foncier : 5,48 €/HT/m²/an
Régime Fiscal : T.V.A.
Dépôt de garantie : 3 mois de loyer HT/HC
Paiement Loyer : Trimestriel
Honoraires : 15 % HT du loyer annuel HT/HC à la charge du preneur.
Prestations :
- Immeuble entièrement restructuré code du travail
- Un immeuble adaptable en ERP 5
- Capacitaire d' 1 pers./10 m² SUP
- Salle de réunion
- Contrôle d'accès
- Accès PMR
- Sanitaires commun
- Label HQE PEQA
- Certification visée : NF HQE Bâtiment tertiaire Performance Energétique et Qualité Associées
- Bâtiment indépendant
- Contrôle d'accès
- Bureaux type LOFT
- Open space
- Terrasse indépendante : 43 m²
- Patio central
- Grandes baies vitrées
- Monitoring du bâtiment ( consommations d'énergies : air, température, etc..)
- Ventilation double flux
- Chauffage et climatisation collectifs
- Belle hauteur libre : 4.5 m
- Sol moquette, béton ou parquet
- Faux plancher technique
- Filtration de l'air entrant (allergènes et polluant)
- Capacitaire équipements techniques : 1 pers / 10 m²
- Immeuble indépendant
Accessibilité:
Métro Gorge de Loup ou Valmy (ligne D)
Bus Lignes 66-19
SNCF Ter Vaise à 7 mn en voiture
Accès routier Accès A6 (visibilité depuis l'autoroute)
vélo'v Velo'V à quelques mètres
Les informations sur les risques auxquels ce bien est exposé sont disponibles sur le site Géorisques : www.georisques.gouv.fr
Voir plus
Afficher les consommations énergétiques
Localisation et transport aux alentours
Favoris
Exporter
Appeler
Contacter
Signaler cette annonce










