Conseil en immobilier d'entreprise, Cushman & Wakefield est un acteur incontournable au rayonnement international. Cushman & Wakefield offre des solutions dans toutes les étapes que comporte un p ...
En savoir plus



357 m²
HT HC
Location bureau - 357 m²
Lyon 7 (69007)
Dernière mise à jour : Il y a 3 jours
Bureaux à vendre Lyon 7ème!
Cushman & Wakefield vous propose à la vente ou à la location un plateau de bureaux idéalement situé dans le 7ème arrondissement de Lyon, au rue Marcel Mérieux, à proximité immédiate du métro Debourg (ligne B) et de nombreuses commodités. Cet emplacement stratégique bénéficie d'un environnement dynamique mêlant activités tertiaires, établissements de santé, commerces et logements récents.
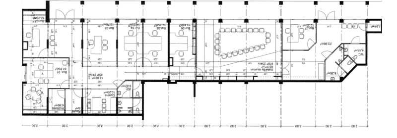
D'une superficie totale de 357 m² en rez-de-chaussée, les locaux disposent d'une belle visibilité grâce à un linéaire vitrine important et à deux accès indépendants en façade. Les espaces sont entièrement cloisonnés et câblés, combinant bureaux individuels, open space et salle de réunion, pour offrir une organisation de travail souple et fonctionnelle. 9 places de parking complètent ce bien en sous-sol.
Ce bien conviendra parfaitement à une société souhaitant s'implanter dans un secteur en plein développement ou à une activité de santé souhaitant bénéficier d'une accessibilité optimale et d'un cadre professionnel de qualité.
Impôt Foncier : 15,8 €//m²/an
Dépôt de garantie : 3 mois de loyer HT
Paiement Loyer : Trimestriel
Honoraires : 15 % HT du loyer annuel HT/HC à la charge du preneur.
Information sur le Bail :
Loyer parking: 1500 euros HT HC/unité/an
Prestations :
Accessibilité:
Métro Debourg (ligne D)
Bus Lignes C34-BR60-C64
Tram T1-T6
SNCF Jean Macé à 10 mn
SNCF Perrache à 10 mn
SNCF Part-Dieu à 25 mn
Les informations sur les risques auxquels ce bien est exposé sont disponibles sur le site Géorisques : www.georisques.gouv.fr
Cushman & Wakefield vous propose à la vente ou à la location un plateau de bureaux idéalement situé dans le 7ème arrondissement de Lyon, au rue Marcel Mérieux, à proximité immédiate du métro Debourg (ligne B) et de nombreuses commodités. Cet emplacement stratégique bénéficie d'un environnement dynamique mêlant activités tertiaires, établissements de santé, commerces et logements récents.
D'une superficie totale de 357 m² en rez-de-chaussée, les locaux disposent d'une belle visibilité grâce à un linéaire vitrine important et à deux accès indépendants en façade. Les espaces sont entièrement cloisonnés et câblés, combinant bureaux individuels, open space et salle de réunion, pour offrir une organisation de travail souple et fonctionnelle. 9 places de parking complètent ce bien en sous-sol.
Ce bien conviendra parfaitement à une société souhaitant s'implanter dans un secteur en plein développement ou à une activité de santé souhaitant bénéficier d'une accessibilité optimale et d'un cadre professionnel de qualité.
| Étage | Type | Surfaces | Dispo | Loyer | Charges | Type de bailRév. annuelle |
|---|---|---|---|---|---|---|
| RdC | Bureaux | 357 | 180 HT/HC/m²/an | 4,17 HT/m²/an | 3-6-9 ans |
Impôt Foncier : 15,8 €//m²/an
Dépôt de garantie : 3 mois de loyer HT
Paiement Loyer : Trimestriel
Honoraires : 15 % HT du loyer annuel HT/HC à la charge du preneur.
Information sur le Bail :
Loyer parking: 1500 euros HT HC/unité/an
Prestations :
- ERP : ERP possible
- Les autres lots de l'immeuble sont de l'habitation
- Contrôle d'accès extérieur
- Volets roulants électriques sur toutes les fenêtres
- Pas de parties communes car le local est indépendant
- Locaux en bon état
- Un mix entre open space et bureaux fermés
- 2 accès sur rue
- Espace d'accueil
- Climatisation réversible
- Interphone
- Espace cuisine
- Câblage CFO/CFA
- Baie de brassage
- Sanitaires privatifs
- Accès PMR
- 9 places de parking en sous-sol
- Surface RDC : 357 m²
Accessibilité:
Métro Debourg (ligne D)
Bus Lignes C34-BR60-C64
Tram T1-T6
SNCF Jean Macé à 10 mn
SNCF Perrache à 10 mn
SNCF Part-Dieu à 25 mn
Les informations sur les risques auxquels ce bien est exposé sont disponibles sur le site Géorisques : www.georisques.gouv.fr
Voir plus
Afficher les consommations énergétiques
Localisation et transport aux alentours
Favoris
Exporter
Appeler
Contacter
Signaler cette annonce










