Conseil en immobilier d'entreprise, Cushman & Wakefield est un acteur incontournable au rayonnement international. Cushman & Wakefield offre des solutions dans toutes les étapes que comporte un p ...
En savoir plus



85 m²
HT HC
Location bureau - 85 m²
Lyon 3 (69003)
Dernière mise à jour : Il y a 2 jours
Bureaux 85m² à louer - Coeur PART-DIEU
Cushman & Wakefield Lyon vous propose à la location cette offre rare.
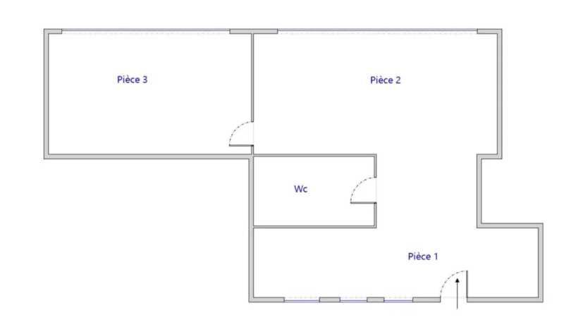
bureaux lumineux et fonctionnels de 85 m² idéalement situés au coeur du quartier d'affaires de la Part-Dieu, à Lyon (3e arrondissement). Cette adresse stratégique, rue des Cuirassiers, offre un environnement de travail dynamique, bien desservi et entouré de toutes les commodités nécessaires au quotidien d'une entreprise. La gare SNCF Part-Dieu se trouve à seulement 5 minutes à pied, tout comme les lignes de métro B, de tramways T1, T3 et T4, et de nombreuses lignes de bus, facilitant ainsi l'accès pour vos collaborateurs et clients.
Les bureaux, non divisibles, sont aménagés au sein d'un immeuble de standing sécurisé, doté d'un gardien, d'un interphone, d'un digicode et d'un système Vigik. Le bâtiment bénéficie d'un agréable jardin intérieur, aménagé sur un patio entre le boulevard Vivier Merle et la rue des Cuirassiers, propice à des pauses calmes et ressourçantes.
Les abords immédiats sont animés par une offre variée de commerces et de restaurants (Ninkasi, cuisine japonaise, healthy, etc.), renforçant l'attractivité du secteur.
Le local, en parfait état, offre un confort de travail optimal avec une accessibilité PMR complète, un WC privatif adapté, une climatisation et un chauffage individuel, un éclairage LED, ainsi qu'une baie de brassage avec courants fort et faible déjà installés. Un local à vélo est également à disposition pour les usagers.
Le loyer annuel s'élève à 23 600 euros HT HC, soit 277 euros/m²/an HT HC. À cela s'ajoutent des provisions pour charges de 1 650 euros HT/an et un impôt foncier de 1 400 euros HT/an. Le bail commercial est conclu pour une durée classique de 3-6-9 ans avec un dépôt de garantie correspondant à trois mois de loyer. Les loyers sont payables trimestriellement et indexés sur l'indice ILAT. Les honoraires de commercialisation s'élèvent à 15 % HT du loyer annuel HT HC à la charge du preneur.
85m² de bureaux au coeur du quartier de la part-dieu.
A moins de 2mn de la gare Part-Dieu.
Impôt Foncier : 1400 €//HT/an
Régime Fiscal : T.V.A.
Dépôt de garantie : 3 mois de loyer HT/HC
Paiement Loyer : Trimestriel
Honoraires : 15 % HT du loyer annuel HT/HC à la charge du preneur.
Prestations :
Accessibilité:
Métro Part-Dieu (ligne B)
Tram Part-Dieu (T1-T3-T4)
SNCF SNCF Part-Dieu à 5 min à pied
Bus Nombreuses lignes de bus
Les informations sur les risques auxquels ce bien est exposé sont disponibles sur le site Géorisques : www.georisques.gouv.fr
Cushman & Wakefield Lyon vous propose à la location cette offre rare.
bureaux lumineux et fonctionnels de 85 m² idéalement situés au coeur du quartier d'affaires de la Part-Dieu, à Lyon (3e arrondissement). Cette adresse stratégique, rue des Cuirassiers, offre un environnement de travail dynamique, bien desservi et entouré de toutes les commodités nécessaires au quotidien d'une entreprise. La gare SNCF Part-Dieu se trouve à seulement 5 minutes à pied, tout comme les lignes de métro B, de tramways T1, T3 et T4, et de nombreuses lignes de bus, facilitant ainsi l'accès pour vos collaborateurs et clients.
Les bureaux, non divisibles, sont aménagés au sein d'un immeuble de standing sécurisé, doté d'un gardien, d'un interphone, d'un digicode et d'un système Vigik. Le bâtiment bénéficie d'un agréable jardin intérieur, aménagé sur un patio entre le boulevard Vivier Merle et la rue des Cuirassiers, propice à des pauses calmes et ressourçantes.
Les abords immédiats sont animés par une offre variée de commerces et de restaurants (Ninkasi, cuisine japonaise, healthy, etc.), renforçant l'attractivité du secteur.
Le local, en parfait état, offre un confort de travail optimal avec une accessibilité PMR complète, un WC privatif adapté, une climatisation et un chauffage individuel, un éclairage LED, ainsi qu'une baie de brassage avec courants fort et faible déjà installés. Un local à vélo est également à disposition pour les usagers.
Le loyer annuel s'élève à 23 600 euros HT HC, soit 277 euros/m²/an HT HC. À cela s'ajoutent des provisions pour charges de 1 650 euros HT/an et un impôt foncier de 1 400 euros HT/an. Le bail commercial est conclu pour une durée classique de 3-6-9 ans avec un dépôt de garantie correspondant à trois mois de loyer. Les loyers sont payables trimestriellement et indexés sur l'indice ILAT. Les honoraires de commercialisation s'élèvent à 15 % HT du loyer annuel HT HC à la charge du preneur.
85m² de bureaux au coeur du quartier de la part-dieu.
A moins de 2mn de la gare Part-Dieu.
| Étage | Type | Surfaces | Dispo | Loyer | Charges | Type de bailRév. annuelle |
|---|---|---|---|---|---|---|
| Bureaux | 85 | Immédiate | 277 HT/HC/m²/an | 1650 HT/an | 3-6-9 ansSur l'indice ILAT |
Impôt Foncier : 1400 €//HT/an
Régime Fiscal : T.V.A.
Dépôt de garantie : 3 mois de loyer HT/HC
Paiement Loyer : Trimestriel
Honoraires : 15 % HT du loyer annuel HT/HC à la charge du preneur.
Prestations :
- ERP : 1ère catégorie
- En plein coeur du quartier d'affaires de la Part-Dieu
- Local à vélo
- Gardien, interphone, digicode et vigik
- Jardin sur un patio entre le bvd Vivier Merle et la rue des Cuirassiers
- Nombreux commerces et restaurants à proximité immédiate
- (Restaurants Ninkasi, japonais, healthy...)
- Accessibilité PMR
- WC PMR privatif
- Emplacement baie de brassage
- Installation courants fort et faible
- Chauffage / climatisation individuelle
- Éclairage LED
- Surface RDC : 0 m²
Accessibilité:
Métro Part-Dieu (ligne B)
Tram Part-Dieu (T1-T3-T4)
SNCF SNCF Part-Dieu à 5 min à pied
Bus Nombreuses lignes de bus
Les informations sur les risques auxquels ce bien est exposé sont disponibles sur le site Géorisques : www.georisques.gouv.fr
Voir plus
Afficher les consommations énergétiques
Localisation et transport aux alentours
- Gare Part-Dieu - Vivier Merle398m (6min à pied)B
- Part-Dieu - Servient399m (6min à pied)1
- Part-Dieu - Vivier Merle406m (6min à pied)1
Favoris
Exporter
Appeler
Contacter
Signaler cette annonce










