Conseil en immobilier d'entreprise, Cushman & Wakefield est un acteur incontournable au rayonnement international. Cushman & Wakefield offre des solutions dans toutes les étapes que comporte un p ...
En savoir plus



611 m²
HT HC
27 AC - Location bureau - 611 m²
Lyon 2 (69002)
Dernière mise à jour : Hier
Bureaux à louer quartier Ainay!
Immeuble 27 AC
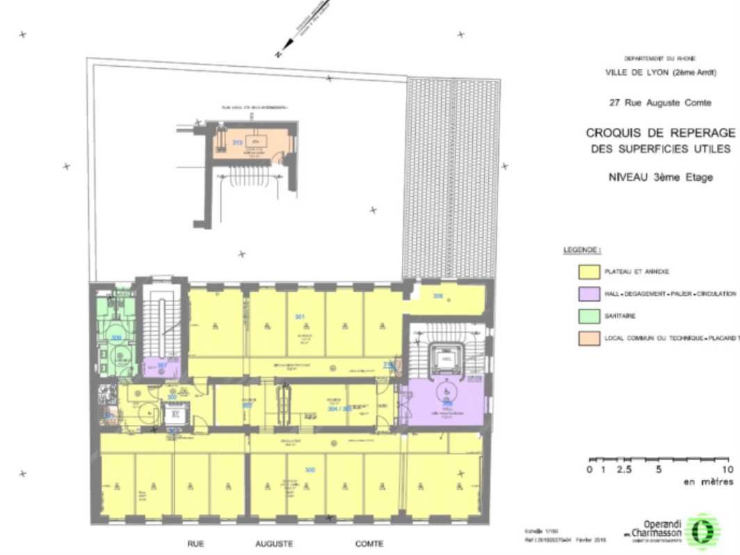
Cushman & Wakefield vous propose à la location un plateau de bureaux en duplex d'une surface totale de 611 m², répartis sur deux niveaux : 411 m² au 3? étage et 200 m² au 4? étage. Idéalement situé au coeur de la presqu'île lyonnaise, dans l'élégant hôtel particulier du 27 rue Auguste Comte. L'immeuble bénéficie d'un jardin intérieur arboré, véritable atout de convivialité et de sérénité pour vos équipes. Vous profitez ainsi d'une adresse prestigieuse, à deux pas de la place Bellecour et de toutes les commodités de l'hypercentre. L'accessibilité est optimale grâce à la proximité immédiate du métro, des transports en commun, des axes routiers, des modes doux ainsi que des quais du Rhône. L'immeuble a été pensé pour conjuguer praticité et représentativité, afin de valoriser l'image de votre entreprise et offrir un environnement de travail motivant. Des stationnements privatifs sont disponibles en sous-sol pour voitures et vélos, complétés par un espace douche et vestiaire, favorisant la mobilité et le bien-être des collaborateurs. Cet emplacement unique associe centralité, prestige et fonctionnalité, garantissant un cadre de travail d'exception au service de votre développement.
Impôt Foncier : 22,67 €//m²/an/ HT
Régime Fiscal : T.V.A.
Dépôt de garantie : 3 mois de loyer HT/HC
Paiement Loyer : Trimestriel
Honoraires : 15 % HT du loyer annuel HT/HC à la charge du preneur.
Information sur le Bail :
Les charges prévisionnelles n'incluent pas les fluides privatifs Frais de gestion : 3,5% HT du loyer annuel HT/HC
Prestations :
Accessibilité:
Métro Ampère Victor Hugo ( ligne E)
Métro (ligne A) à 2 mn à pied
Bus Lignes s1-C10-15-35-88
Tram T1-T2
SNCF Perrache à 5 mn à pied
Les informations sur les risques auxquels ce bien est exposé sont disponibles sur le site Géorisques : www.georisques.gouv.fr
Immeuble 27 AC
Cushman & Wakefield vous propose à la location un plateau de bureaux en duplex d'une surface totale de 611 m², répartis sur deux niveaux : 411 m² au 3? étage et 200 m² au 4? étage. Idéalement situé au coeur de la presqu'île lyonnaise, dans l'élégant hôtel particulier du 27 rue Auguste Comte. L'immeuble bénéficie d'un jardin intérieur arboré, véritable atout de convivialité et de sérénité pour vos équipes. Vous profitez ainsi d'une adresse prestigieuse, à deux pas de la place Bellecour et de toutes les commodités de l'hypercentre. L'accessibilité est optimale grâce à la proximité immédiate du métro, des transports en commun, des axes routiers, des modes doux ainsi que des quais du Rhône. L'immeuble a été pensé pour conjuguer praticité et représentativité, afin de valoriser l'image de votre entreprise et offrir un environnement de travail motivant. Des stationnements privatifs sont disponibles en sous-sol pour voitures et vélos, complétés par un espace douche et vestiaire, favorisant la mobilité et le bien-être des collaborateurs. Cet emplacement unique associe centralité, prestige et fonctionnalité, garantissant un cadre de travail d'exception au service de votre développement.
| Étage | Type | Surfaces | Dispo | Loyer | Charges | Type de bailRév. annuelle |
|---|---|---|---|---|---|---|
| R+4 | Bureaux | 200 | 350 HT/HC/m²/an | 44,43 HT/m²/an | 6-9 ansSur l'indice ILAT | |
| R+3 | Bureaux | 411 | 350 HT/HC/m²/an | 44,43 HT/m²/an | 6-9 ansSur l'indice ILAT | |
| SS | Parkings | 2500 HT/HC/place/an | 103 HT/an | 6-9 ansSur l'indice ILAT |
Impôt Foncier : 22,67 €//m²/an/ HT
Régime Fiscal : T.V.A.
Dépôt de garantie : 3 mois de loyer HT/HC
Paiement Loyer : Trimestriel
Honoraires : 15 % HT du loyer annuel HT/HC à la charge du preneur.
Information sur le Bail :
Les charges prévisionnelles n'incluent pas les fluides privatifs Frais de gestion : 3,5% HT du loyer annuel HT/HC
Prestations :
- Immeuble de très bon standing
- Hall d'entrée
- Accès sécurisé
- Visiophone
- Accès PMR
- Jardin intérieur aménagé
- Plateau de bureaux entièrement rénové
- Belle hauteur sous plafond
- Faux plafond acoustique en plâtre perforé calepiné avec les luminaires
- Pavé LED
- Câblage RJ 45 en faux-plancher
- Ascenseur privatif
- Climatisation double flux
- Rafraîchissement par ventilo-convecteurs (système VRV 3 tubes)
- Possibilité de louer 4 locaux de réserves de 12 à 17 m2
Accessibilité:
Métro Ampère Victor Hugo ( ligne E)
Métro (ligne A) à 2 mn à pied
Bus Lignes s1-C10-15-35-88
Tram T1-T2
SNCF Perrache à 5 mn à pied
Les informations sur les risques auxquels ce bien est exposé sont disponibles sur le site Géorisques : www.georisques.gouv.fr
Voir plus
Afficher les consommations énergétiques
Localisation et transport aux alentours
Favoris
Exporter
Appeler
Contacter
Signaler cette annonce










