Depuis 2003, KEOPS Toulouse accompagne les entreprises dans leurs projets immobiliers sur toute l’aire urbaine toulousaine.Notre équipe de professionnels passionnés met à votre service sa connaissa ...
En savoir plus

138 m²
HT HC
Location bureau - 138 m²
L'Union (31240)
Dernière mise à jour : Hier
- A LOUER -
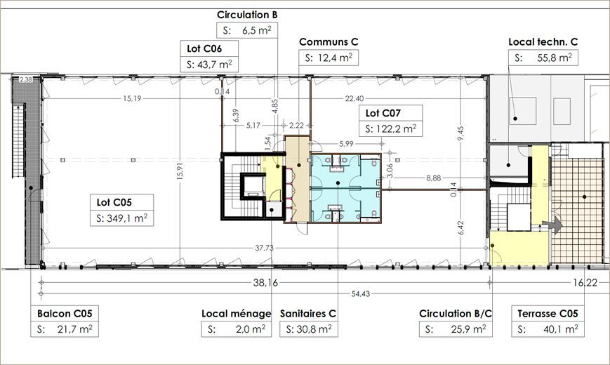
Surface de bon standing à usage de bureaux idéalement située dans un immeuble neuf à proximité de la zone commerciale de Balma/l'Union
Au sein de l'immeuble LE CALYS, programme de grand standing idéalement situé à l'Union, Nous vous proposons une surface de bureaux d'environ 138 m² située au 2ème étage de l'immeubleSurface de bureaux de très bon standing Agencement du plateau : 3 grands bureaux / open space ainsi qu'une cuisineSanitaire dans les parties communesSystème de climatisation réversible Câblage informatique (fibre optique) Parking : 3 places privatives Vestiaires et douches situées dans le parking
(1) loyer en Euros HT HC / m² / an (5) charges en Euros HT / m² / an
Au sein de l'immeuble LE CALYS, programme de grand standing idéalement situé à l'Union, Nous vous proposons une surface de bureaux d'environ 138 m² située au 2ème étage de l'immeubleSurface de bureaux de très bon standing Agencement du plateau : 3 grands bureaux / open space ainsi qu'une cuisineSanitaire dans les parties communesSystème de climatisation réversible Câblage informatique (fibre optique) Parking : 3 places privatives Vestiaires et douches situées dans le parking
| Bâtiment | Libellé | Etage | Surface | Type de locaux | Loyer(1) | Charges(5) | Disponibilité | Commentaires |
|---|---|---|---|---|---|---|---|---|
| LE CALYS - HALL C | Lot C07 | 2ème | 138,59 m² | Bureaux | 195,00 | 25,00 | Immédiate | Parking : 3 places en sous-sol |
Voir plus
Afficher les consommations énergétiques
Localisation et transport aux alentours
Favoris
Exporter
Appeler
Contacter
Signaler cette annonce
