Créée en 2014, BIE - Bordeaux Immobilier Entreprises est composée d’une équipe de consultants confirmés dans le domaine de la location et la vente des différents types d’actifs immobiliers (Bureau ...
En savoir plus

251 m²
HT HC
EVOLUTION - Location bureau - 251 m²
Bruges (33520)
Dernière mise à jour : Hier
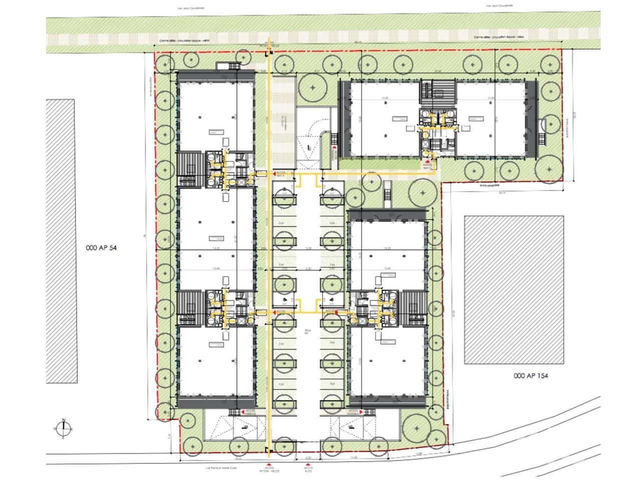
Immeuble EVOLUTION
Situé sur la zone d'activités du Parc de Chavailles, le programme neuf EVOLUTION est composé de 3 bâtiments aux prestations haut de gamme en r+2 sur site clos et sécurisé. BIE vous propose trois plateaux de 250 m² aménagés non cloisonnés avec terrasse privative.
Le site bénéficie également de nombreuses places de parking.
Impôt Foncier : 13,66 €/HT/m²/an
Régime Fiscal : T.V.A.
Dépôt de garantie : 3 mois de loyer HT/HC
Honoraires : 15 % HT du loyer annuel HT à la charge du Preneur
Prestations :
Accessibilité:
Tramway Ligne C - Aubiers
Tramway Ligne C - La Vache
Bus Ligne 33
Bus Ligne 35
Sortie rocade Sortie 5
Les informations sur les risques auxquels ce bien est exposé sont disponibles sur le site Géorisques : www.georisques.gouv.fr
Situé sur la zone d'activités du Parc de Chavailles, le programme neuf EVOLUTION est composé de 3 bâtiments aux prestations haut de gamme en r+2 sur site clos et sécurisé. BIE vous propose trois plateaux de 250 m² aménagés non cloisonnés avec terrasse privative.
Le site bénéficie également de nombreuses places de parking.
| Étage | Type | Surfaces | Dispo | Loyer | Charges | Type de bailRév. annuelle |
|---|---|---|---|---|---|---|
| RDC | Bureaux | 251 | Immédiate | 160 HT/HC/m²/an | 41,3 m²/an HT | 3-6-9 ansILAT Indice des Loyers des Activités Tertiaires |
Impôt Foncier : 13,66 €/HT/m²/an
Régime Fiscal : T.V.A.
Dépôt de garantie : 3 mois de loyer HT/HC
Honoraires : 15 % HT du loyer annuel HT à la charge du Preneur
Prestations :
- Bâtiments norme RT 2012 et ERP 5ème catégorie type W
- Label BREAM GOOD
- Structure béton (poteaux-poutres-dalles)
- HSP 2,65m
- Façade équipées de brises-soleil verticaux ou horizontaux (suivant exposition)
- Chaque plateau dispose d'une grande terrasse privative
- Climatisation réversible en faux plafonds VRV 3 tubes
- VMC double flux
- Bureaux non cloisonnés
- Réservation arrivée d'eau/évacuation sur chaque plateau pour la création d'un point d'eau
- Sanitaires communs
- Ascenseur
- Bâtiments reliés au réseau fibre optique
- Loyer parking intérieur : 1 000 euros/u/an
- Loyer parking extérieur : 500 euros/u/an
- Surface RDC : 251 m²
Accessibilité:
Tramway Ligne C - Aubiers
Tramway Ligne C - La Vache
Bus Ligne 33
Bus Ligne 35
Sortie rocade Sortie 5
Les informations sur les risques auxquels ce bien est exposé sont disponibles sur le site Géorisques : www.georisques.gouv.fr
Voir plus
Afficher les consommations énergétiques
Localisation et transport aux alentours
Favoris
Exporter
Appeler
Contacter
Signaler cette annonce
