L''agence BNP Paribas Real Estate est présente à Bordeaux depuis 40 ans. Elle accompagne les investisseurs et les entreprises dans chaque projet d''agrandissement, d''acquisition, de location et de ...
En savoir plus

NOTASIE - Location bureau - 1271 m²
BNP Paribas Real Estate vous propose à la location un immeuble de bureaux récent situé au coeur du quartier Ravezies, à l'ouest de Bordeaux. Idéalement implanté au pied de la place Ravezies, l'immeuble bénéficie d'une excellente accessibilité et d'un environnement tertiaire dynamique, avec la proximité immédiate des transports, des commerces et des services.
Un immeuble fonctionnel et lumineux
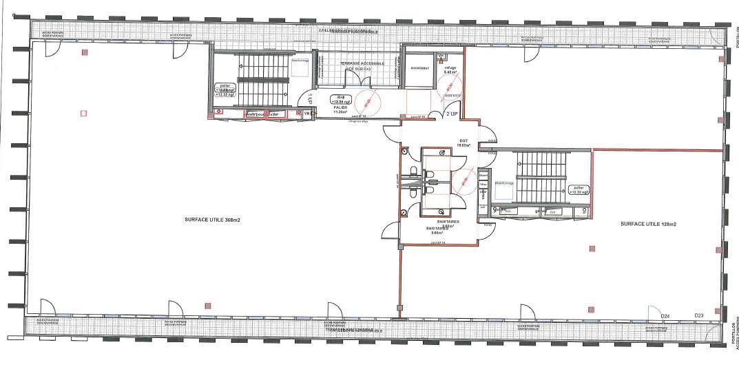
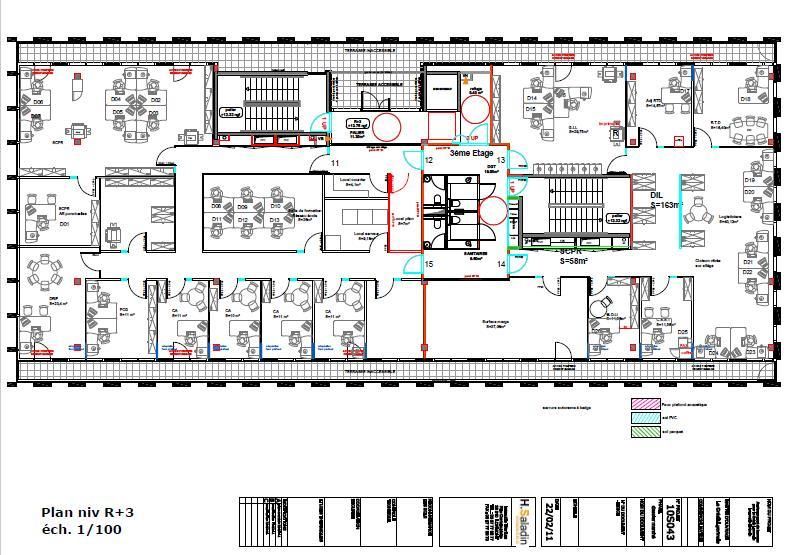
Le btiment développe une surface d'environ 1 900 m², répartie entre une agence commerciale en rez-de-chaussée et trois étages de bureaux aménagés.
Prestations proposées :
Bureaux cloisonnés et open space
Salle de réunion et cuisine
Climatisation double flux
Fibre optique
Ascenseur
Accès PMR (personnes à mobilité réduite)
Cet immeuble récent réunit toutes les conditions d'un btiment tertiaire fonctionnel, pensé pour le confort et la performance de vos collaborateurs.
Un emplacement stratégique à Bordeaux Ravezies
L'immeuble se situe dans un secteur très recherché, bénéficiant d'une excellente connexion aux infrastructures de transport :
Tramway ligne C arrêt Place Ravezies au pied de l'immeuble
Lignes de bus 7, 45, 46 à proximité immédiate
Station V3 (vélo) à moins de 2 minutes
Accès rapide aux boulevards et à la rocade
A 10 minutes en tramway du centre-ville de Bordeaux
Le quartier est également doté de nombreux restaurants, hôtels, commerces et services, favorisant la qualité de vie au travail.
Disponible immédiatement Venez découvrir cet immeuble de bureaux à fort potentiel, idéal pour les entreprises souhaitant s'installer dans un secteur visible, accessible et dynamique.
Contact : 05 56 44 09 12
Découvrez d'autres bureaux disponibles à proximité :
Honoraires: 15% HT du loyer HT/HC. à la signature du bail
| Fiche technique du bien | |
|---|---|
| Bus | Lignes 7, 9, 15 et 32 |
| Tramway | C RAVEZIES |
| Etat de l'immeuble | Rénové |
| Etat des locaux | Rénové |
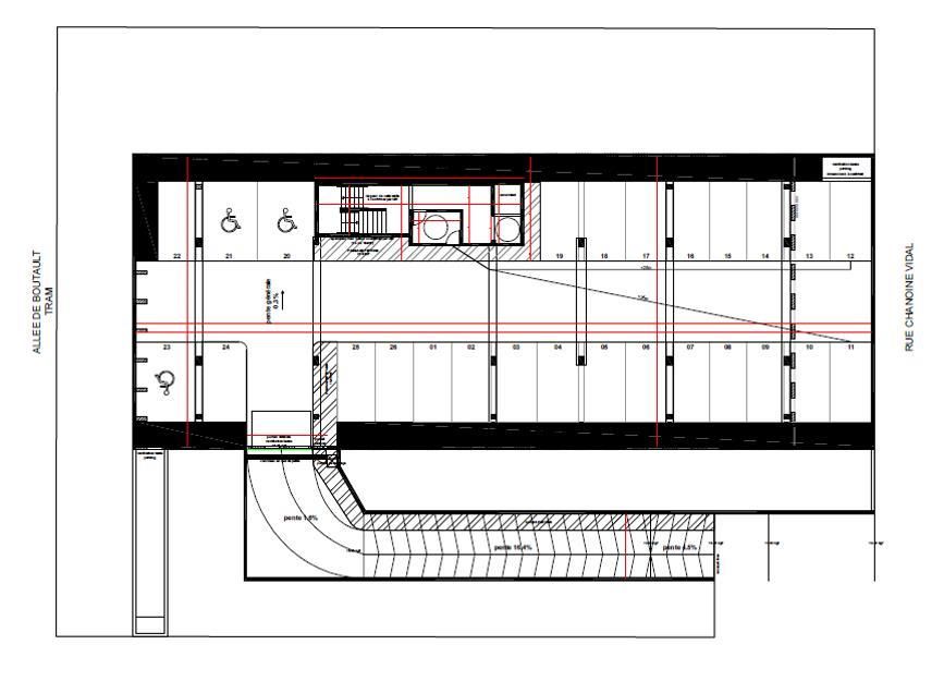
| Parking(s) | Oui |
| Immeuble indépendant | Oui |
| Climatisation | Réversible |
| Environnement de proximité | au pied du tramway |
| Ascenseur(s) | 1 |
| Hall d'accueil | Collectif |
| Aménagement des bureaux | Espaces Ouverts |
| Faux plafond | Dal. fibres minéral. |
| Sol bureaux | Moquette |
| Sanitaire(s) | Privatif(s) |
Surfaces divisibles : 3
| Surface | LoyerHT/HC/m²/an | Étage / Batiment | Infos complémentaires |
| 623 m² | N.C | 2 | R+2 |
| 234 m² | N.C | 3 | R+3 |
| 414 m² | N.C | 4 | R+4 - Lots 41, 42 et 43 |
Localisation et transport aux alentours
- Les Aubiers771m (12min à pied)C










