L’agence CBRE Bordeaux conseille et accompagne les chefs d’entreprise dans leurs projets immobiliers quels que soient leur taille et leur secteur d’activité. Spécialistes de la transaction de burea ...
En savoir plus

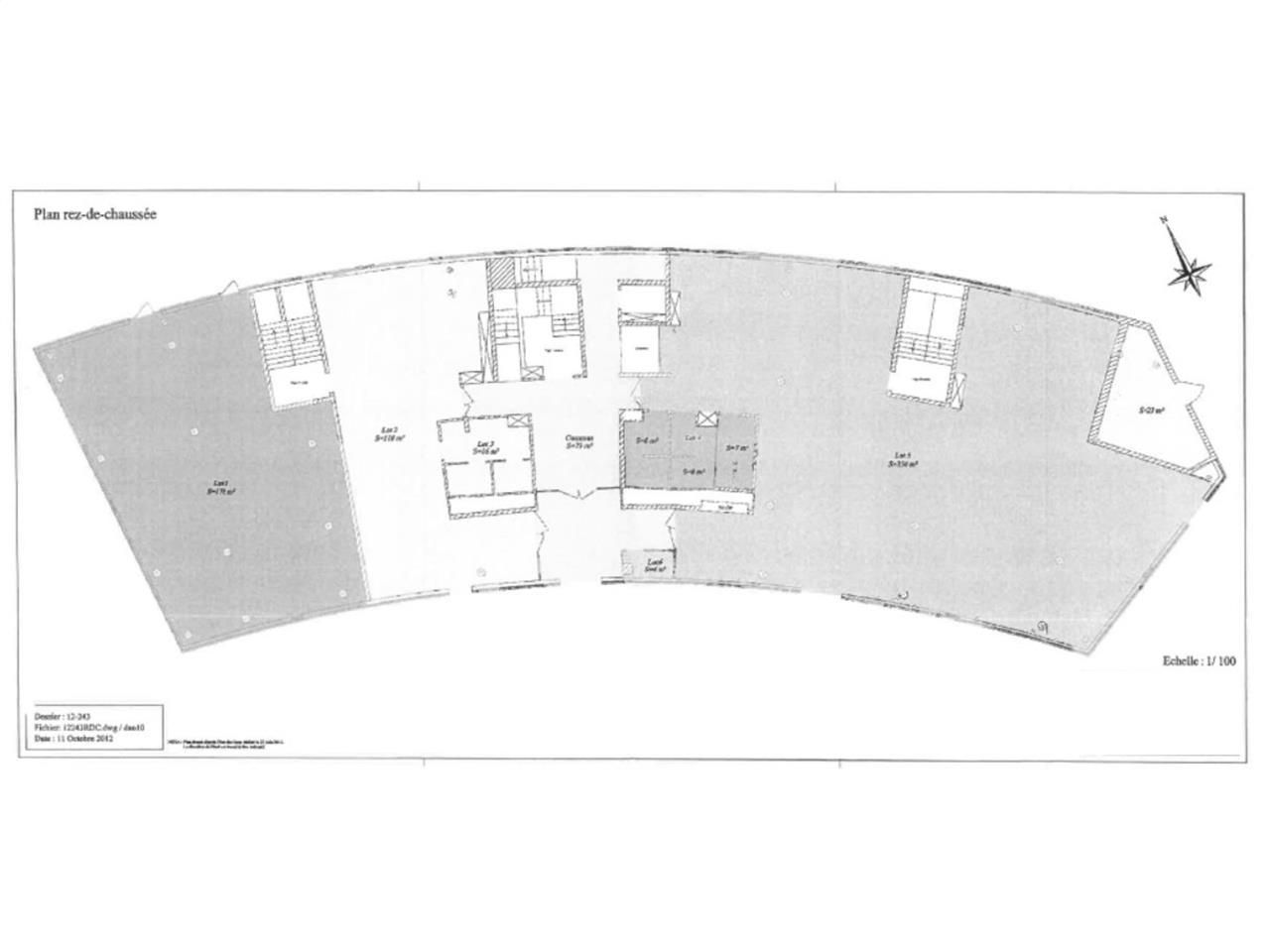
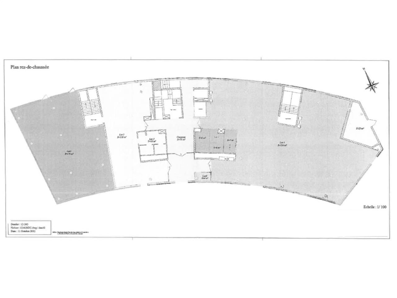
4 121 m² divisible dès 1 000 m²
HT HC
Location bureau - 4121 m²
Bordeaux (33000)
Dernière mise à jour : Il y a 8 mois
CBRE vous propose un immeuble indépendant à louer faisant l'objet d'une rénovation lourde classé ERP 2 type R. Idéal pour un futur campus au pied du tramway ligne C menant directement au centre-ville de Bordeaux et à la Gare Saint Jean. Ces bureaux à louer bénéficient de l'ensemble des services à proximité : loisirs, restaurants, hôtels et accès au centre-ville en 10 min.
Pour plus d'informations, n'hésitez pas à nous contacter au 05 33 06 27 84.
Impôt Foncier : 14,26 €/m²/an HT
Régime Fiscal : T.V.A.
Dépôt de garantie : 3 mois de loyer HT/HC
Prestations :
Accessibilité:
Tramway Ligne C - Arrêt "Place Ravezies"
Bus Lignes 7, 9, 27, 53 & 82 - Arrêt "Place Ravezies"
Route Rocade sortie n°4B
SNCF Bordeaux Saint-Jean à 5,7km
Aeroport Bordeaux-Mérignac à 14,3km
Les informations sur les risques auxquels ce bien est exposé sont disponibles sur le site Géorisques : www.georisques.gouv.fr
Pour plus d'informations, n'hésitez pas à nous contacter au 05 33 06 27 84.
| Étage | Type | Surfaces | Dispo | Loyer | Charges | Type de bailRév. annuelle |
|---|---|---|---|---|---|---|
| Bureaux | 4121,47 | Septembre 2026 | 200 m²/an HT HC | 49,1 HT/m²/an | 3-6-9 ansIndice ILAT |
Impôt Foncier : 14,26 €/m²/an HT
Régime Fiscal : T.V.A.
Dépôt de garantie : 3 mois de loyer HT/HC
Prestations :
- Immeuble entièrement rénové prêt à cloisonner classé ERP 2 type R
- Sol
- Faux plafond
- Luminaires LED
- CVC
- Ascenseurs
- Parkings aériens et en sous-sol de l'immeuble
- extérieur et en sous-sol
Accessibilité:
Tramway Ligne C - Arrêt "Place Ravezies"
Bus Lignes 7, 9, 27, 53 & 82 - Arrêt "Place Ravezies"
Route Rocade sortie n°4B
SNCF Bordeaux Saint-Jean à 5,7km
Aeroport Bordeaux-Mérignac à 14,3km
Les informations sur les risques auxquels ce bien est exposé sont disponibles sur le site Géorisques : www.georisques.gouv.fr
Voir plus
Afficher les consommations énergétiques
Favoris
Exporter
Appeler
Contacter
Signaler cette annonce










