RCG Bordeaux est un cabinet de conseil en immobilier d'entreprise est située au cœur du quartier des Chartrons au 107 cours Balguerie Stuttenberg à Bordeaux. Cette agence propose un large choix de ...
En savoir plus

354 m²
HT HC
Location bureau - 354 m²
Bordeaux (33000)
Dernière mise à jour : Hier
A LOUER - LOCAUX COMMERCIAUX 353 M² - BORDEAUX CHARTRONS
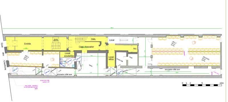
Quai des Chartrons, au sein d'un ancien chai réhabilité, RCG vous propose à la location une surface commerciale de plain-pied d'environ 353 m² à usage de bureaux / commerces.
Possibilité de normes ERP 5.
Idéal centre de formation ou bar à vin.
Impôt Foncier : 6059 €/an HT
Régime Fiscal : T.V.A.
Dépôt de garantie : 3 mois de loyer HT/ HC
Honoraires : 15% HT du loyer annuel HT/HC à la charge du Preneur
Prestations :
Accessibilité:
Tram Tram B "Chartrons"
SNCF Gare St Jean à 25 min
Les informations sur les risques auxquels ce bien est exposé sont disponibles sur le site Géorisques : www.georisques.gouv.fr
Quai des Chartrons, au sein d'un ancien chai réhabilité, RCG vous propose à la location une surface commerciale de plain-pied d'environ 353 m² à usage de bureaux / commerces.
Possibilité de normes ERP 5.
Idéal centre de formation ou bar à vin.
| Étage | Type | Surfaces | Dispo | Loyer | Charges | Type de bailRév. annuelle |
|---|---|---|---|---|---|---|
| RDC | Bureaux | 353,5 | Immédiate | 190 HT/HC/m²/an | 7 m²/an HT | 3-6-9 ansILAT Indice des Loyers des Activités Tertiaires |
Impôt Foncier : 6059 €/an HT
Régime Fiscal : T.V.A.
Dépôt de garantie : 3 mois de loyer HT/ HC
Honoraires : 15% HT du loyer annuel HT/HC à la charge du Preneur
Prestations :
- Immeuble ancien
- Accès PMR
- Pierres apparentes
- Locaux classés aménagés actuellement en 3 salles de formation
- Possibilité de normes ERP5 effectifs maximum 85 personnes
- Issue de secours
- Sanitaires privatifs
- Surface RDC : 353,5 m²
Accessibilité:
Tram Tram B "Chartrons"
SNCF Gare St Jean à 25 min
Les informations sur les risques auxquels ce bien est exposé sont disponibles sur le site Géorisques : www.georisques.gouv.fr
Voir plus
Afficher les consommations énergétiques
Favoris
Exporter
Appeler
Contacter
Signaler cette annonce
