L''agence BNP Paribas Real Estate est présente à Bordeaux depuis 40 ans. Elle accompagne les investisseurs et les entreprises dans chaque projet d''agrandissement, d''acquisition, de location et de ...
En savoir plus

Location bureau - 1110 m²
BNP Paribas Real Estate vous propose à la location un ensemble de bureaux au sein de l'immeuble Le Sémaphore, situé dans le quartier dynamique des Bassins à Flot à Bordeaux. Idéalement placé, cet immeuble bénéficie d'une excellente visibilité, d'un accès facilité aux transports et d'un environnement professionnel de qualité.
Description du bien
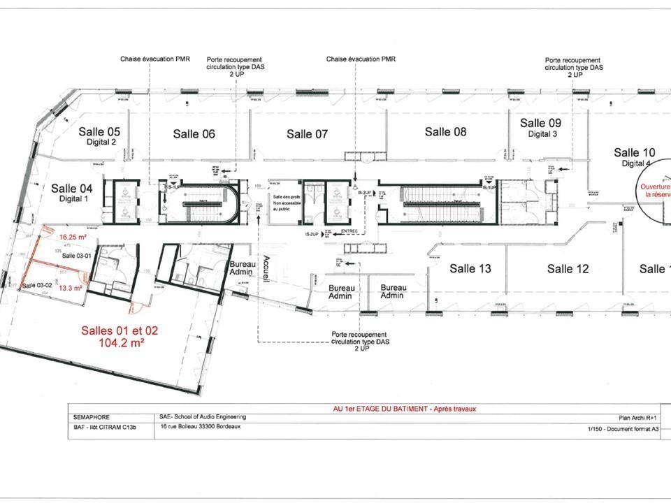
Plateau d'environ 988 m² en catégorie ERP 3, au sein d'un immeuble tertiaire récent et bien aménagé.
Le btiment comprend des prestations soignées : hall d'accueil, ascenseur, climatisation réversible, fauxplafonds, contrôle d'accès, parkings.
Le plateau est agencé autour d'un noyau central (parties communes + sanitaires), ce qui permet une répartition optimale des surfaces et une grande flexibilité d'aménagement.
Localisation & environnement
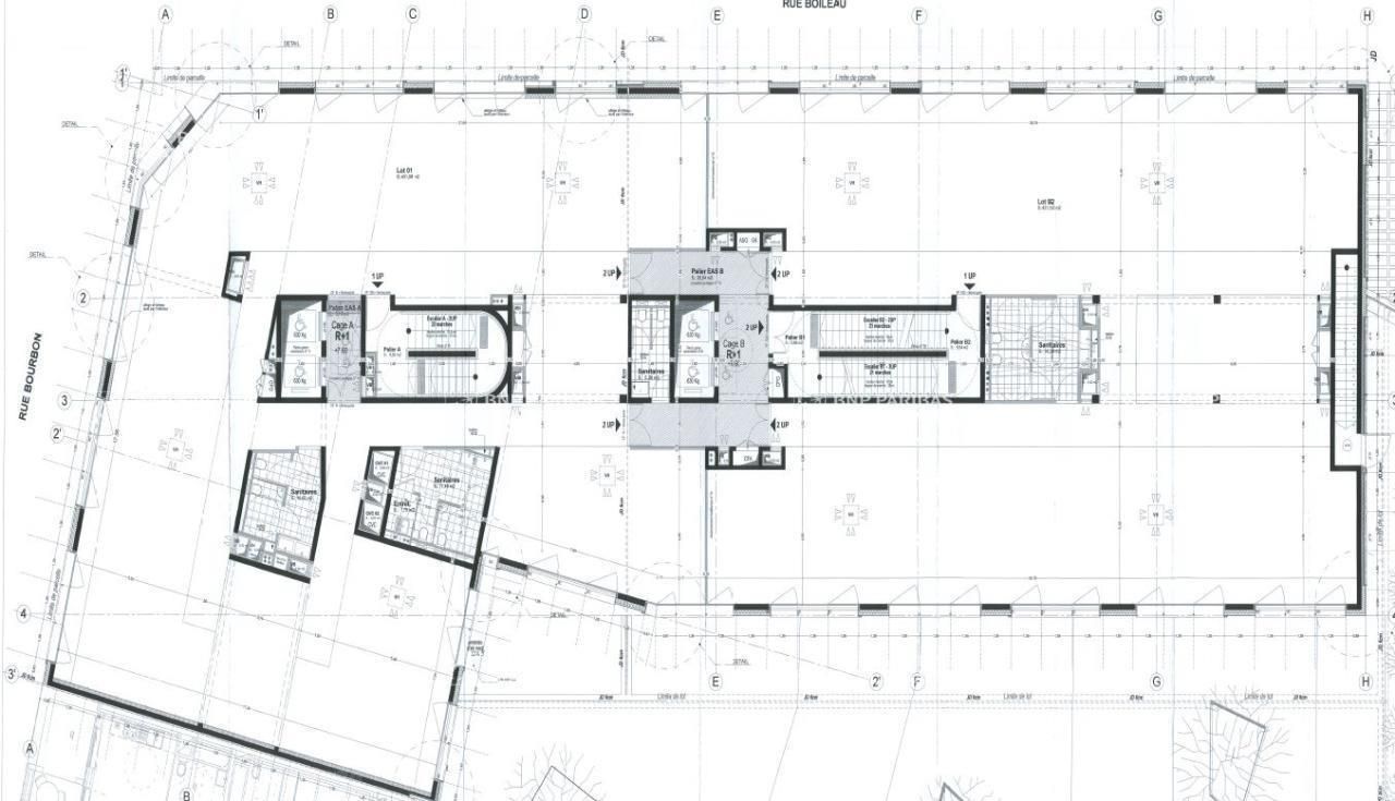
Adresse : 18 Rue Boileau, 33300 Bordeaux, dans le secteur des Bassins à Flot, un quartier en forte transformation mêlant bureaux, services, commerces et bord de fleuve.
Proximité immédiate des transports : tramway, bus, rocade ; l'immeuble est à quelques minutes seulement des quais et des axes majeurs de Bordeaux.
Environnement riche en services (restaurants, commerces, hôtellerie) qui contribue à la qualité de vie sur site.
Pourquoi ce bien ?
Cette offre représente une opportunité attractive pour les entreprises à la recherche d'un immeuble de bureaux performant :
Surface adaptée aux usages modernes, évolutive et modulaire.
Conditionnement en bureau de standing dans un quartier stratégique.
Environnement tertiaire connecté, attractif et apaisant.
Disponible rapidement Pour plus d'informations ou pour organiser une visite, contactez :
05 56 44 09 12
Voir aussi d'autres bureaux disponibles à Bordeaux
Plateau à louer 1 364 m² 20 Allée de Boutaut, Bordeaux Ravezies
Bureaux à louer 2 940 m² Quartier Bassins à Flot, Bordeaux 33300
Honoraires: Nous consulter. à la signature du bail
| Fiche technique du bien | |
|---|---|
| Ascenseur(s) | Oui |
| Aménagement des bureaux | Cloisonnés/Ouverts |
| Bureau(x) cloisonné(s) | et aménagés en bon état |
| Faux plancher | technique |
| Eclairage Bureaux | Luminaires Led |
| Sol bureaux | Moquette |
| Sanitaire(s) | PMR |
| Autre élément bureau | Fibre optique |
| Autre élément bureau | Plateaux traversants et lumineux |
Surfaces divisibles : 3
| Surface | LoyerHT/HC/m²/an | Étage / Batiment | Infos complémentaires |
| 53 m² | N.C | RDC | RDC Lot 1 |
| 64 m² | N.C | RDC | RDC Lot 2 |
| 993 m² | N.C | R+1 | OLBUR2533954/1 |










