L''agence BNP Paribas Real Estate est présente à Bordeaux depuis 40 ans. Elle accompagne les investisseurs et les entreprises dans chaque projet d''agrandissement, d''acquisition, de location et de ...
En savoir plus

Location bureau - 2940 m²
Au coeur du quartier dynamique des Bassins à Flot à Bordeaux, découvrez un ensemble de bureaux idéalement situé et parfaitement agencé. Le btiment N2 OFFICE, se trouve au pied de la ligne de tramway B (arrêt Achard), à quelques minutes du pont ChabanDelmas et de la rocade bordelaise, offrant une accessibilité exceptionnelle pour vos collaborateurs.
Les locaux proposés sont modulables, mêlant openspace et bureaux cloisonnés, dans un immeuble récent livré en 2017 et performant sur le plan technique. Vous profiterez d'un environnement professionnel de qualité, proche de la Halle Bacalan, des restaurants, hôtels et autres services d'affaires.
Caractéristiques & prestations
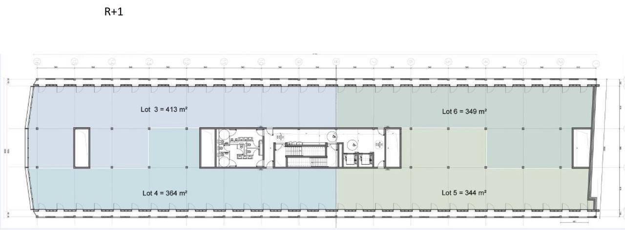
Plateaux disponibles dans N2 OFFICE : surface d'environ 2 940 m² divisible dès 190 m².
Système de rafraichissement nocturne, climatisation réversible, coursives accessibles depuis chaque fenêtre.
Accès sécurisé par contrôle d'accès, ascenseur, locaux vélos, accès PMR.
Aménagement possible en espaces ouverts, bureaux privatifs, salle de réunion, cuisine et plinthes techniques périphériques.
Nombreuses places de stationnement au sein de l'immeuble.
Emplacement et environnement
Installé dans un secteur tertiaire en plein essor, l'immeuble bénéficie d'une visibilité forte ainsi que d'une desserte remarquable :
Ligne de tramway B juste au pied de l'immeuble (arrêt Achard)
Accès direct au réseau routier et à la rocade via le pont ChabanDelmas
Zone boisée alentour, services de restauration et loisirs à proximité immédiate
Cadre de travail attractif pour vos collaborateurs et partenaires
Pourquoi choisir cette offre
Cette opportunité s'adresse aux entreprises recherchant :
Une implantation moderne et flexible dans l'un des quartiers les plus dynamiques de Bordeaux
Une accessibilité optimale en transport (tram, voiture)
Des surfaces modulables et un immeuble techniquement avancé, prêt à accueillir leurs équipes
Références utiles
Bureaux à louer dans la zone des Bassins à Flot à Bordeaux
Bureaux divisible dès 219 m² sur les Bassins à flot
Disponibilité: Immédiate
Honoraires: 15% HT du loyer HT/HC. à la signature du bail
| Fiche technique du bien | |
|---|---|
| Bus | Lignes 7-50-91-92 |
| Tramway | B |
| Desserte routière | A63 sortie 4 |
| Aéroport | Bordeaux Merignac 20 min |
| Gare | Bordeaux St Jean 15 min |
| Accès Pers. Mobilité Réduite | Oui |
| Label actuel | RT 2012 |
| Etat de l'immeuble | Etat d'usage |
| Etat des locaux | Très bon état Très bon état |
| Parking(s) | Oui |
| Climatisation | Réversible |
| Ascenseur(s) | 2 |
| Câblage informatique | RJ 45 |
| Aménagement des bureaux | Cloisonnés/Ouverts |
| Hauteur sous-plafond | 2,70 mètre(s) |
| Eclairage Bureaux | Luminaires encastrés LED |
| Sol bureaux | Moquette |
| Plinthes techniq.périphériques | Oui |
| Sanitaire(s) | Oui |
| Autre élément bureau | Fibre optique |
| Autre élément bureau | Vitrage à isolation thermique et phonique |
Surfaces divisibles : 2
| Surface | LoyerHT/HC/m²/an | Étage / Batiment | Infos complémentaires |
| 1470 m² | N.C | R+1 | OLBUR2103270/1 |
| 1470 m² | N.C | R+2 | OLBUR2103270/1 |
Localisation et transport aux alentours
- Rue Achard100m (2min à pied)B
- New York432m (6min à pied)B
- Brandenburg841m (13min à pied)B
- Bassins à Flot921m (14min à pied)B
- Claveau1.3km (19min à pied)B
