L’agence CBRE Toulouse conseille et accompagne les chefs d’entreprise dans leurs projets immobiliers quels que soient leur taille et leur secteur d’activité. Spécialistes de la transaction de burea ...
En savoir plus

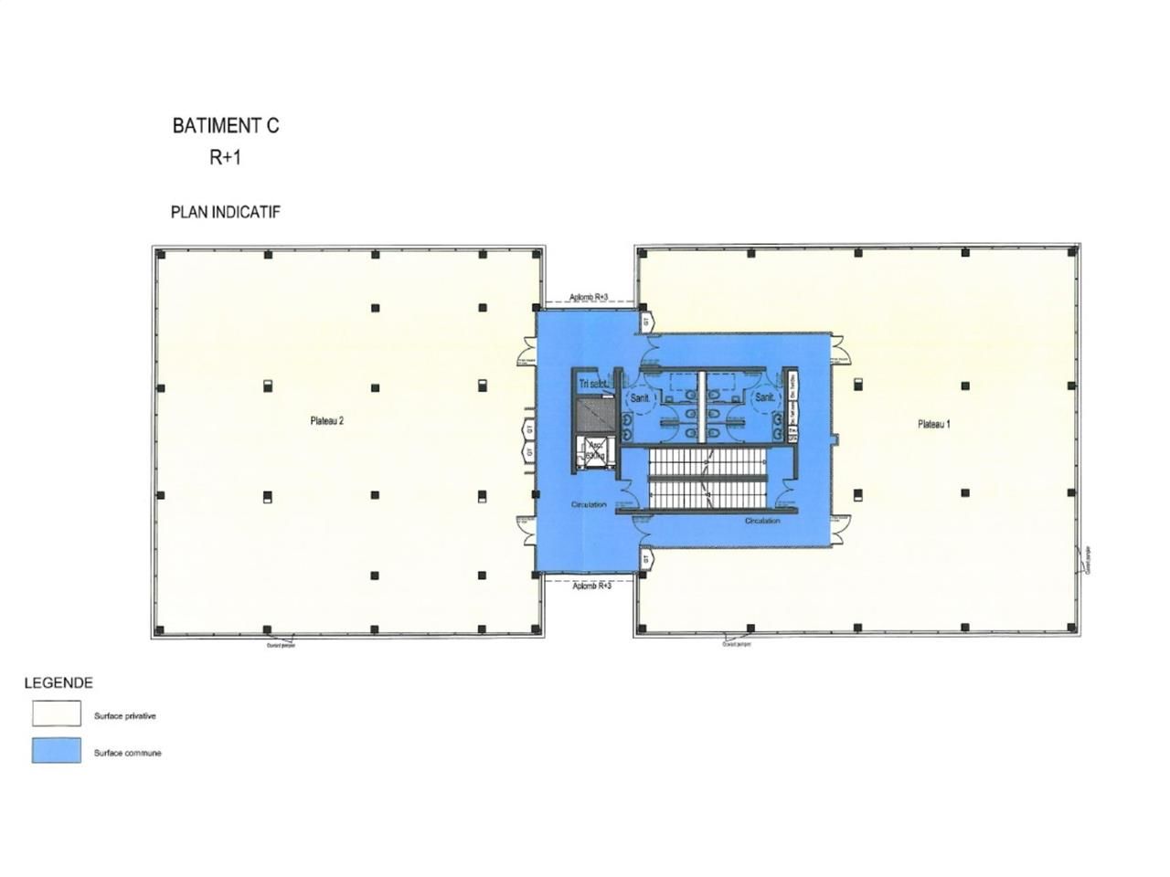
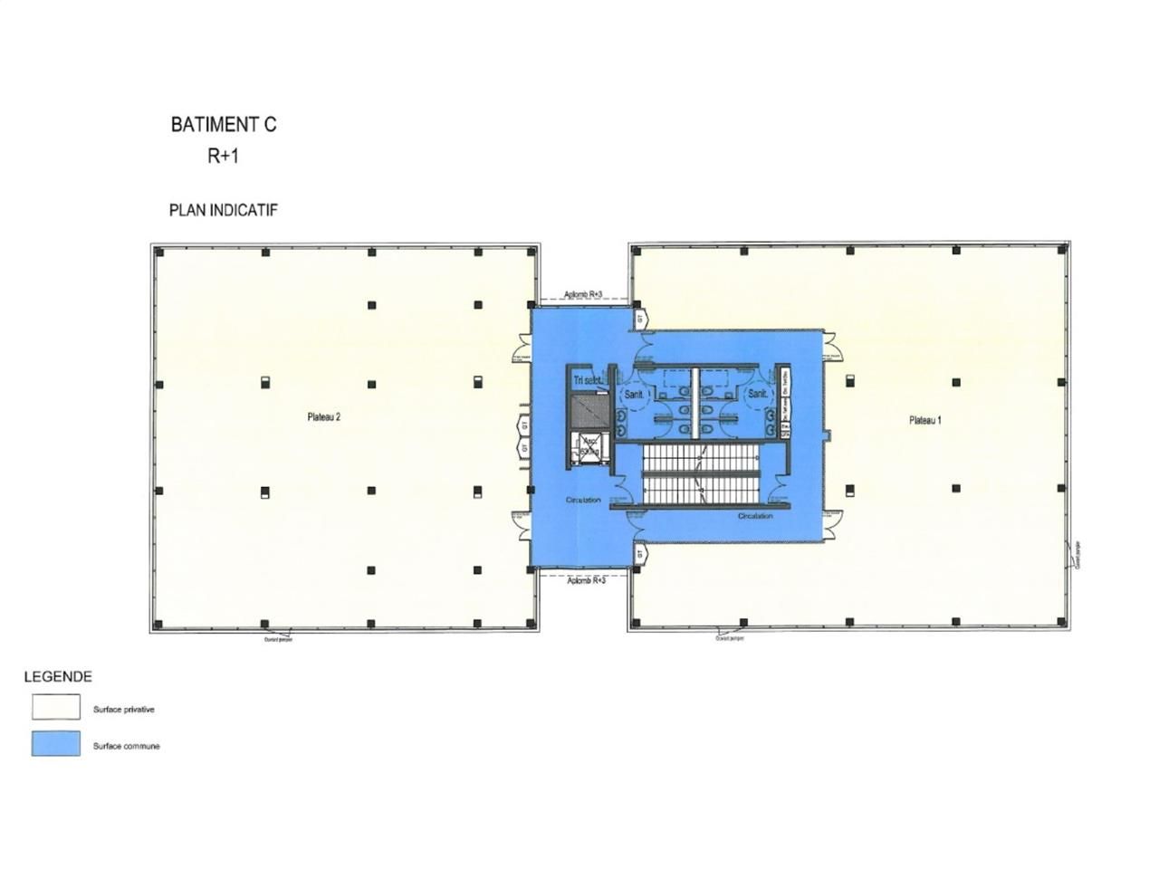
1 699 m² divisible dès 196 m²
HT HC
Location bureau - 1699 m²
Balma (31130)
Dernière mise à jour : Il y a 8 mois
Bureaux à louer à BALMA, dans un immeuble proche du métro et du Centre Commercial AUCHAN. Location possible de 2 plateaux entiers rénovés, livrés en open-space ou semi-cloisonnés.
CBRE vous propose à la location, des surfaces à usage bureaux dans l'immeuble "Premium" , situé à BALMA.
Surfaces livrées rénovées, cloisonnées et climatisées.
Immeuble respectant la Démarche HQE.
Emplacements de voitures privatifs en extérieur et en sous-sol.
Accès immédiat rocade Est (sortie Route de Lavaur).
Proximité immédiate du Terminus de la ligne A du métro.
Correspondance nombreuses lignes de bus.
Impôt Foncier : 21,7 €/m²/an en sus
Régime Fiscal : T.V.A.
Dépôt de garantie : 3 mois de loyer HT/HC
Paiement Loyer : trimestriel
Honoraires : 15% (+TVA) du loyer annuel HT HC à la charge du preneur
Information sur le Bail :
Parking intérieurs : 1000,00 euros/Place/an HT HC Parking extérieurs : 350,00 euros/Place/an HT HC Honoraires de gestion : 3,35% du loyer total HT HC Assurance (charge Preneur) : 0.74 euros HT/m²/an Loyer et charges payables par trimestre d'avance
Prestations :
Accessibilité:
Route Accès immédiat par la rocade Est (sortie n° 15 ) Route de Lavaur).
Bus Lignes 51 - 72 - 102 et 103
Metro À Proximité immédiate du Terminus de la ligne A du métro.
Les informations sur les risques auxquels ce bien est exposé sont disponibles sur le site Géorisques : www.georisques.gouv.fr
CBRE vous propose à la location, des surfaces à usage bureaux dans l'immeuble "Premium" , situé à BALMA.
Surfaces livrées rénovées, cloisonnées et climatisées.
Immeuble respectant la Démarche HQE.
Emplacements de voitures privatifs en extérieur et en sous-sol.
Accès immédiat rocade Est (sortie Route de Lavaur).
Proximité immédiate du Terminus de la ligne A du métro.
Correspondance nombreuses lignes de bus.
| Étage | Type | Surfaces | Dispo | Loyer | Charges | Type de bailRév. annuelle |
|---|---|---|---|---|---|---|
| 1 | Bureaux | 456 | Immédiate | 140 m²/an HT HC | 30,42 m²/an HT | 3-6-9 ansIndice ILAT |
| 1 | Bureaux | 395 | Immédiate | 140 m²/an HT HC | 30,42 m²/an HT | 3-6-9 ansIndice ILAT |
| 2 | Bureaux | 228 | Immédiate | 140 m²/an HT HC | 30,42 m²/an HT | 3-6-9 ansIndice ILAT |
| 2 | Bureaux | 228 | Immédiate | 140 m²/an HT HC | 30,42 m²/an HT | 3-6-9 ansIndice ILAT |
| 2 | Bureaux | 196 | Immédiate | 140 m²/an HT HC | 30,42 m²/an HT | 3-6-9 ansIndice ILAT |
| 2 | Bureaux | 196 | Immédiate | 140 m²/an HT HC | 30,42 m²/an HT | 3-6-9 ansIndice ILAT |
Impôt Foncier : 21,7 €/m²/an en sus
Régime Fiscal : T.V.A.
Dépôt de garantie : 3 mois de loyer HT/HC
Paiement Loyer : trimestriel
Honoraires : 15% (+TVA) du loyer annuel HT HC à la charge du preneur
Information sur le Bail :
Parking intérieurs : 1000,00 euros/Place/an HT HC Parking extérieurs : 350,00 euros/Place/an HT HC Honoraires de gestion : 3,35% du loyer total HT HC Assurance (charge Preneur) : 0.74 euros HT/m²/an Loyer et charges payables par trimestre d'avance
Prestations :
- Bureaux représentant 2 plateaux entiers.
- Démarque HQE.
- Locaux livrés rénovés, déjà cloisonnés, climatisés.
- 2ème étage partiellement cloisonné.
- Division possible en 4 lots à partir de 196 m².
- Emplacements de voitures privatifs :
- En sous-sol : 45 places
- Extérieurs : 7 places
- Répartition : nous consulter.
Accessibilité:
Route Accès immédiat par la rocade Est (sortie n° 15 ) Route de Lavaur).
Bus Lignes 51 - 72 - 102 et 103
Metro À Proximité immédiate du Terminus de la ligne A du métro.
Les informations sur les risques auxquels ce bien est exposé sont disponibles sur le site Géorisques : www.georisques.gouv.fr
Voir plus
Afficher les consommations énergétiques
Favoris
Exporter
Appeler
Contacter
Signaler cette annonce










