Située dans le 3ème arrondissement de Lyon au 15 rue des Cuirassiers, notre agence compte environ 35 collaborateurs expérimentés pour vous accompagner tout au long de la mise en œuvre de votre proj ...
En savoir plus

11 305 m²
HT HC
Location activité/entrepôt - 11305 m²
Vénissieux (69200)
Dernière mise à jour : Il y a 2 jours
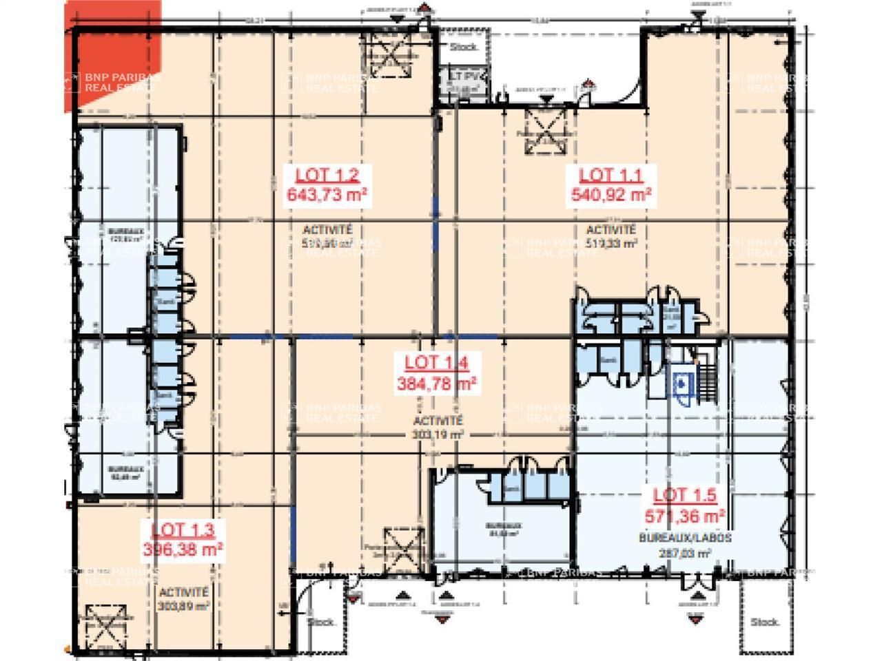
USIN VENISSIEUX (69) BNP PRE vous propose à la location 2 batiments d'activité de plus de 5 000 m² chacun. Chaque batiment dispose de porte d'accès plain-pied et de production chaud/froid. USIN LYON PARILLY est un site où les acteurs implantés sont intéressés par l'innovation, à la fois dans le process industriel et les lignes de production.
Située au sud-est de Lyon, Vénissieux est l'un des territoires économiques les plus puissants de la Métropole de Lyon, avec une grande concentration d'activités industrielles, logistiques, artisanales et tertiaires. Bénéficiant d'un maillage exceptionnel d'infrastructures (périphérique, A7, A43, A46, tramway, métro, ligne ferroviaire), la commune offre une accessibilité optimale pour les entreprises et les collaborateurs.
Avec des zones d'activités emblématiques, la ville accueille un tissu dense d'entreprises de toutes tailles, de la PME aux grands groupes internationaux.
Implanter votre activité à Vénissieux, c'est rejoindre un territoire robuste, connecté et résolument tourné vers l'industrie de demain.
Disponibilité: ImmédiateHonoraires: 15% HT du loyer HT/HC. à la signature du bail
| Fiche technique du bien | |
|---|---|
| Métro | Ligne D à 10min à pied |
| Bus | Ligne 35/79/26 |
| Tramway | T4 à 2min à pied |
| Desserte routière | Bld périph à 2min |
| Etat de l'immeuble | Etat d'usage Très bon état |
| Etat des locaux | Etat d'usage Très bon état |
| Parking(s) | 30 Places Pour chaque lot 101 et 105 |
| Sanitaire(s) | Oui |
| Charpente | Béton poteaux poutre |
| Couverture | Bac acier isolé isolation laine minérale |
| Murs | Béton alu double vitrage |
| Sols du bâtiment | Béton |
| Porte(s) d'accès plain-pied | Oui |
| Eclairage intérieur | Rampes tubes fluo. |
| Eclairage naturel | Zénithal |
| Equipements | Réseau air comprimé réseau 7 bar |
| Réseau Incendie Armé | Oui |
| Autre élément commerce | Courants forts/faibles |
Voir plus
Afficher les consommations énergétiques
Localisation et transport aux alentours
Favoris
Exporter
Appeler
Contacter
Signaler cette annonce










