Nous sommes Immprove, une grande équipe de plus de 200 experts en immobilier d’entreprise, implantés localement avec plus de 20 agences sur tout le territoire.Depuis 2009, notre proximité, notre ét ...
En savoir plus

768 m²
HT HC
Location activité/entrepôt - 768 m²
Sainte-Eulalie (33560)
Dernière mise à jour : Il y a 10 jours
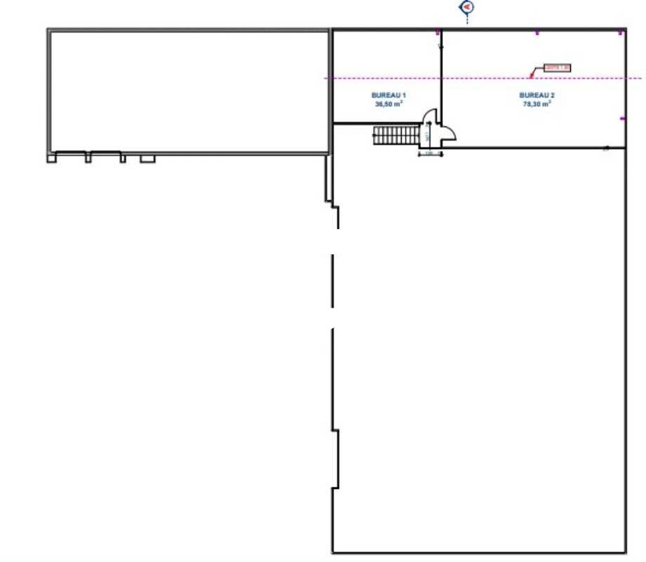
Au coeur de la zone commerciale de Sainte Eulalie et à proximité des grands axes routiers, IMMPROVE vous propose à la location un local d'activité de 768 m² en très bon état. Il est composé d'une partie stockage d'environ 543 m², une mezzanine de 110 m² pour un espace de travail complémentaire ou pour du stockage et des bureaux de 115 m².
16 parkings extérieur. Emplacement stratégique et à fort passage bénéficiant d'une belle visibilité. Disponible immédiatement. Garage autorisé.
Régime Fiscal : T.V.A. (20%)
Dépôt de garantie : 3 mois de loyer HT HC
Honoraires : 30% HT du loyer annuel HT HC à la charge du preneur
Prestations :
Accessibilité:
Autoroute Sortie 43 : Sainte Eulalie
Les informations sur les risques auxquels ce bien est exposé sont disponibles sur le site Géorisques : www.georisques.gouv.fr
16 parkings extérieur. Emplacement stratégique et à fort passage bénéficiant d'une belle visibilité. Disponible immédiatement. Garage autorisé.
| Étage | Type | Surfaces | Dispo | Loyer | Charges | Type de bailRév. annuelle |
|---|---|---|---|---|---|---|
| MEZ | Mezzanine | 110 | Immédiate | selon l'indice des loyers des activités tertiaires (ILAT) | ||
| RDC | Entrepôts | 543 | Immédiate | selon l'indice des loyers des activités tertiaires (ILAT) | ||
| RDC | Bureaux | 115 | Immédiate | selon l'indice des loyers des activités tertiaires (ILAT) | ||
| Parkings | Immédiate | selon l'indice des loyers des activités tertiaires (ILAT) | ||||
| Total Cellule | Activités | 768 | Immédiate | 96,8 m²/an HT HC | Bail Commercial 3-6-9 ansselon l'indice des loyers des activités tertiaires (ILAT) |
Régime Fiscal : T.V.A. (20%)
Dépôt de garantie : 3 mois de loyer HT HC
Honoraires : 30% HT du loyer annuel HT HC à la charge du preneur
Prestations :
- Bâtiment indépendant
- Façade en bardage
- Accès véhicules légers
- Accès poids lourds
- Accès PMR
- Accès privatif sur rue
- Aire de manoeuvre
- Aire de chargement
- Portail d'accès
- Site clos
- Climatisation réversible
- Fibre optique
- Cour privative
- Locaux aménagés en :
- Bureaux cloisonnés
- Espace détente
- Local technique
- Cuisine
- Sanitaires privatifs
- Belle hauteur sous plafond
- Locaux lumineux
- Décloisonnement possible
- Locaux rationnels et modulables
- Cour privative
- Archives
- Faux plafonds
- Parquet
- Câblage informatique et téléphonique
- Prises RJ45
- Possibilité de normes E.R.P.
- Climatisation réversible
- 2 Portes sectionnelles de plain-pied
- Douche
- Cuisine
- Sanitaires
- Surface RDC : 658 m²
Accessibilité:
Autoroute Sortie 43 : Sainte Eulalie
Les informations sur les risques auxquels ce bien est exposé sont disponibles sur le site Géorisques : www.georisques.gouv.fr
Emplacement(s) de Parking: 16 extérieurs
Voir plus
Afficher les consommations énergétiques
Favoris
Exporter
Appeler
Contacter
Signaler cette annonce
