L’agence CBRE Lyon conseille et accompagne les chefs d’entreprise dans leurs projets immobiliers quels que soient leur taille et leur secteur d’activité. Spécialistes de la transaction de bureaux, ...
En savoir plus

1 217 m²
HT HC
Location activité/entrepôt - 1217 m²
Lyon 7 (69007)
Dernière mise à jour : Hier
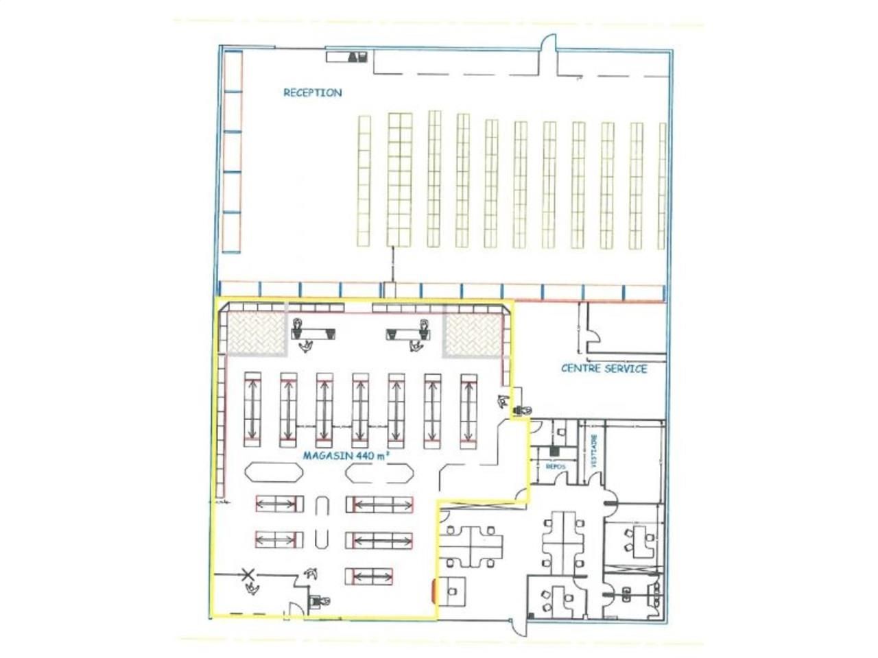
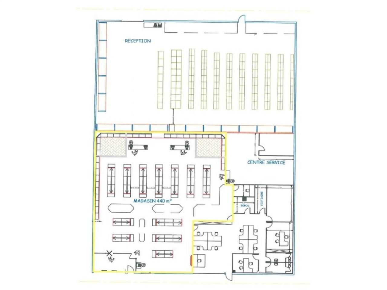
Vous recherchez des locaux d'activités à louer dans le 7ème arrondissement de Lyon ? Votre agence CBRE, spécialisée en immobilier d''entreprise vous propose de découvrir cette surface industrielle idéalement située dans le quartier de GERLAND. Ce local d'activités de 1 217 m² se divise en 3 espaces : une zone d'accueil, un magasin accessible avec une porte automatique vitrée, une zone de bureau et une zone de stockage bénéficiant d'un accès livraison.
Ce local se situe au sein du Parc Gerland 17, à proximité de la place Jean Macé et bénéficie donc d'une excellente desserte en transports en commun TCL grâce au métro B, et aux lignes de tramway T2, T3, et T6.
Impôt Foncier : 7,31 €/m²/an HT
Régime Fiscal : T.V.A.
Dépôt de garantie : 3 mois de loyer HT/HC
Paiement Loyer : trimestriel
Honoraires : 20% HT du loyer annuel HT/HC à la charge du preneur
Prestations :
Accessibilité:
Autoroute A7, A6
Route Boulevard périphérique
Metro Ligne B
Tramway T2
Bus Bus TCL ligne 96
Les informations sur les risques auxquels ce bien est exposé sont disponibles sur le site Géorisques : www.georisques.gouv.fr
Ce local se situe au sein du Parc Gerland 17, à proximité de la place Jean Macé et bénéficie donc d'une excellente desserte en transports en commun TCL grâce au métro B, et aux lignes de tramway T2, T3, et T6.
| Étage | Type | Surfaces | Dispo | Loyer | Charges | Type de bailRév. annuelle |
|---|---|---|---|---|---|---|
| RDC | Activités | 1217 | Immédiate | 73,95 m²/an HT HC | 3,23 HT/m²/an | PrécaireIndice ILAT |
Impôt Foncier : 7,31 €/m²/an HT
Régime Fiscal : T.V.A.
Dépôt de garantie : 3 mois de loyer HT/HC
Paiement Loyer : trimestriel
Honoraires : 20% HT du loyer annuel HT/HC à la charge du preneur
Prestations :
- 3 espaces : 1 zone accueil / magasin accessible avec une pote automatique vitrée, 1 zone bureau, 1 zone stockage bénéficiant d'un accès livraison sur la rue de l'Asphalte.
- Surface RDC : 1217 m²
Accessibilité:
Autoroute A7, A6
Route Boulevard périphérique
Metro Ligne B
Tramway T2
Bus Bus TCL ligne 96
Les informations sur les risques auxquels ce bien est exposé sont disponibles sur le site Géorisques : www.georisques.gouv.fr
Voir plus
Afficher les consommations énergétiques
Favoris
Exporter
Appeler
Contacter
Signaler cette annonce










